Compact period home with modern finishes and strong rental appeal.
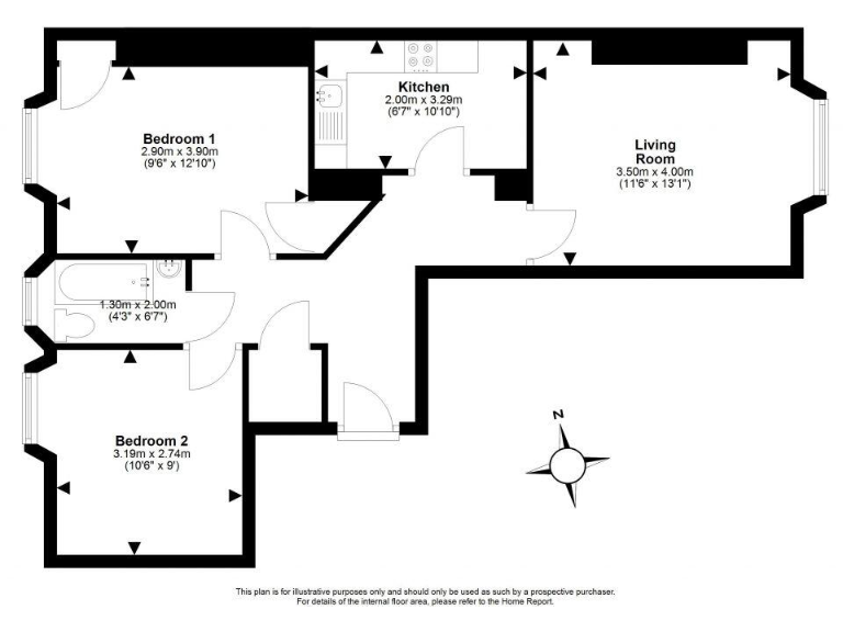
Bright living room with high ceilings and feature fireplace
Contemporary fitted kitchen finished to a tidy standard
Two well‑proportioned double bedrooms with timber floors
Modern bathroom with shower over bath
Approximately 465 sq ft — compact city flat
Top‑floor — accessible only by stairs, no lift
Communal garden to rear; no private outdoor space
Area classified as very deprived — consider resale/rental risk
This compact top‑floor tenement flat pairs period character with practical modern updates, suitable for a first-time buyer or buy‑to‑let investor. High ceilings, sash‑style windows and a working fireplace give the living room real charm, while engineered timber floors and neutral decoration make the space easy to personalise. The contemporary fitted kitchen and modern bathroom keep the day‑to‑day practicalities straightforward.
At around 465 sq ft the accommodation is modest, so it works best for those wanting a central city base or a rental that appeals to students and commuters. The building benefits from a communal rear garden and secure entry, but there is no private outdoor space and the layout reflects a small urban flat rather than a family home. The property is offered freehold and shows tidy, well‑maintained presentation throughout, requiring only cosmetic updating in places.
Practical points to note: gas central heating and double glazing provide efficient heating and good insulation; council tax is described as low. The flat is in a part of Leith with excellent transport links and local amenities, though the wider area is classified as very deprived which may affect long‑term demand patterns. The Home Report indicates the price is approximately £5,000 under valuation, presenting potential immediate value for buyers.
2 bedroom flat for sale in 22/6 Prince Regent Street, Leith, Edinburgh, EH6 4AS, EH6 — £195,000 • 2 bed • 1 bath • 457 ft²
2 bedroom flat for sale in 160/4 Easter Road, Leith, Edinburgh, EH7 5RL, EH7 — £260,000 • 2 bed • 1 bath • 646 ft²
1 bedroom flat for sale in 9/4 Sloan Street, Leith, Edinburgh, EH6 8PL, EH6 — £220,000 • 1 bed • 1 bath • 580 ft²
2 bedroom flat for sale in 1/6 Bethlehem Way, Leith, Edinburgh, EH7 6FB, EH7 — £190,000 • 2 bed • 1 bath • 442 ft²
2 bedroom flat for sale in 1/34 Bothwell House, Bothwell Street, Easter Road, Edinburgh, EH7 5YL, EH7 — £210,000 • 2 bed • 1 bath • 589 ft²
1 bedroom flat for sale in Albert Street, Edinburgh, EH7 — £165,000 • 1 bed • 1 bath • 517 ft²










































































