**Standout Features:**
- Expansive development plot of approximately 0.37 acres.
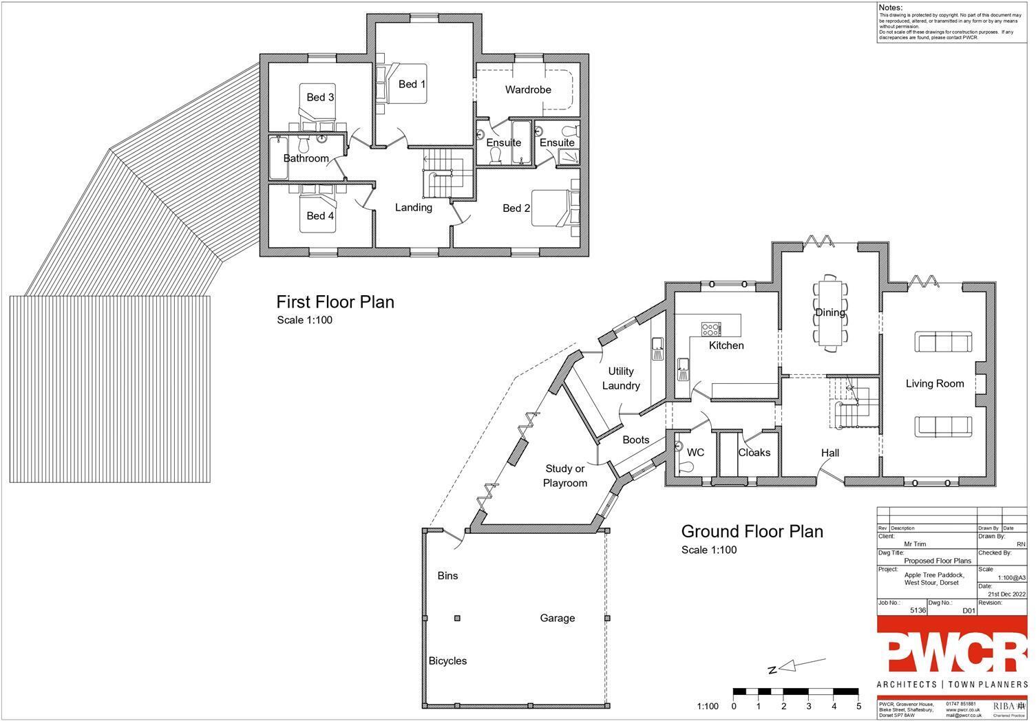
- Planning permission granted for a detached dwelling with a double garage (2,500 sqft).
- Scenic, far-reaching countryside views from the first-floor windows.
- Located in the serene Church Farm Estate in West Stour village.
- Mains water, electricity, and private drainage system are all on site.
- Extremely low crime rate in the area, enhancing security.
**Potential Concerns:**
- Plot currently vacant and requires construction of the planned dwelling.
- Limited immediate amenities within the village setting.
**Summary:**
Seize an exceptional opportunity to create your dream home in the tranquil village of West Stour, set within a generous 0.37-acre plot in the prestigious Church Farm Estate. With approved planning permission for a spacious detached dwelling boasting an attached garage, this site allows for expansive living space and boasts stunning countryside views to enhance your daily life.
While the plot currently stands vacant, it offers limitless potential for a bespoke home tailored to your desires, complete with modern features including air source heat pump heating. Enjoy the beauty of rural living while remaining conveniently connected to nearby amenities, independent schools, and recreational activities. The estate’s quiet setting and very low crime rate ensure a secure and serene lifestyle—perfect for families or investors seeking to craft a unique residence in a sought-after location. Explore the future possibilities of this exclusive plot before it’s gone!
Plot for sale in Purns Mill Lane, Colesbrook, Gillingham, SP8 — £325,000 • 1 bed • 1 bath • 2500 ft²
Plot for sale in Lot 2 - Ciderhouse Farm, Sigwells, Nr. Sherborne, Dorset, DT9 — £300,000 • 1 bed • 1 bath
Plot for sale in Lower Road, Stalbridge, Sturminster Newton, DT10 — £200,000 • 1 bed • 1 bath • 1420 ft²
Land for sale in Okeford Fitzpaine, Dorset, DT11 — £250,000 • 1 bed • 1 bath • 8712 ft²
Plot for sale in The Common Okeford Fitzpaine, Blandford Forum, Dorset, DT11 — £90,000 • 1 bed • 1 bath • 1232 ft²
Plot for sale in Todber, DT10 — £500,000 • 1 bed • 1 bath • 2125 ft²










































