Move-in-ready two-bedroom with period details and modern finish close to transport.
Renovated Victorian conversion finished to a high standard
Long lease — 117 years remaining
Chain free sale for faster completion
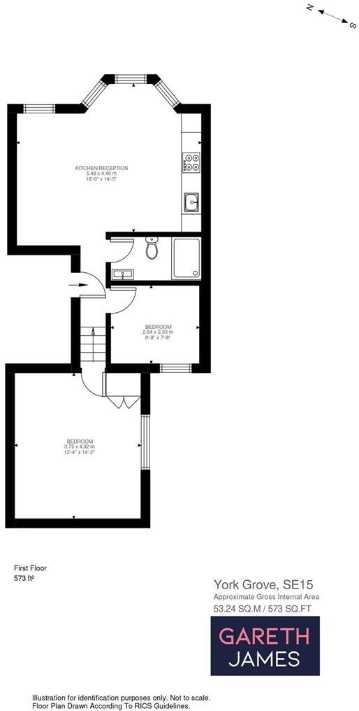
Compact overall size — 573 sq ft (limited space)
Low service charge (£360 per year)
Ground rent £500 per year; leasehold tenure
High local crime statistics and area deprivation
Excellent transport links; short walk to Queens Road station
This recently renovated two-bedroom Victorian conversion blends period character with contemporary finishes, making it a confident choice for first-time buyers seeking a move-in-ready inner‑city home. The open-plan reception and kitchen are bright and airy, featuring a large bay window with bespoke shutters, herringbone-engineered wood flooring and high ceilings that enhance the sense of space. The principal bedroom is generously proportioned with room for fitted wardrobes; the second bedroom currently serves as a versatile home office or guest room.
Practical details support everyday living: a long lease (117 years), chain-free purchase, low annual service charge (£360) and a modest council tax band B. The sleek bathroom includes a walk-in shower with rainfall head and the modern kitchen has integrated appliances and high-quality finishes. There is a small garden to the rear and excellent transport links a short walk away to Queens Road station and local bus routes.
Be candid about limitations: the flat’s overall footprint is compact at 573 sq ft, so storage and entertaining space are relatively modest. The property is leasehold with ground rent of £500 per year and sits in an area with higher crime statistics and local deprivation. For buyers prioritising finish, location, and immediate occupancy over expansive internal space, this is a rare, ready-to-live-in opportunity in a desirable Peckham pocket.
2 bedroom flat for sale in St. Mary's Road, Peckham, SE15 — £695,000 • 2 bed • 1 bath • 923 ft²
2 bedroom flat for sale in Nutcroft Road, Peckham, SE15 — £395,000 • 2 bed • 1 bath • 550 ft²
2 bedroom apartment for sale in Brayards Road Estate, London, SE15 — £375,000 • 2 bed • 1 bath • 688 ft²
2 bedroom flat for sale in York Grove, Peckham, SE15 — £700,000 • 2 bed • 1 bath • 883 ft²
1 bedroom apartment for sale in St Marys Road, Nunhead, SE15 — £425,000 • 1 bed • 1 bath • 527 ft²
2 bedroom flat for sale in York Grove, Peckham, SE15 — £600,000 • 2 bed • 1 bath • 1182 ft²






















































