**Key Features:**
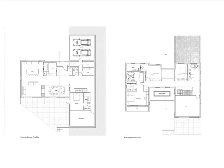
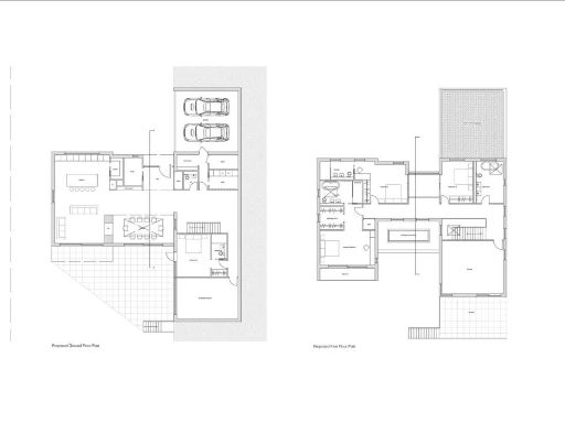
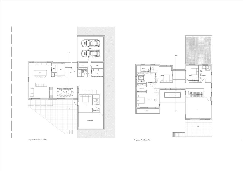
- Approved planning for a stylish 4/5 bedroom detached dwelling (Planning Ref UTT/23/0637/FUL).
- Generous footprint of approximately 3,800 sqft with double garage and ample parking.
- Situated in a quiet, sought-after village setting with private gardens.
- Freehold property with great future potential for customization and expansion.
This is a rare opportunity to acquire a substantial building plot in a picturesque village location, perfect for creating your dream home. The approved plans outline a modern design with a spacious layout featuring an impressive open-plan kitchen/dining/living area, five versatile bedrooms, including an en suite principal suite, as well as a study and numerous reception areas. With a double garage and plentiful parking options, this property truly caters to comfortable family living.
The serene atmosphere and scenic views of the surrounding greenery promise a peaceful retreat from urban life. Additionally, the village offers excellent amenities and is conducive for families, with multiple highly-rated primary schools within reach. This plot is chain-free, allowing for a smooth transition to your new lifestyle. Don’t miss this chance to invest in a versatile property in a desirable location—act now, as opportunities like this won't last long!



























