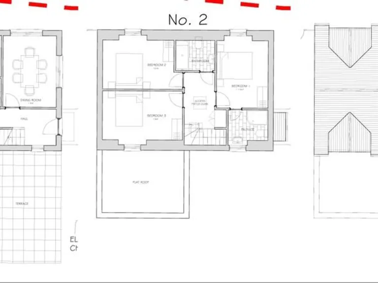
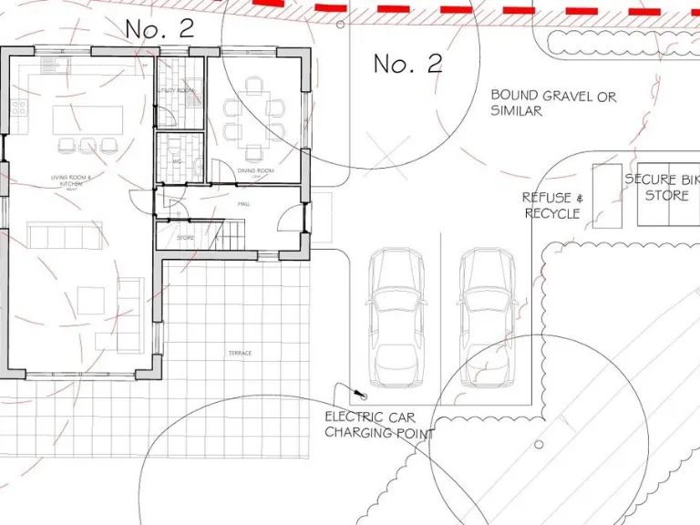
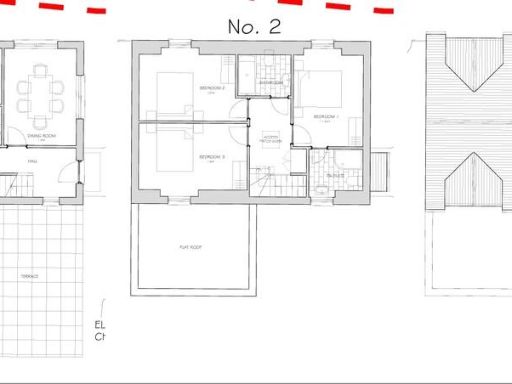
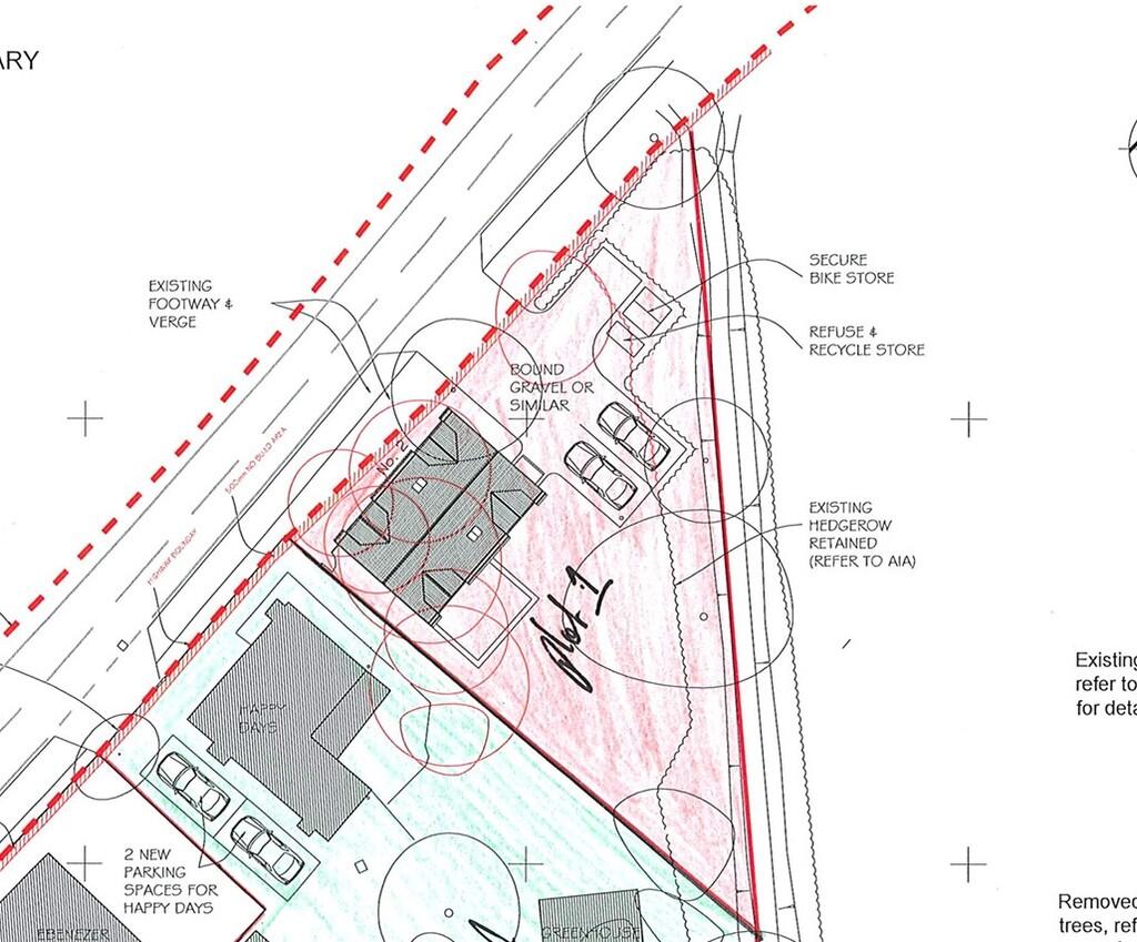
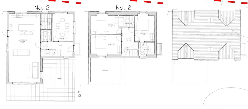
**Standout Features:**
- Freehold land with potential for a contemporary two-story new build
- Large plot size with room for additional development
- Located in a peaceful hamlet, ideal for countryside living
- Excellent local schools with good Ofsted ratings
- Fast broadband and average mobile signal for connectivity
- Low crime rate in an affluent area
**Potential Concerns:**
- Shared septic tank with maintenance responsibilities
- Access road and visitor parking in need of development by buyer
- Responsibility for ongoing maintenance contributions for septic tank
Discover a unique opportunity to create your dream home on this spacious freehold plot in a tranquil countryside setting. With plans for a modern two-story residence, this land offers the ideal canvas for those who appreciate stylish living combined with rural charm. Enjoy the benefits of good local schools, including several top-rated options, ensuring a bright future for families.
While the septic tank shares come with their logistics, the property offers ample flexibility to design your home to suit your lifestyle. With low crime and rich local amenities—from quaint shops to community clubs—this area epitomizes the peace and prosperity of countryside life. Act now to secure this exceptional plot, where your vision can come to life!
Land for sale in Dunmow Road, Great Easton, CM6 — £250,000 • 1 bed • 1 bath • 7841 ft²
Plot for sale in Church Lane, Debden, Saffron Walden, CB11 — £395,000 • 5 bed • 3 bath • 3800 ft²
Land for sale in North Hall Road, Ugley, Bishop's Stortford, Essex, CM22 — £250,000 • 1 bed • 1 bath • 1789 ft²
Land for sale in Woodgates End, Dunmow, Essex, CM6 — £5,000 • 1 bed • 1 bath
Land for sale in Church End, Broxted, CM6 — £300,000 • 1 bed • 1 bath • 17424 ft²
Land for sale in Lot 3 Rook End Lane, Debden, CB11 — £600,000 • 1 bed • 1 bath • 9583 ft²






























































