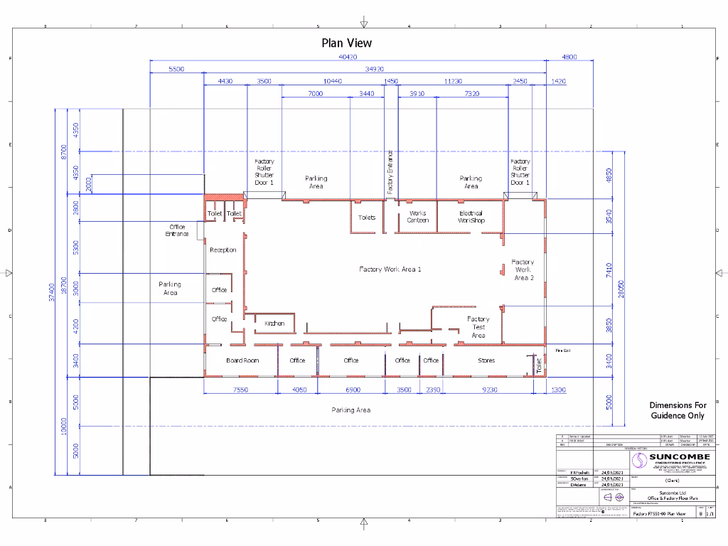
**Standout Features:**
- Substantial 6,895 sq. ft. detached industrial building
- High internal ceilings (3m to 5m) for operational flexibility
- 2 loading doors for efficient logistics capacity
- Spacious office accommodations including reception and meeting rooms
- Equipped kitchen and separate WC facilities
- Freehold tenure offers ownership and investment potential
- Excellent broadband speeds and mobile signal
**Potential Concerns:**
- High crime rate in the area
- Property requires refurbishment for optimal use
- Located in a region identified as very deprived
This impressive industrial property presents a unique opportunity for businesses seeking ample space in a prime location. Boasting a massive internal floor area, it is equipped with essential industrial amenities, including dual loading bays and versatile office sections ideal for administrative tasks. The building’s design supports a variety of operational needs while providing efficient gas heating and bright fluorescent lighting.
Despite its current need for some renovation, this single-story structure holds significant potential for investment, particularly in a major conurbation that offers strategic links to Central London and major highways, making it ideal for logistics and distribution services. Given its size, layout, and unique features, this property is perfect for investors or businesses looking to expand, offering opportunities limited only by your vision. Don’t miss the chance to secure your place in this evolving urban landscape—properties like this do not stay on the market long!
Distribution warehouse for sale in 81 Lockfield Avenue, Enfield, Middlesex, EN3 — £1,350,000 • 1 bed • 1 bath • 7794 ft²
Trade counter for sale in Unit 2 Plaza Business Centre, Stockingswater Lane, Enfield, EN3 7PH, EN3 — £2,950,000 • 1 bed • 1 bath • 10670 ft²
Distribution warehouse for sale in 83 Lockfield Avenue, Enfield, Middlesex, EN3 — £1,600,000 • 1 bed • 1 bath • 8599 ft²
Light industrial facility for sale in 20 Bull Lane, Edmonton, Greater London, N18 — £2,700,000 • 1 bed • 1 bath • 9687 ft²
Light industrial facility for sale in 81-83 Lockfield Avenue, Enfield, EN3 7PY, EN3 — POA • 1 bed • 1 bath • 16393 ft²
Light industrial facility for sale in Unit 4, Bracken Industrial Estate, Ilford, IG6 3HX, IG6 — POA • 1 bed • 1 bath • 4500 ft²










































