Well-presented three-bedroom family home with garden, garage and extension potential.
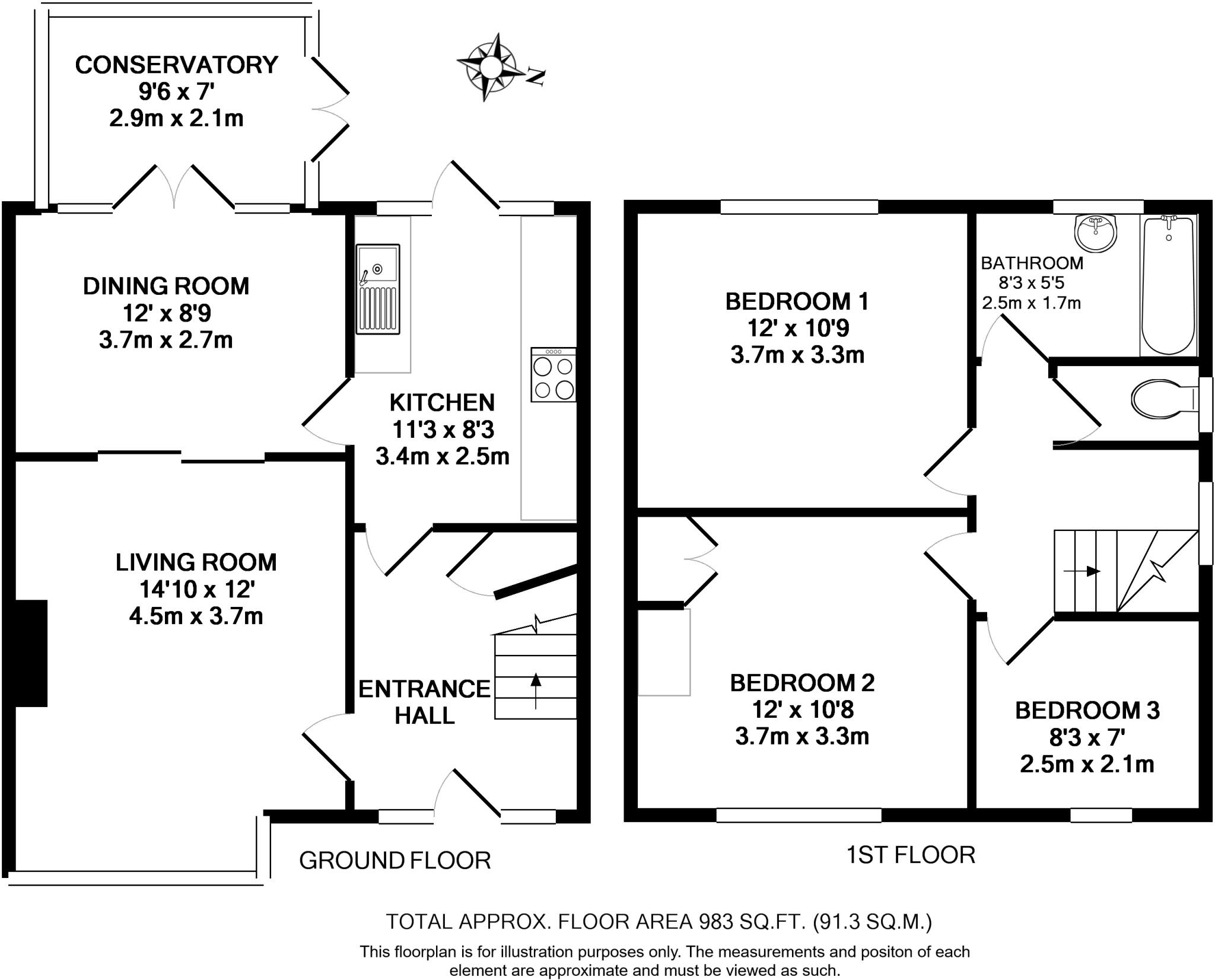
Three bedrooms with flexible reception and conservatory space
West-facing private garden, well maintained
Driveway parking plus private garage
Short walk to excellent primary and secondary schools
About 20 minutes’ walk to Harpenden station (28 mins to London)
Potential to extend subject to planning consent (others have done so)
Single family bathroom only; may be limiting for larger families
Council tax level above average; mid‑20th century build may need updating
Set on a peaceful crescent in east Harpenden, this three-bedroom semi-detached home is arranged over two storeys and suits a growing family. A traditional front lounge flows into a second reception and conservatory, offering flexible living and a bright dining or play area. The rear garden faces west and is well maintained, ideal for afternoon sun and family use.
Practical features include off-street parking, a private garage and an average-sized plot with room to run. The property is a short walk from highly rated local schools and around 20 minutes’ stroll to Harpenden station, with direct trains to central London in approximately 28 minutes. There is scope to extend (subject to necessary consents) — similar nearby properties have been extended.
Buyers should note a single family bathroom serves three bedrooms and council tax is above average. The house dates from the 1950s–1960s, with double glazing of unknown install date; routine updating or modernization may be desired. Overall this is a well-presented family home in a very affluent neighbourhood with genuine scope to tailor and enlarge the accommodation.
3 bedroom semi-detached house for sale in Springfield Crescent, Harpenden, AL5 — £610,000 • 3 bed • 1 bath • 926 ft²
4 bedroom semi-detached house for sale in Springfield Crescent, Harpenden, Hertfordshire, AL5 — £875,000 • 4 bed • 2 bath • 1587 ft²
4 bedroom semi-detached house for sale in Springfield Crescent, Harpenden, AL5 — £875,000 • 4 bed • 2 bath • 2025 ft²
3 bedroom semi-detached house for sale in Alzey Gardens, Harpenden, Hertfordshire, AL5 — £725,000 • 3 bed • 1 bath • 914 ft²
3 bedroom semi-detached house for sale in Riverford Close, Harpenden, AL5 — £625,000 • 3 bed • 1 bath • 700 ft²
3 bedroom semi-detached house for sale in Highfield Avenue, Harpenden, AL5 — £950,000 • 3 bed • 1 bath • 1000 ft²


















































