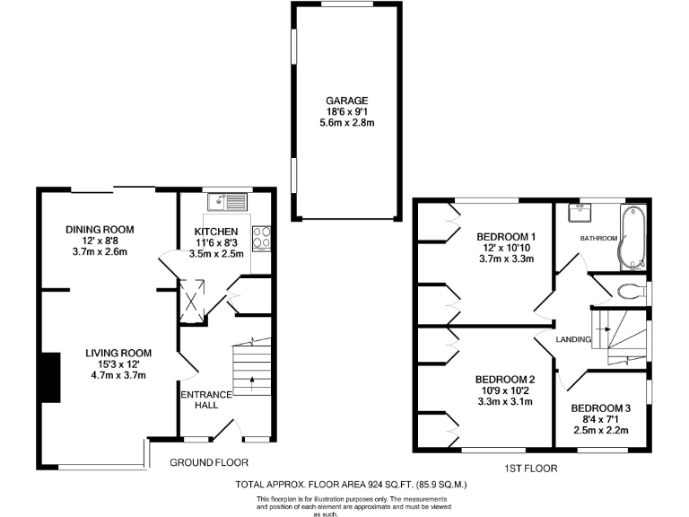
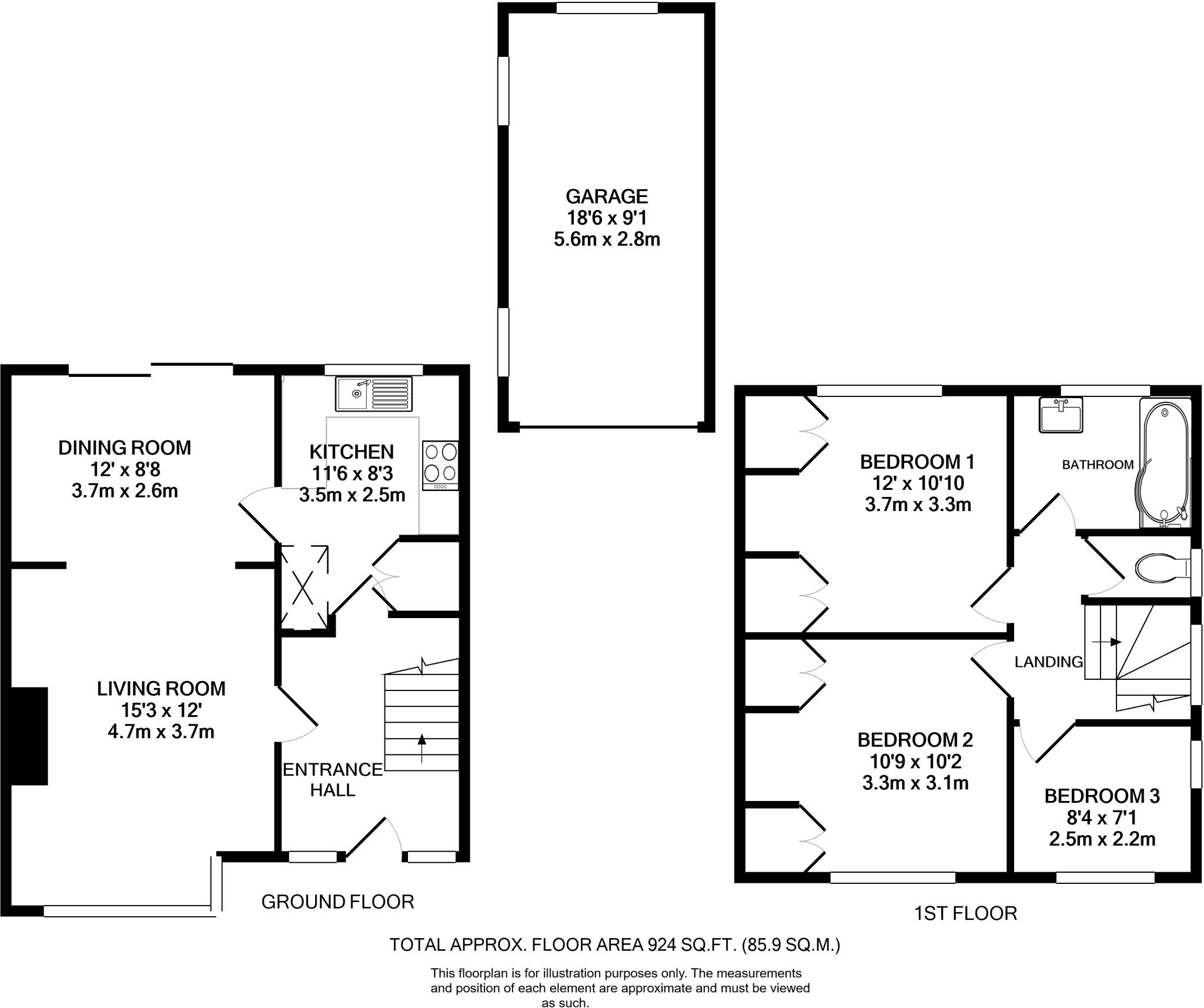
**Standout Features:**
- Recently fitted kitchen and bathroom
- Three spacious bedrooms
- Two inviting reception rooms
- Detached garage and off-street parking
- Private rear garden with patio area
- Potential for future extensions (subject to consent)
- Convenient location near excellent schools
This charming three-bedroom semi-detached home is perfect for families seeking a blend of modern comfort and future potential. With a recently updated kitchen and bathroom, the interior provides an inviting atmosphere, accommodating everyday family life with ease. The spacious lounge, complete with a bay window and built-in shelves, flows into a dining room that’s ideal for family gatherings. Upstairs, you'll find three well-proportioned bedrooms that offer ample space for children or guests.
Nestled on Springfield Crescent in the picturesque area of Harpenden, this property not only boasts a great garden for outdoor activities but also benefits from off-street parking and a detached garage, adding significant convenience. Families will appreciate being within proximity to highly-rated schools such as St. George's and Sir John Lawes, making school runs straightforward. With a strong community vibe, beautiful countryside views, and just a 20-minute walk to Harpenden’s town center and mainline station, this home offers the perfect balance of suburban tranquility and accessibility to city life.
Don't miss out on this delightful opportunity to secure a family-friendly home in a sought-after neighborhood that offers expansion potential!
3 bedroom semi-detached house for sale in Springfield Crescent, Harpenden, AL5 — £610,000 • 3 bed • 1 bath • 983 ft²
4 bedroom semi-detached house for sale in Springfield Crescent, Harpenden, Hertfordshire, AL5 — £875,000 • 4 bed • 2 bath • 1587 ft²
3 bedroom semi-detached house for sale in Alzey Gardens, Harpenden, Hertfordshire, AL5 — £725,000 • 3 bed • 1 bath • 914 ft²
3 bedroom semi-detached house for sale in Highfield Avenue, Harpenden, AL5 — £950,000 • 3 bed • 1 bath • 1000 ft²
3 bedroom semi-detached house for sale in Fulmore Close, HARPENDEN, AL5 — £595,000 • 3 bed • 1 bath • 958 ft²
4 bedroom semi-detached house for sale in St. Michaels Close, Harpenden, AL5 — £695,000 • 4 bed • 2 bath • 1696 ft²


















































































