**Standout Features:**
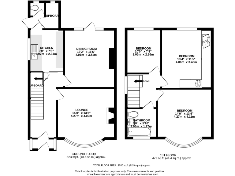
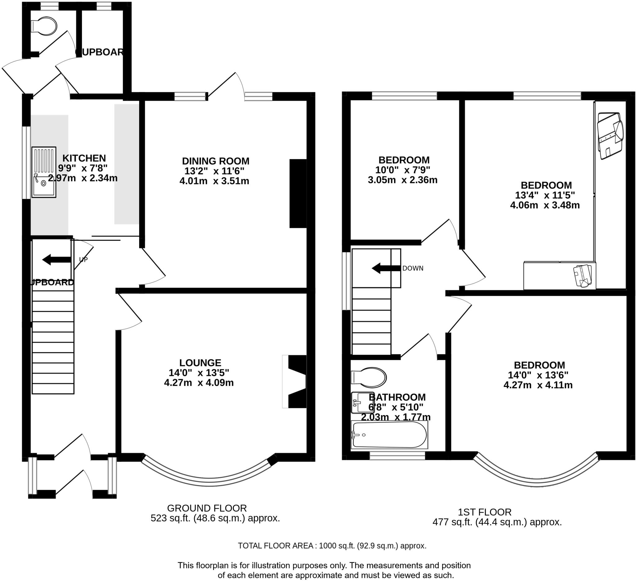
- Un-extended semi-detached property from the 1930s
- Three spacious bedrooms, two with built-in wardrobes
- Two reception rooms; separate dining room with garden access
- Private rear garden, approximately 80ft deep
- Driveway parking with a detached garage
- Planning permission opportunity for extension
- Highly regarded local schools (Outstanding ratings)
- Peaceful, tree-lined street in an affluent area
**Summary:**
Discover the potential of this charming semi-detached home, nestled in a tranquil, tree-lined crescent. With three generously sized bedrooms and a family bathroom, this property is perfect for families seeking comfort and functionality. The ground floor boasts a bright lounge featuring a classic bay window, a separate dining room that opens to a substantial private garden, and a well-equipped kitchen. The expansive rear garden, stretching approximately 80ft, offers ample outdoor space for children to play or for gardening enthusiasts to flourish.
Although the house is in good condition, it presents a fantastic opportunity for further enhancement through extension (subject to planning permission), allowing you to tailor it to your family's future needs. Located within walking distance to outstanding primary and secondary schools, and just a short stroll from the charming center of Harpenden with its excellent transport links, this home combines suburban tranquility with urban convenience. Take advantage of this rare offering—properties like these don’t stay on the market for long!
3 bedroom semi-detached house for sale in Alzey Gardens, Harpenden, Hertfordshire, AL5 — £725,000 • 3 bed • 1 bath • 914 ft²
5 bedroom semi-detached house for sale in Crabtree Lane, Harpenden, Hertfordshire, AL5 — £1,350,000 • 5 bed • 4 bath • 1766 ft²
3 bedroom semi-detached house for sale in Wroxham Way, Harpenden, AL5 — £750,000 • 3 bed • 1 bath • 1350 ft²
3 bedroom semi-detached house for sale in Springfield Crescent, Harpenden, AL5 — £610,000 • 3 bed • 1 bath • 926 ft²
4 bedroom semi-detached house for sale in St. Michaels Close, Harpenden, AL5 — £695,000 • 4 bed • 2 bath • 1696 ft²
3 bedroom terraced house for sale in Aldwickbury Crescent, Harpenden, AL5 — £600,000 • 3 bed • 1 bath • 1032 ft²


































































