Extended four-bedroom family home near station and top-rated schools.
Stunning extended open-plan kitchen/dining/family space with garden access
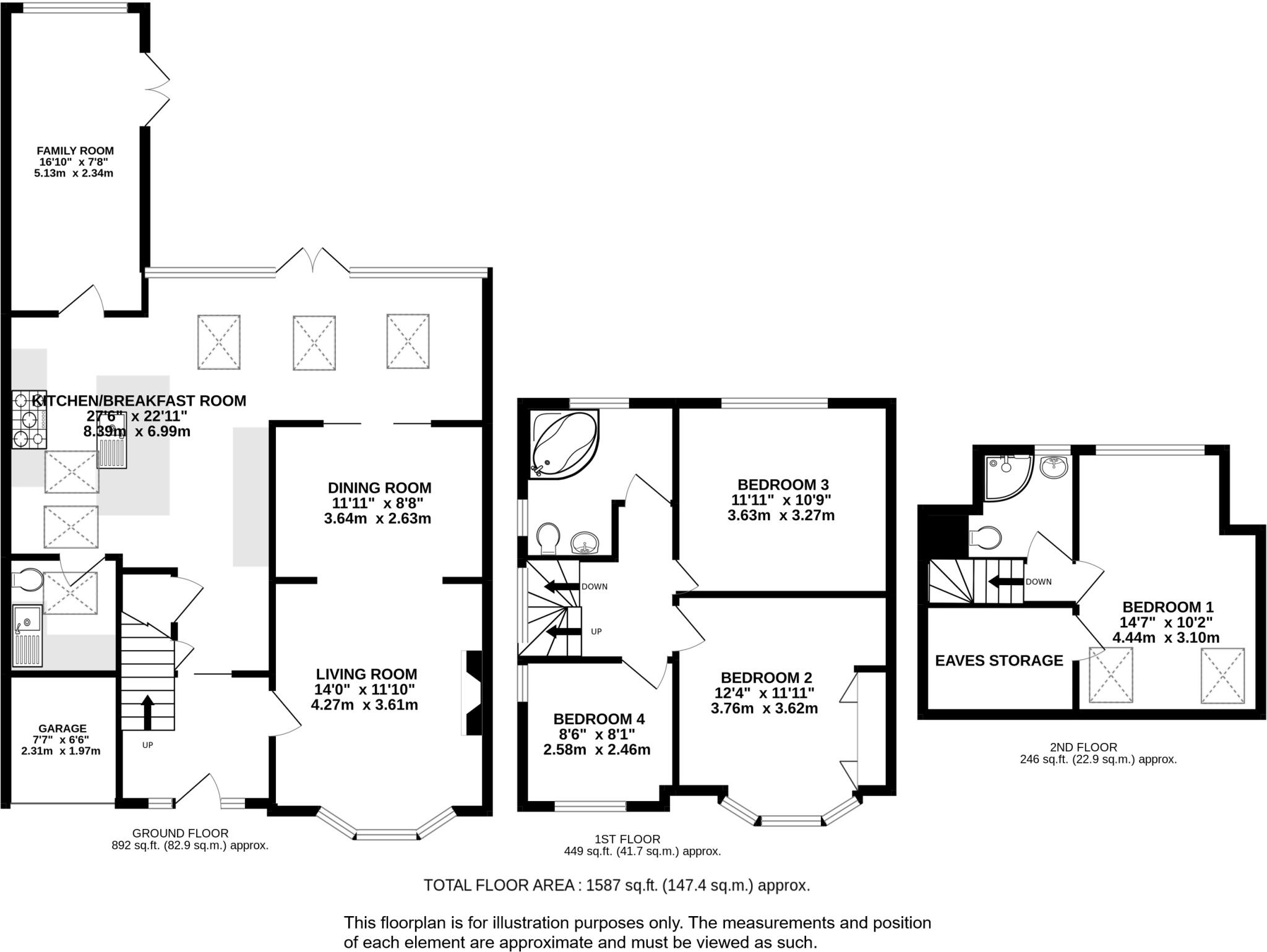
Principal bedroom occupies top floor with private modern shower room
Driveway parking, garage/storage area, greenhouse and powered shed
Short walk to Harpenden station; fast rail links to London
Within walking distance of several outstanding local schools
Presented in exceptional condition throughout; ready to move into
Built 1950s–66; double glazing present but install date unknown
Council tax band above average — factor ongoing running costs
This well-presented four-bedroom semi-detached house on Springfield Crescent is arranged over three floors and made for family living. The ground floor boasts a generous living room and a rear extension creating a striking open-plan kitchen/dining/family area that opens onto a patio and landscaped garden — ideal for everyday life and entertaining.
The flexible layout includes an additional family room with French doors, a utility room and separate WC, plus three bedrooms on the first floor and a principal bedroom with its own shower room on the top floor. Practical features include off-street driveway parking, a garage/storage area, greenhouse and a powered shed at the garden end.
Positioned on Harpenden’s desirable east side, the home is a short walk from the mainline station and within easy reach of outstanding local schools, open countryside and the town centre’s amenities. Broadband and mobile signal are strong and there is no local flood risk.
A few factual points to note: the house dates from the 1950s–60s, cavity walls are filled, glazing is double but the installation date is unknown, and council tax is above average. Overall the property is presented in excellent condition but buyers seeking a new-build specification should note the mid-century construction and check specific maintenance histories where relevant.
 3 bedroom semi-detached house for sale in Springfield Crescent, Harpenden, AL5 — £610,000 • 3 bed • 1 bath • 983 ft²
 3 bedroom semi-detached house for sale in Springfield Crescent, Harpenden, AL5 — £610,000 • 3 bed • 1 bath • 983 ft² 4 bedroom semi-detached house for sale in Springfield Crescent, Harpenden, AL5 — £875,000 • 4 bed • 2 bath • 2025 ft²
 4 bedroom semi-detached house for sale in Springfield Crescent, Harpenden, AL5 — £875,000 • 4 bed • 2 bath • 2025 ft² 3 bedroom semi-detached house for sale in Springfield Crescent, Harpenden, AL5 — £610,000 • 3 bed • 1 bath • 926 ft²
 3 bedroom semi-detached house for sale in Springfield Crescent, Harpenden, AL5 — £610,000 • 3 bed • 1 bath • 926 ft² 4 bedroom detached house for sale in Aldwickbury Crescent, Harpenden, Hertfordshire, AL5 — £1,250,000 • 4 bed • 2 bath • 1888 ft²
 4 bedroom detached house for sale in Aldwickbury Crescent, Harpenden, Hertfordshire, AL5 — £1,250,000 • 4 bed • 2 bath • 1888 ft² 4 bedroom semi-detached house for sale in St. Michaels Close, Harpenden, AL5 — £695,000 • 4 bed • 2 bath • 1696 ft²
 4 bedroom semi-detached house for sale in St. Michaels Close, Harpenden, AL5 — £695,000 • 4 bed • 2 bath • 1696 ft² 4 bedroom semi-detached house for sale in The Close, Harpenden, AL5 — £1,095,000 • 4 bed • 3 bath • 1900 ft²
 4 bedroom semi-detached house for sale in The Close, Harpenden, AL5 — £1,095,000 • 4 bed • 3 bath • 1900 ft²










































































































