Character-filled three-bedroom home with potential to modernise near Knighton amenities.
Bay-fronted main bedroom with period proportions
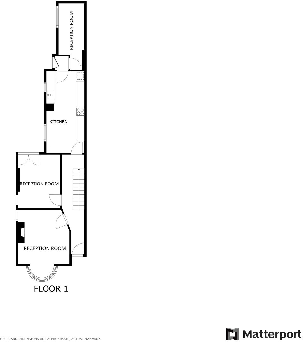
Set just off Queens Road in sought-after Knighton, this late-Victorian semi-detached home combines period character with practical living across approximately 1,130 sqft. High ceilings, a bay-fronted principal bedroom, original-style tiled entrance and three reception rooms give the house flexible living space for family life or shared occupancy. A fitted kitchen-dining room and a modern shower room with a rainfall head add contemporary convenience.
The property sits on a small plot with a forecourt and an established rear garden, plus a useful side bike store. Majority double glazing and gas central heating to radiators mean day-to-day running is straightforward, and broadband and mobile signals are strong in this area popular with students and professionals.
Internally the presentation is neutral and largely undecorated, so there is clear scope to modernise and add value through cosmetic upgrading or reconfiguration. Buyers should note the building’s solid-brick construction (typical of the era) and the assumption of no cavity insulation — improving thermal efficiency could be a future project. EPC rating D is current.
This home will suit a family seeking period proportions close to schools and local amenities, or an investor wanting a character property with refurbishment potential in a cosmopolitan, well-connected neighbourhood. Major structural concerns are not indicated, but purchasers seeking a fully modernised finish should allow a budget for updating and energy-efficiency improvements.
3 bedroom semi-detached house for sale in Ashclose Avenue, Knighton, Leicester, LE2 — £350,000 • 3 bed • 1 bath • 990 ft²
3 bedroom semi-detached house for sale in Gainsborough Road, Knighton, Leicester, LE2 — £340,000 • 3 bed • 1 bath • 1001 ft²
3 bedroom semi-detached house for sale in Kingsmead Road, Knighton, Leicester, LE2 — £425,000 • 3 bed • 1 bath • 1184 ft²
3 bedroom terraced house for sale in College Avenue, Off London Road, Leicester, LE2 — £245,000 • 3 bed • 1 bath • 1055 ft²
3 bedroom terraced house for sale in College Avenue, Off London Road, Leicester, LE2 — £250,000 • 3 bed • 1 bath • 1098 ft²
3 bedroom semi-detached house for sale in Knighton Church Road, South Knighton, Leicester, LE2 — £495,000 • 3 bed • 1 bath • 1428 ft²






































































