**Standout Features:**
- Bay fronted traditional semi-detached house
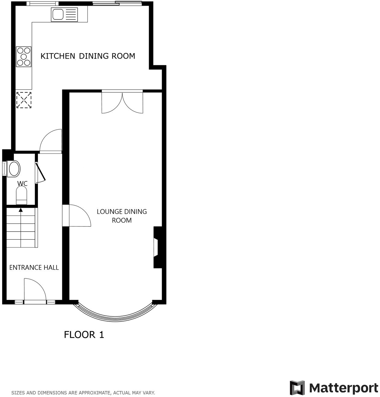
- Extended L-shaped kitchen dining area
- Spacious open plan lounge dining room
- Three bedrooms and a modern family bathroom
- Established rear garden and off-road parking
- Convenient location near local schools and amenities
Don’t miss out on this charming 1930s bay fronted semi-detached home that effortlessly combines traditional elegance with modern living. This delightful property boasts a spacious open plan lounge and dining area bathed in natural light, thanks to its sizable double-glazed windows. The extended L-shaped kitchen dining room offers generous workspace and flows seamlessly into the outdoor garden, perfect for family gatherings or quiet relaxation.
Upstairs, you'll find three comfortably sized bedrooms, ideal for families or as versatile guest spaces. The modern family bathroom adds to the home's appeal. Outside, an established garden provides a serene retreat, while off-road parking ensures practicality.
Located in the vibrant LE2 postcode, this home sits close to reputable schools, Leicester Royal Infirmary, and lush Knighton Park, making it perfect for families or investors. The area is well-connected with excellent mobile and broadband services, enhancing work-from-home prospects.
**Potential Downsides:** Note that while the property is well-maintained, the solid brick walls may benefit from additional insulation to improve energy efficiency.
With a competitive price of £340,000, this property represents a fantastic opportunity in a desirable neighborhood. Act quickly to secure your chance to own this inviting family home!
3 bedroom semi-detached house for sale in Kingsmead Road, Knighton, Leicester, LE2 — £425,000 • 3 bed • 1 bath • 1184 ft²
3 bedroom semi-detached house for sale in Stonehurst Road, Braunstone Town, Leicester, LE3 — £285,000 • 3 bed • 1 bath • 1066 ft²
3 bedroom semi-detached house for sale in Ashclose Avenue, Knighton, Leicester, LE2 — £350,000 • 3 bed • 1 bath • 990 ft²
3 bedroom semi-detached house for sale in Welford Road, Knighton, Leicester, LE2 — £300,000 • 3 bed • 1 bath • 980 ft²
3 bedroom semi-detached house for sale in Northfold Road, Knighton, Leicester, LE2 — £320,000 • 3 bed • 1 bath • 850 ft²
3 bedroom semi-detached house for sale in Overdale Road, Knighton, Leicester, LE2 — £315,000 • 3 bed • 2 bath • 1023 ft²






















































































