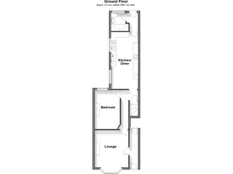
**Standout Features:**
- One-bedroom ground floor flat with additional cellar room
- Private front and rear garden
- Gas central heating and double glazing
- Modern galley kitchen with integrated appliances
- Within walking distance to Gillingham High Street and main line station
- Low council tax and long lease
**Potential Downsides:**
- Overall small size (420 sq ft)
- High local crime rate
- Solid brick walls with assumed no insulation
Perfect for first-time buyers seeking comfort and convenience, this modernized one-bedroom flat offers unique value with its additional cellar space and private garden, ideal for relaxing or entertaining. The well-designed galley kitchen features contemporary finishes and integrated appliances, while the spacious lounge and comfortable bedroom provide a cozy living environment.
With fast broadband speeds and an excellent mobile signal, this property is not only a serene starter home but also an excellent investment opportunity, given its proximity to Gillingham High Street and public transport links. Take advantage of the reasonable price of £160,000 in this urban cultural mix area, but act fast—this gem won’t last long! Enhanced by a long lease, the flat holds significant potential for future renovations, making it a great choice for those looking to put their personal touch on their new home.
While the local area has a high crime rate and some concerns about insulation, the low council tax and strong rental potential present undeniable value for savvy buyers. Explore this opportunity and imagine your new life in this charming ground floor flat!
1 bedroom house for sale in Richmond Road, Gillingham, Kent, ME7 — £130,000 • 1 bed • 1 bath • 518 ft²
1 bedroom flat for sale in Railway Street, Gillingham, Kent, ME7 — £130,000 • 1 bed • 1 bath • 465 ft²
3 bedroom terraced house for sale in Ingram Road, Gillingham, Kent, ME7 — £320,000 • 3 bed • 2 bath • 843 ft²
2 bedroom terraced house for sale in Gillingham Road, Gillingham, Kent, ME7 — £220,000 • 2 bed • 1 bath • 396 ft²
2 bedroom flat for sale in Castlemaine Avenue, Gillingham, Kent, ME7 — £150,000 • 2 bed • 1 bath • 604 ft²
2 bedroom flat for sale in Saxton Street, Gillingham, Kent, ME7 — £170,000 • 2 bed • 1 bath • 740 ft²






































