**Standout Features:**
- Victorian terraced house with period features
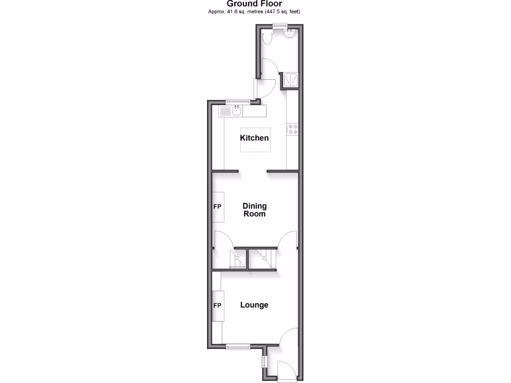
- Modern kitchen with stainless steel appliances and skylight
- Off-road parking potential (consent required to drop kerb)
- Two compact bedrooms and a well-maintained shower room
- Walking distance to Gillingham High Street and mainline station
- Small rear garden for outdoor space
**Concerns:**
- Property size is small (396 sq ft)
- Above-average crime rate in the area
- Some further maintenance may be needed; current condition should be verified
This charming Victorian terraced house is perfect for first-time buyers seeking an affordable entry into homeownership. With modern amenities like a contemporary kitchen featuring bright skylights and a comfortable atmosphere, it offers potential for personalized renovations. Enjoy the convenience of off-road parking, subject to obtaining necessary consents, and relish the vibrant community with Gillingham High Street just a short walk away.
While located in an area with above-average crime rates, you can benefit from excellent mobile and broadband connectivity. The property offers a quaint garden space, ideal for relaxation. Be mindful that the property is compact, making it essential to envision optimal design and utilization of each area. Don’t miss out on this opportunity—properties like this are in high demand!
2 bedroom terraced house for sale in James Street, Gillingham, Kent, ME7 — £220,000 • 2 bed • 1 bath • 549 ft²
2 bedroom end of terrace house for sale in Saxton Street, Gillingham, Kent, ME7 — £210,000 • 2 bed • 1 bath • 644 ft²
2 bedroom end of terrace house for sale in Jeffery Street, Gillingham, Kent, ME7 — £225,000 • 2 bed • 1 bath • 797 ft²
3 bedroom terraced house for sale in Ingram Road, Gillingham, Kent, ME7 — £320,000 • 3 bed • 2 bath • 843 ft²
3 bedroom town house for sale in Paget Street, Gillingham, Kent, ME7 — £275,000 • 3 bed • 1 bath • 1022 ft²
3 bedroom terraced house for sale in King William Road, Gillingham, Kent, ME7 — £260,000 • 3 bed • 1 bath • 663 ft²














































