**Standout Features:**
- Victorian terraced house with period charm
- 3 spacious bedrooms and 2 bathrooms (family and shower room)
- Gas central heating and double glazing
- Well-kept garden with patio and pergola for outdoor relaxation
- High ceilings, ample natural light, and good-sized rooms
- Convenient walking distance to Gillingham High Street and mainline station
- Freehold tenure
**Considerations:**
- Solid brick walls with no insulation (assumed)
- Located in an area with above-average crime rates and some levels of deprivation
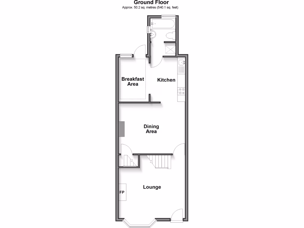
This charming Victorian terraced house offers well-presented family accommodation over three floors, complemented by a generous cellar for extra storage. Perfectly located just a short walk from Gillingham High Street and the mainline station, this home is ideal for families and first-time buyers looking for comfort and convenience. Its standout features include separate bedrooms, a family bathroom downstairs, and an upstairs shower room, making it practical for busy households.
Enjoy outdoor living in a beautifully landscaped garden complete with a pergola, perfect for gatherings or quiet evenings. The home benefits from gas central heating and double glazing, enhancing energy efficiency and comfort. While the property is an excellent opportunity, it's worth noting the absence of insulation in the solid brick walls and the neighborhood's elevated crime rate. Nonetheless, with schools rated ‘Good’ nearby, this home offers potential for a family to flourish. Don’t miss out on this unique chance to own a piece of Victorian charm in a vibrant area—opportunities like this don’t last long!
3 bedroom terraced house for sale in Linden Road, Gillingham, Kent, ME7 — £300,000 • 3 bed • 1 bath • 1100 ft²
3 bedroom town house for sale in Paget Street, Gillingham, Kent, ME7 — £275,000 • 3 bed • 1 bath • 1022 ft²
3 bedroom terraced house for sale in King William Road, Gillingham, Kent, ME7 — £260,000 • 3 bed • 1 bath • 663 ft²
3 bedroom terraced house for sale in Saxton Street, Gillingham, Kent, ME7 — £200,000 • 3 bed • 1 bath • 711 ft²
3 bedroom end of terrace house for sale in Crosley Road, Gillingham, Kent, ME7 — £335,000 • 3 bed • 1 bath • 1195 ft²
2 bedroom terraced house for sale in Gillingham Road, Gillingham, Kent, ME7 — £220,000 • 2 bed • 1 bath • 396 ft²


































































