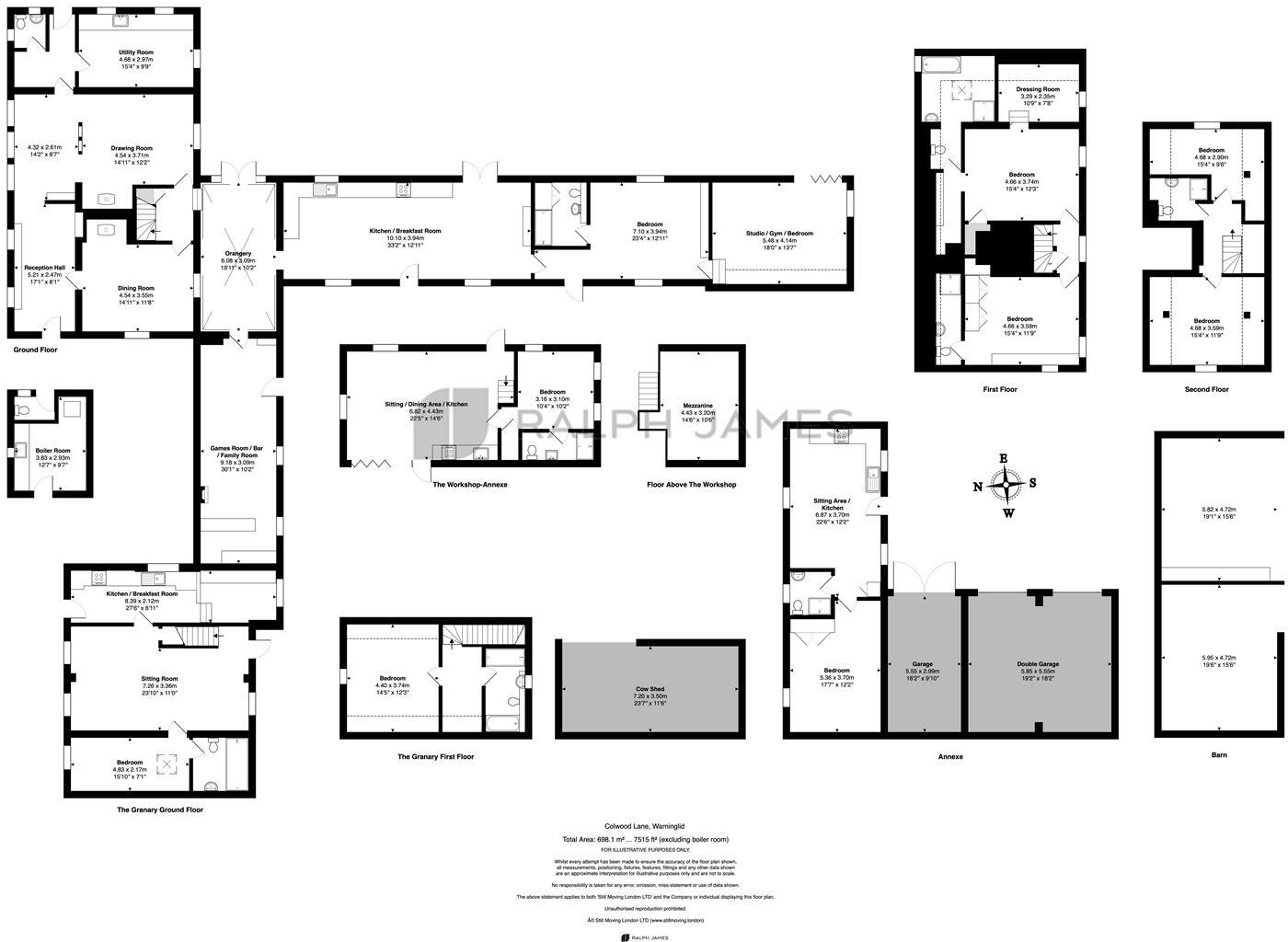
Spacious family home with annex income potential in secluded rural grounds.
- 16th-century Grade II listed farmhouse with historic character
- Approximately 5,600 sq ft main house across three floors
- Set in c.5.8 acres of private rolling gardens and grounds
- Three self-contained annexes (2-bed Granary, two 1-bed units)
- Triple garage, barn for storage and all‑weather tennis court
- Heating via electric room heaters; no central gas system
- Listed status restricts alterations and complicates major works
- Council tax described as quite expensive; maintenance likely high
Playdells Farm is an impressive Grade II–listed 16th-century farmhouse set in about 5.8 acres of private rolling gardens. The main house offers around 5,600 sq ft of adaptable living space across three floors, with five reception rooms, a large vaulted kitchen with an Aga, and a 30ft games/bar/family room designed for entertaining and multigenerational living. Three self-contained annexes (a two-bed Granary and two one-bed units) provide guest accommodation or rental potential.
Practical strengths include plentiful storage—a triple garage and separate barn—an all‑weather tennis court and strong digital connectivity (excellent mobile signal and fast broadband). The site is secluded yet reachable to nearby towns, and flood risk is nil. Double glazing was fitted post‑2002, preserving some energy efficiency improvements.
Buyers should note material constraints: the Grade II listing will restrict alterations and likely complicate major works; heating relies on electric room heaters rather than a central gas system; council tax is described as quite expensive; and the property may need sympathetic updating in places. For purchasers seeking a characterful country estate, the house offers significant lifestyle and income potential, but any renovation will require listed‑building consent and appropriate budgeting.
 Equestrian facility for sale in Colwood Lane, Warninglid, Haywards Heath, West Sussex, RH17 — £2,250,000 • 5 bed • 4 bath • 5574 ft²
 Equestrian facility for sale in Colwood Lane, Warninglid, Haywards Heath, West Sussex, RH17 — £2,250,000 • 5 bed • 4 bath • 5574 ft² 4 bedroom detached house for sale in London Road, Balcombe, Haywards Heath, West Sussex, RH17 — £1,450,000 • 4 bed • 2 bath • 2035 ft²
 4 bedroom detached house for sale in London Road, Balcombe, Haywards Heath, West Sussex, RH17 — £1,450,000 • 4 bed • 2 bath • 2035 ft² 6 bedroom detached house for sale in Lyons Road, Slinfold, Horsham, West Sussex, RH13 — £2,250,000 • 6 bed • 4 bath • 3521 ft²
 6 bedroom detached house for sale in Lyons Road, Slinfold, Horsham, West Sussex, RH13 — £2,250,000 • 6 bed • 4 bath • 3521 ft² 6 bedroom detached house for sale in Fairlight Farm, Holtye Road, East Grinstead, West Sussex, RH19 — £2,000,000 • 6 bed • 5 bath • 4104 ft²
 6 bedroom detached house for sale in Fairlight Farm, Holtye Road, East Grinstead, West Sussex, RH19 — £2,000,000 • 6 bed • 5 bath • 4104 ft² 5 bedroom detached house for sale in Luxfords Lane, East Grinstead, West Sussex, RH19 — £1,550,000 • 5 bed • 2 bath • 3207 ft²
 5 bedroom detached house for sale in Luxfords Lane, East Grinstead, West Sussex, RH19 — £1,550,000 • 5 bed • 2 bath • 3207 ft² 7 bedroom detached house for sale in Church Road, Herstmonceux, BN27 — £2,000,000 • 7 bed • 5 bath • 5459 ft²
 7 bedroom detached house for sale in Church Road, Herstmonceux, BN27 — £2,000,000 • 7 bed • 5 bath • 5459 ft²


















































































































































































































