Compact city living close to Angel Station and local amenities.
Private entrance and secluded patio off the bedroom
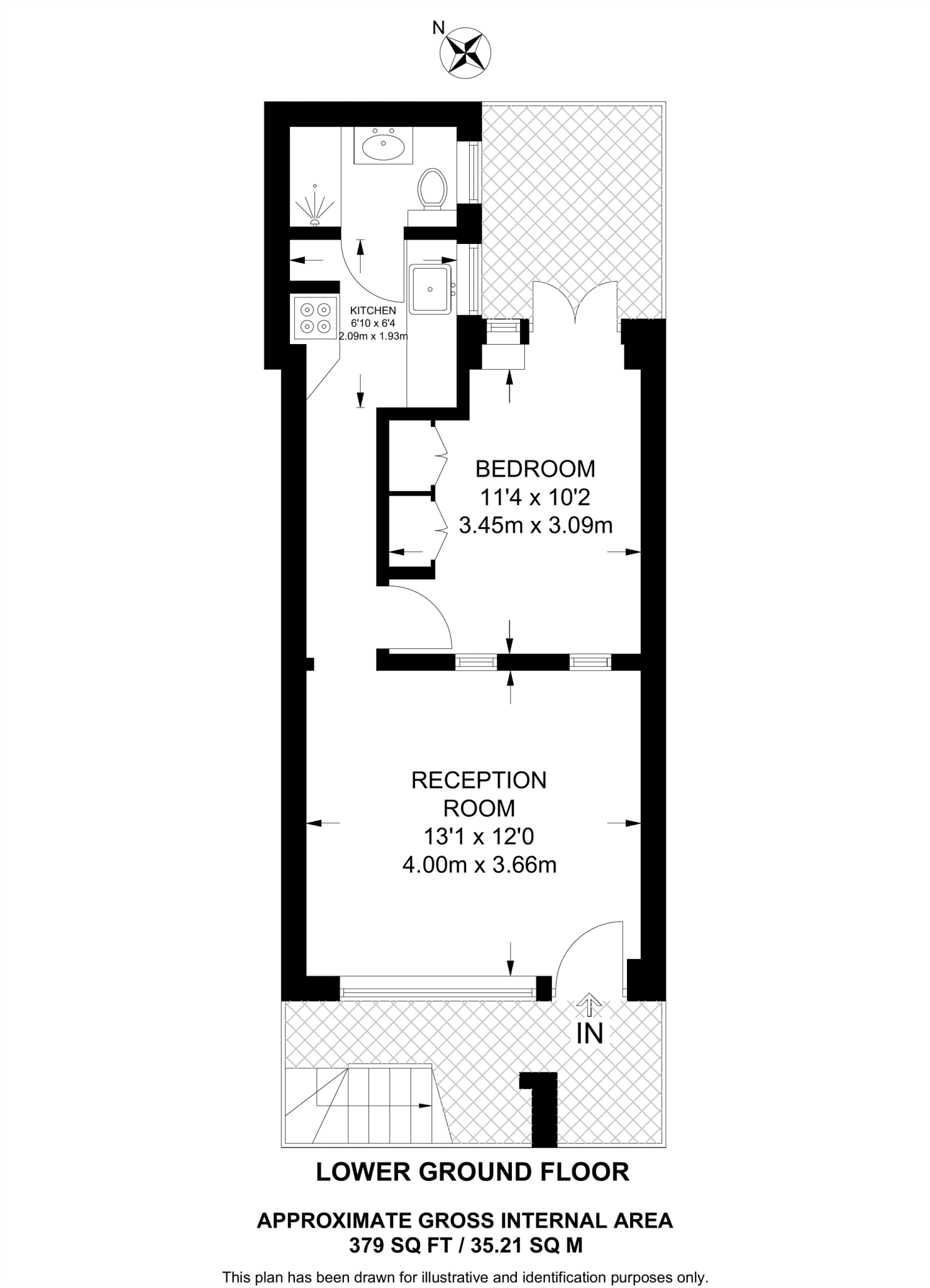
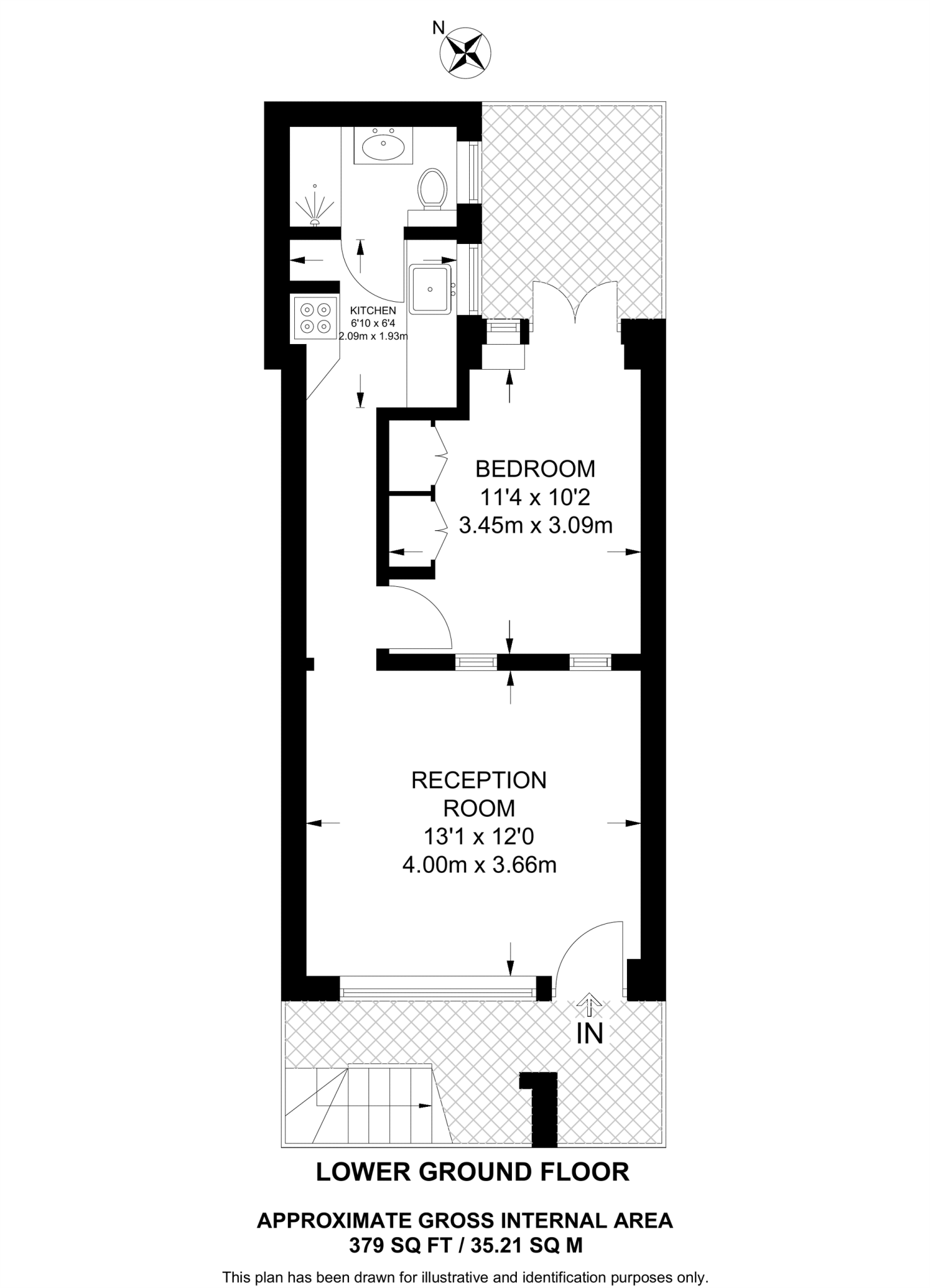
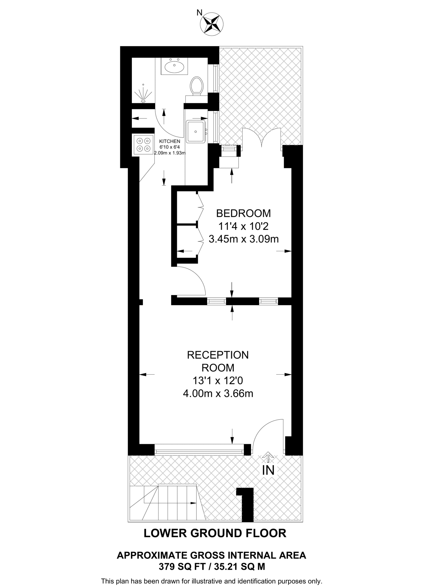
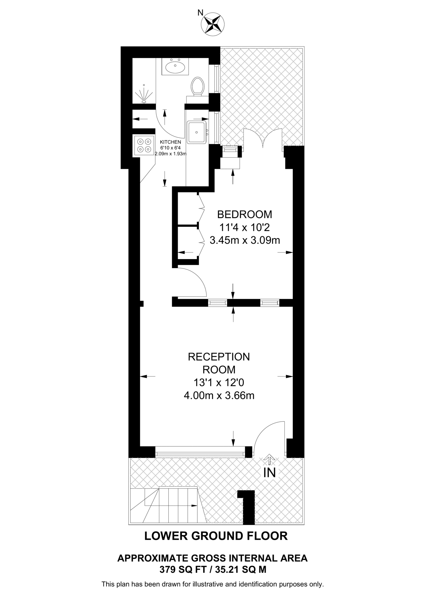
A quietly tucked lower‑level flat in Angel’s conservation area, this one‑bedroom home offers private access and a secluded patio — rare extras so close to Angel and Islington. The large reception room with parquet flooring feels bright and usable for dining and relaxing, while the contemporary kitchen and modern shower room keep upkeep straightforward.
The apartment is compact at around 379 sq ft and suits a first‑time buyer or investor seeking a central, well‑connected base with immediate rental potential. Share of freehold adds tenure security. Local transport, shops, cafés and canal towpaths are all within easy walking distance, and several well‑rated primary and secondary schools serve the area.
Buyers should note practical limitations: the property relies on electric storage heaters and has solid brick walls assumed to be uninsulated, which can mean higher running costs. The bedroom has a low ceiling and the flat shows signs that some maintenance is needed (security bars and minor repairs). Overall this is a compact, characterful city flat with good location upside for the right buyer.
1 bedroom flat for sale in Liverpool Road, Islington, London, N1 — £425,000 • 1 bed • 1 bath • 432 ft²
2 bedroom ground floor flat for sale in Gerrard Road, London, N1 — £985,000 • 2 bed • 1 bath • 963 ft²
1 bedroom flat for sale in Upper Hawkwell Walk, London N1 — £385,000 • 1 bed • 1 bath • 546 ft²
1 bedroom apartment for sale in St. Peter's Street, Angel, N1 — £325,000 • 1 bed • 1 bath • 489 ft²
1 bedroom flat for sale in Petherton Road, Islington, London, N5 — £475,000 • 1 bed • 1 bath • 525 ft²
1 bedroom apartment for sale in Danbury Street, Angel, Islington, London, N1 — £500,000 • 1 bed • 1 bath • 460 ft²














































































































