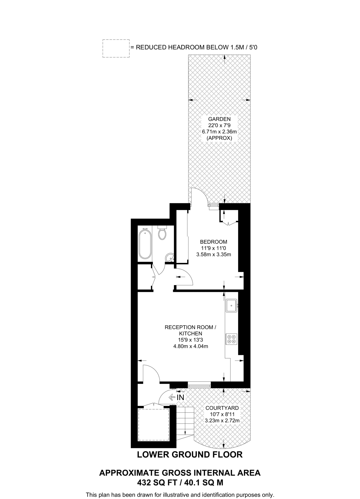
Compact starter home with outdoor space and modern kitchen near Upper Street.
Good-sized bedroom and reception with dining space
Private garden — rare for a lower-ground flat
Open-plan modern kitchen with integrated appliances
Compact overall size: approximately 432 sq ft
Leasehold tenure — check remaining term and charges
Solid brick construction; likely no wall insulation
Double glazing present; installation date unknown
Neighbourhood records very high crime levels
This lower-ground one-bedroom garden flat sits moments from Angel and Upper Street, putting cafés, restaurants and transport links within easy reach. The layout features a good-sized bedroom, reception with dining space and a modern open-plan kitchen, all arranged over compact but well-proportioned 432 sq ft. A private garden is a standout asset for outside space in this location.
The building is a Georgian mid-terrace of solid brick construction, which gives character but likely means walls without cavity insulation. The property has double glazing (install date unknown) and gas central heating via a boiler and radiators; buyers should budget for potential energy-efficiency upgrades such as wall insulation and checking glazing condition.
Practical points: the flat is leasehold, arranged on the lower-ground floor, and the neighbourhood records very high crime levels — an important consideration for security and insurance. Broadband and mobile signal are strong and local schools include several Ofsted-rated Good and Outstanding options.
This apartment will suit a first-time buyer or investor wanting a compact city base with private outdoor space and easy access to Angel’s amenities. It’s a rare lower-ground flat with a garden, but it’s best approached with awareness of the security situation and likely improvement works to boost long-term comfort and efficiency.
1 bedroom flat for sale in St Peters Street, Angel, London, N1 — £375,000 • 1 bed • 1 bath • 379 ft²
2 bedroom flat for sale in Claremont Close, Islington, N1 — £630,000 • 2 bed • 1 bath • 659 ft²
1 bedroom flat for sale in Upper Hawkwell Walk, London N1 — £385,000 • 1 bed • 1 bath • 546 ft²
2 bedroom apartment for sale in Danbury Street, Angel, Islington, London, N1 — £700,000 • 2 bed • 1 bath • 668 ft²
2 bedroom character property for sale in Pentonville Road, London, N1 — £900,000 • 2 bed • 1 bath • 875 ft²
1 bedroom flat for sale in Ground Floor Flat, 212 New North Road, N1 7BJ, N1 — £445,000 • 1 bed • 1 bath • 474 ft²


































































































































































