Spacious plot, strong transport links and clear uplift potential for buyers.
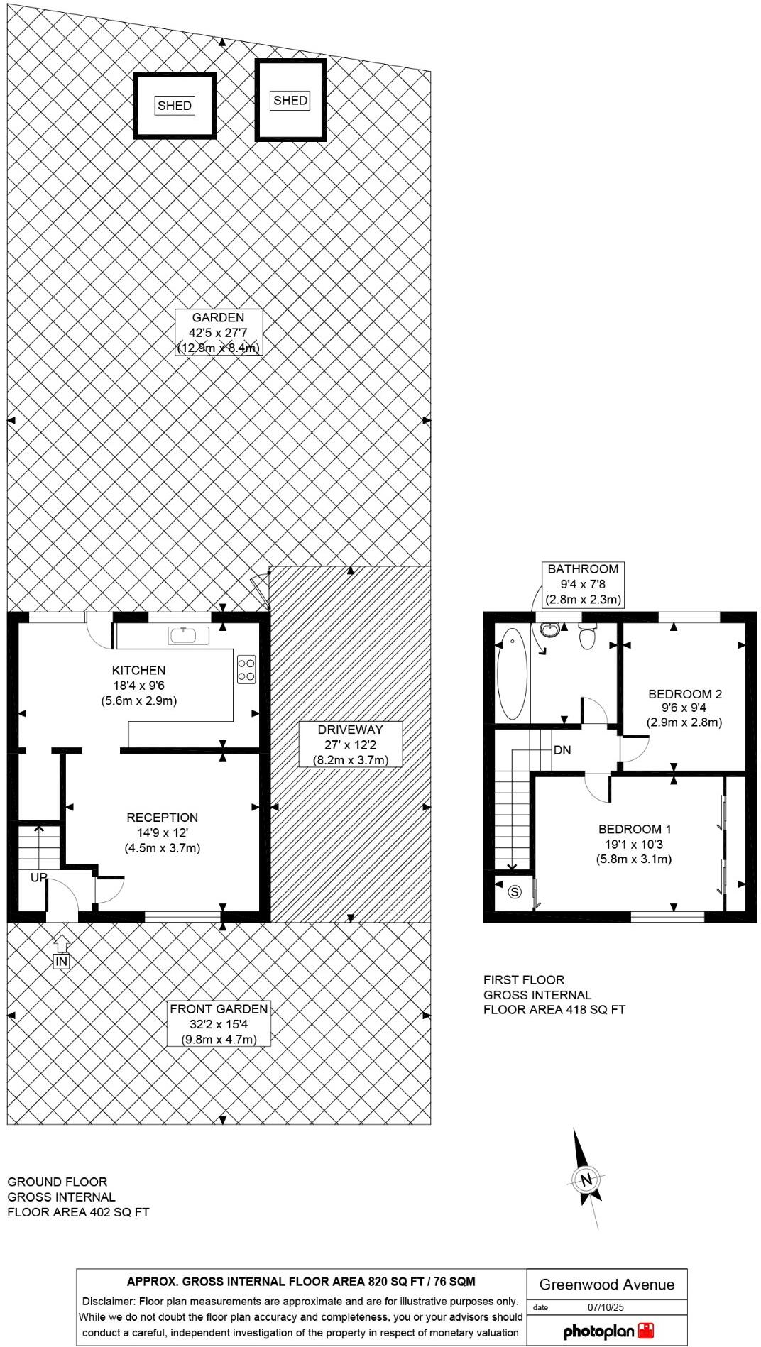
Chain-free freehold two-bedroom end-of-terrace
Large private rear garden approx 42'5" x 27'7"
Driveway for multiple vehicles with side access
Potential to extend subject to planning permission
EPC rating D; likely solid walls without insulation
Built 1930–49; dated interior requiring modernisation
Close to Dagenham East station and good schools
Located in a very deprived area—affects comparables
This chain-free, two-bedroom end-of-terrace on Greenwood Avenue offers practical family living with generous outdoor space and off-street parking. The property sits on a freehold plot with a long private rear garden and a driveway wide enough for multiple vehicles — rare for the area and useful for growing families or weekend projects.
Internally the rooms are well-proportioned: a 14'9" reception room and an 18'4" kitchen/diner provide comfortable living and dining space, while the larger first-floor bedroom stretches to around 19'1". There is clear scope to extend (subject to planning), which adds value for buyers who need more living space or want to refurbish and modernise.
Buyers should be aware of some practical drawbacks. The EPC is currently rated D and the solid-brick walls are assumed to lack insulation, so heating costs and retrofit work should be factored into budgets. The house dates from the 1930–49 period and shows signs of dated fittings and finishes—this is a renovation opportunity rather than a move-in-new home.
Location strengths include proximity to Dagenham East station and several well-rated local schools, making this attractive for commuters and families. The property sits in a neighbourhood with higher deprivation indices, which may influence resale comparables; nonetheless low local crime, fast broadband and excellent mobile signal support everyday living and rental potential.
2 bedroom terraced house for sale in Western Avenue, Dagenham RM10 — £400,000 • 2 bed • 1 bath • 739 ft²
3 bedroom terraced house for sale in Hunters Hall Road, Dagenham, RM10 — £415,000 • 3 bed • 1 bath • 1040 ft²
2 bedroom end of terrace house for sale in Shortcrofts Road, Dagenham, RM9 — £415,000 • 2 bed • 1 bath • 781 ft²
3 bedroom terraced house for sale in Manor Road, Dagenham, RM10 — £425,000 • 3 bed • 1 bath • 777 ft²
3 bedroom end of terrace house for sale in Shortcroft Road, Dagenham , RM9 — £400,000 • 3 bed • 2 bath • 1019 ft²
4 bedroom terraced house for sale in Victoria Road, Dagenham, RM10 — £450,000 • 4 bed • 1 bath • 1217 ft²






























































