Driveway, garden and direct rail links into the city — ideal for growing households.
Driveway for multiple vehicles and side access
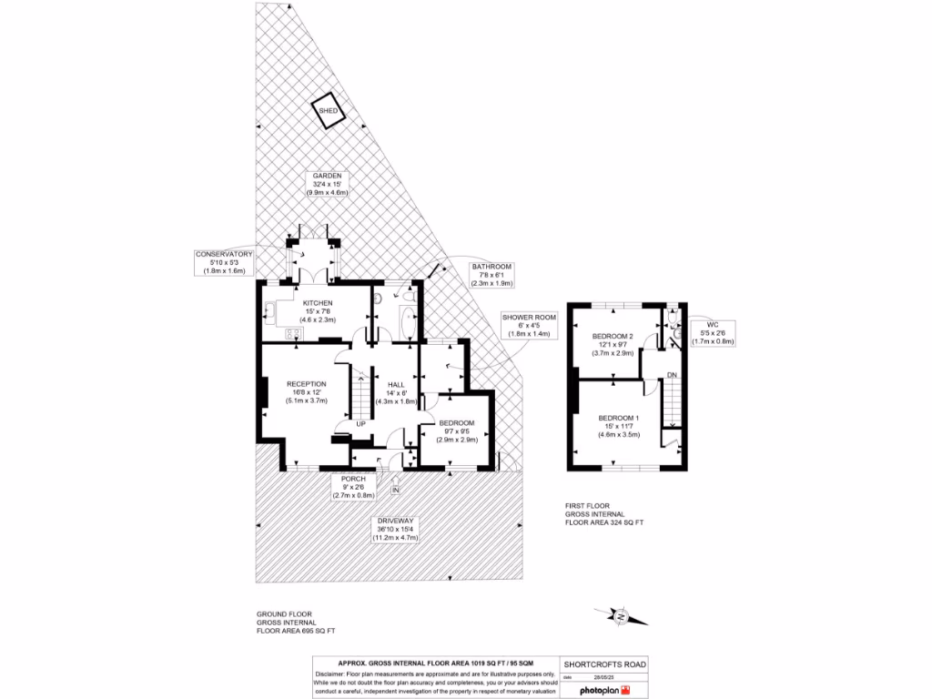
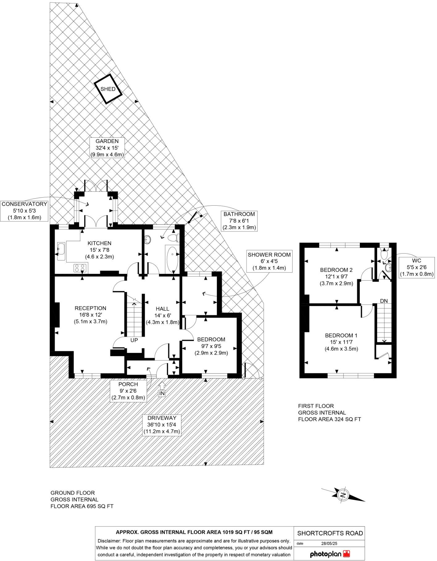
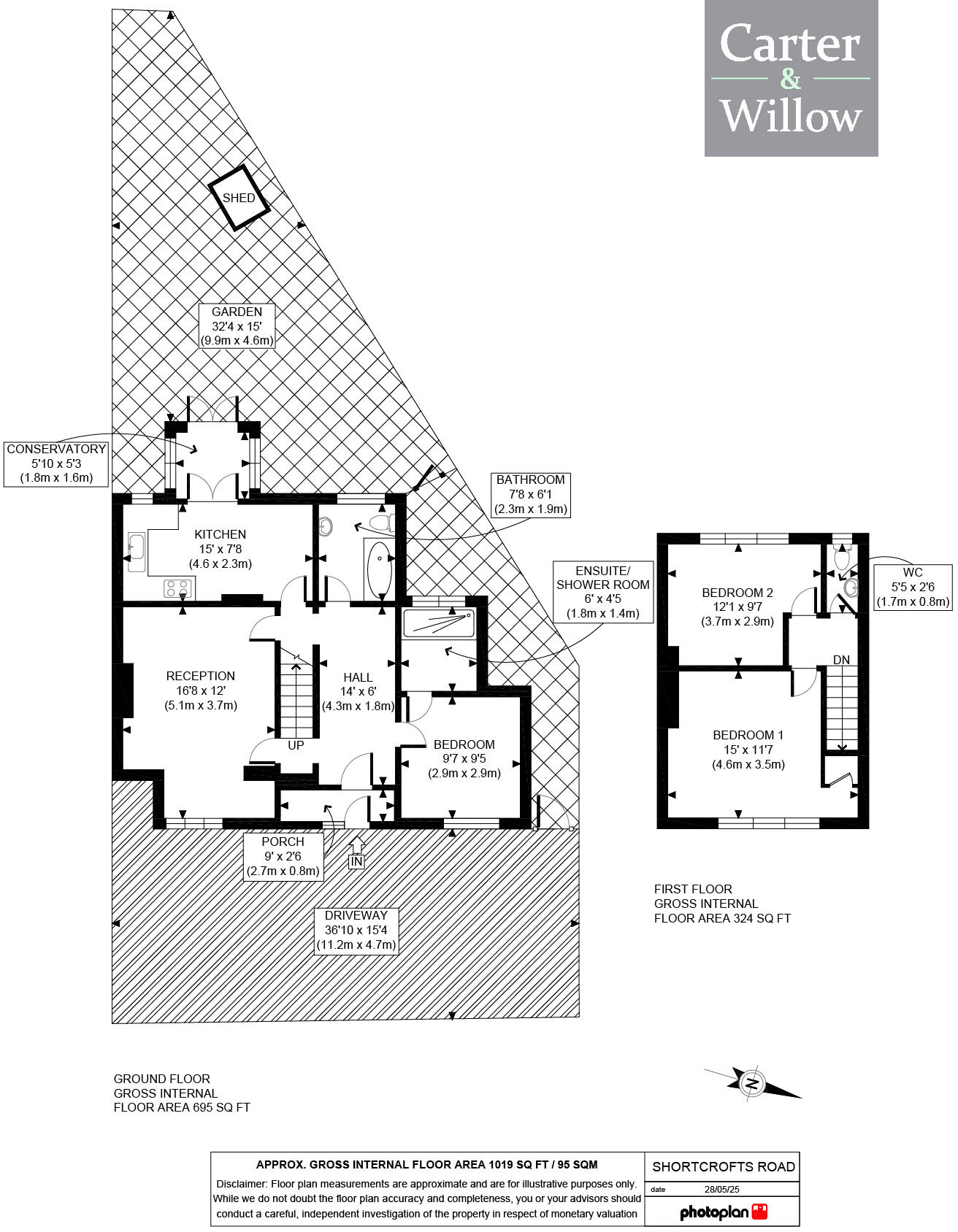
This mid‑20th century end terrace offers practical family living with scope to add value. The house sits on a small plot with a long driveway for several vehicles, a private rear garden with side access and a single‑storey side/front extension plus conservatory — useful for a growing household. Heating is mains gas with a boiler and radiators; windows are double glazed and the EPC is C.
Internally the layout is traditional: a generous hallway (previously used as a study), one reception room, separate kitchen, ground‑floor wet room and bathroom, plus a first‑floor WC and three bedrooms. Room sizes are sensible (master approx. 4.6 x 3.5m) and the property’s footprint totals about 1,019 sq ft, which will suit families wanting straightforward accommodation near Parsloes Park and local schools rated Good.
Buyers should note the area has higher crime levels and is in a very deprived ward, which may affect resale perceptions. The property shows signs of age and presents a renovation opportunity: pebble‑dash exterior, dated internal finishes and assumed cavity wall without added insulation. No flood risk is recorded and broadband and mobile signals are strong.
This freehold home will appeal to families seeking space and transport links into the city, or to buyers willing to invest in cosmetic and energy upgrades to improve comfort and value. Council tax band C and convenient access to Dagenham Heathway and Becontree stations are practical benefits.
4 bedroom terraced house for sale in Burnham Road, Dagenham , RM9 — £450,000 • 4 bed • 1 bath • 1062 ft²
2 bedroom end of terrace house for sale in Shortcrofts Road, Dagenham, RM9 — £415,000 • 2 bed • 1 bath • 781 ft²
3 bedroom end of terrace house for sale in Ivyhouse Road, Dagenham, RM9 — £475,000 • 3 bed • 1 bath • 1275 ft²
3 bedroom terraced house for sale in Manor Road, Dagenham, RM10 — £425,000 • 3 bed • 1 bath • 777 ft²
3 bedroom terraced house for sale in Dagenham Avenue, Dagenham, RM9 — £400,000 • 3 bed • 1 bath • 813 ft²
3 bedroom end of terrace house for sale in Woodward Road, Dagenham , RM9 — £450,000 • 3 bed • 1 bath • 979 ft²


























































































































