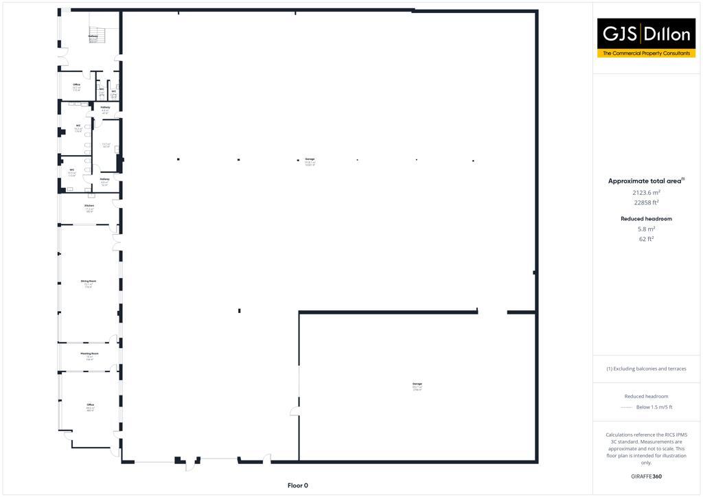
Expansive industrial site with extension potential for occupiers or investors.
- Total area 26,250 sq ft (2,438.7 sq m) GIA
- Warehouse eaves height 6m throughout
- Ground and first floor offices 5,954 sq ft
- On-site parking for approximately 30 cars
- Part-secure rear yard with roller shutter vehicle access
- Adjacent parcel of land for expansion or extra shutter
- Built c.1980s — likely requires modernisation/refurbishment
- Located in industrial area; local amenities limited, higher deprivation
A substantial freehold light industrial unit occupying a 1.25-acre plot on Oxleasow Road, offering 26,250 sq ft GIA across warehouse and office accommodation. The warehouse provides a consistent 6m eaves height, wide internal spans and on-site welfare and office provision over ground and first floors — practical for manufacturing, storage or distribution occupiers.
The site includes about 30 front car parking spaces, a partly secure rear yard with roller shutter access and an adjacent parcel of expansion land that could be used for extra yard or an additional shutter. Services include mains gas with a combi-boiler for offices and six gas blowers for the warehouse; the building dates from the early 1980s and presents clear potential for refurbishment to modern standards.
Location benefits include strong road links to the M42 (junctions 2 and 3 approximately five miles north) and proximity to Redditch and Birmingham. The immediate setting is industrial/commercial, offering good prominence on Oxleasow Road and close neighbouring occupiers. Note the surrounding area is commercially focused with limited residential amenities and is described as having higher area deprivation metrics than regional averages.
This property suits owner-occupiers or investors seeking a large, well-located facility with scope to extend or reconfigure. Buyers should factor in refurbishment and modernisation costs consistent with a circa-1980s industrial building and the partly open nature of the existing yard when assessing operational needs.
Light industrial facility for sale in Unit 1 Broad Ground Road, Lakeside Industrial Estate, Redditch, B98 8YS, B98 — £2,500,000 • 1 bed • 1 bath • 27057 ft²
Light industrial facility for sale in Unit 1 Broad Ground Road, Lakeside Industrial Estate, Redditch, B98 8YP, B98 — £2,500,000 • 1 bed • 1 bath • 27944 ft²
Light industrial facility for sale in Units 36-37 Crossgate Road, Park Farm Industrial Estate, Redditch, B98 7SN, B98 — £875,000 • 1 bed • 1 bath • 14397 ft²
Light industrial facility for sale in Plot 1 & 2, Unit 49D, Pipers Road, Park Farm Industrial Estate, Redditch, Worcestershire, B98 0HU, B98 — POA • 1 bed • 1 bath • 25541 ft²
Light industrial facility for sale in 80 Pikehelve Street, West Bromwich, B70 — £850,000 • 1 bed • 1 bath • 11780 ft²
Light industrial facility for sale in Unit 17 Maybrook Business Park, Maybrook Road, Minworth, Sutton Coldfield, West Midlands, B76 1AL, B76 — POA • 1 bed • 1 bath • 22029 ft²


























































































