Renovated, chain-free Victorian terrace close to Dover town and transport links.
Three bedrooms over three floors; recently redecorated and move-in ready
Chain-free freehold; quicker completion possible
Small, low-maintenance rear garden and front garden
Victorian solid-brick build with period features, likely no cavity insulation
Single bathroom only; may limit larger family use
Area has high crime rates and is classified as deprived — consider security
Excellent mobile signal and fast broadband, good for home working
Close to shops, buses and Dover Priory rail links to London
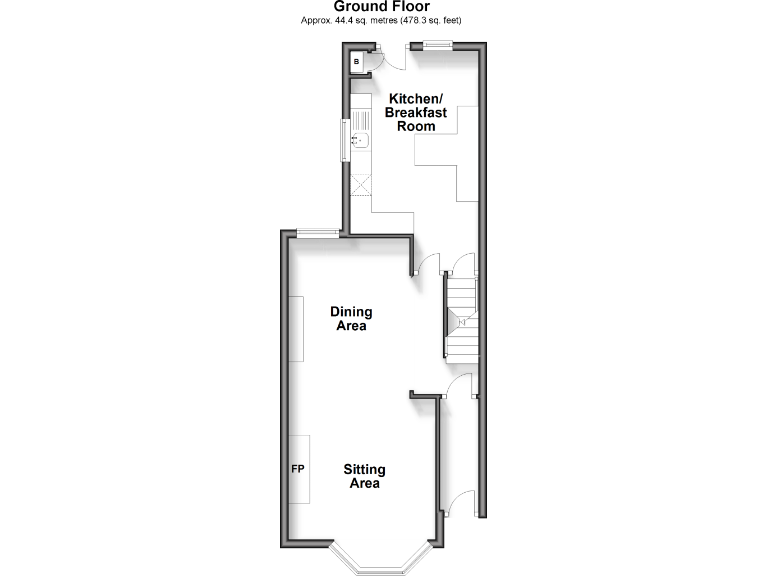
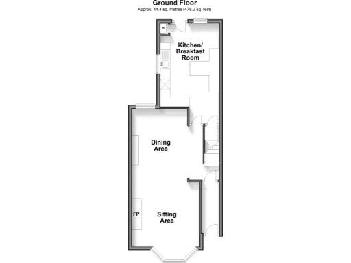
Light-filled Victorian mid-terrace offering three bedrooms across three floors, freshly decorated and ready to move into. Recent refurbishment and modern kitchen make daily living straightforward, while the small, low-maintenance rear garden suits busy households or first-time buyers seeking easy outdoor space. Chain-free sale and freehold tenure mean a quicker completion for buyers who want to move in soon.
Practical transport links and local amenities are immediate strengths: Dover town centre shops, buses and Dover Priory rail station are within easy reach. Fast broadband and excellent mobile signal support home working, and nearby schools include well-rated primary and secondary options.
Buyers should note material local factors: the area records higher crime levels and is classified as deprived, so consider security measures and local feel. The house is solid-brick Victorian construction with assumed minimal cavity insulation — further insulation work could reduce running costs. Single bathroom and small plot size may limit larger families.
Overall, this is a realistically priced, characterful period home for buyers wanting a renovated, chain-free property with good transport links and manageable outdoor space. It suits first-time buyers, young families or investors prepared for area-specific considerations.
3 bedroom terraced house for sale in Buckland Avenue, Dover, Kent, CT16 — £210,000 • 3 bed • 1 bath • 929 ft²
3 bedroom terraced house for sale in Clarendon Street, Dover, Kent, CT17 — £175,000 • 3 bed • 1 bath • 762 ft²
3 bedroom terraced house for sale in London Road, Dover, CT17 — £229,950 • 3 bed • 1 bath • 512 ft²
3 bedroom end of terrace house for sale in Primrose Road, Dover, CT17 — £190,000 • 3 bed • 1 bath • 783 ft²
3 bedroom terraced house for sale in Clarendon Place, Dover, Kent, CT17 — £190,000 • 3 bed • 1 bath • 743 ft²
3 bedroom terraced house for sale in Heathfield Avenue, Dover, Kent, CT16 — £210,000 • 3 bed • 1 bath • 969 ft²


























































