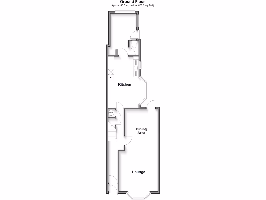
Chain-free three-bed period terrace with garage — ideal for buyers seeking a renovation project..
- Chain free Victorian mid-terrace with bay windows and high ceilings
- Three bedrooms, conservatory, lounge and separate dining area
- Garage to rear and small private rear garden
- Requires renovation: likely modernisation and possible insulation work
- Solid brick walls; insulation uncertain, expect upgrade costs
- Located close to good primary and secondary schools
- Low flood risk; council tax band is inexpensive
- Local area: high crime and very deprived indicators
A classic Victorian mid-terrace with traditional bay windows and high ceilings, offered chain free and ready for upgrading. The house provides three bedrooms, a conservatory and a garage at the rear — useful practical assets for families or buyers seeking a renovation project. Positioned on Buckland Avenue within walking distance of Dover town and well-placed for several highly rated primary and secondary schools, the location is convenient for daily life and school runs.
The property requires renovation: mains gas boiler with radiators is present, double glazing fitted (unknown date), and walls are solid brick with no known cavity insulation. Buyers should budget for refurbishment and possible insulation or wiring improvements. The dwelling is modest in size (approx. 929 sq ft) with a small plot and a low flood risk.
This home suits a first-time buyer looking to add value, a DIY-focused family, or an investor aiming to refurbish and re-let or sell. Note the local area has higher crime rates and very deprived area indicators; purchasers should consider these community factors alongside the property’s clear upside — period features, garage, garden, and proximity to transport links. All measurements and services should be independently verified.
3 bedroom terraced house for sale in Beaconsfield Avenue, Dover, Kent, CT16 — £250,000 • 3 bed • 1 bath • 1120 ft²
3 bedroom terraced house for sale in Alexandra Place, Dover, CT17 — £210,000 • 3 bed • 1 bath • 1809 ft²
3 bedroom end of terrace house for sale in Primrose Road, Dover, CT17 — £190,000 • 3 bed • 1 bath • 783 ft²
4 bedroom terraced house for sale in Buckland Avenue, Dover, Kent, CT16 — £245,000 • 4 bed • 1 bath • 962 ft²
4 bedroom terraced house for sale in Buckland Avenue, Dover, Kent, CT16 — £300,000 • 4 bed • 2 bath • 1309 ft²
3 bedroom terraced house for sale in Buckland Avenue , Dover, CT16 — £195,000 • 3 bed • 1 bath • 952 ft²


































































