Refurbished three-bed terrace with garden and fast rail links to London.
Chain free — available for quick exchange and move-in
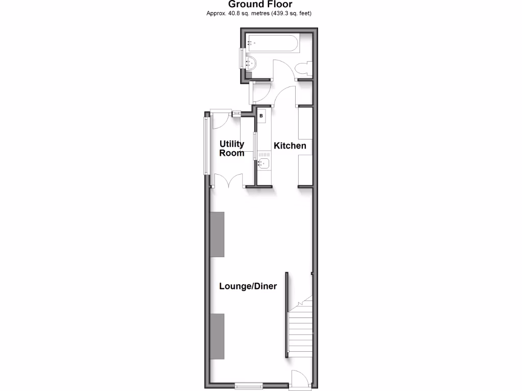
A recently refurbished three-bedroom Victorian mid-terrace on Clarendon Place, ready to move into with no onward chain. The house combines period character with a modern kitchen, double glazing and gas central heating — suitable for a first-time buyer or buy-to-let investor seeking immediate occupancy.
The accommodation is compact (approximately 743 sq ft) yet well laid out: a long lounge/diner, small modern kitchen, utility room, family bathroom and three bedrooms. Outside there's a practical rear garden for summer use. Proximity to Dover Priory station gives fast rail links to London, making the location convenient for commuters.
Buyers should note the wider area scores high for deprivation and recorded crime levels are very high; this will affect local perception and rental demand considerations. The property is of traditional solid brick construction (pre-1900) and appears to lack cavity wall insulation — buyers may wish to budget for additional insulation or energy-efficiency improvements.
Overall, this chain-free terrace presents a ready-to-live-in option with commuting advantages and rental potential, balanced by a compact footprint and important local-area challenges that sensible purchasers will want to assess in person.
3 bedroom terraced house for sale in Clarendon Street, Dover, Kent, CT17 — £175,000 • 3 bed • 1 bath • 762 ft²
3 bedroom terraced house for sale in Beaconsfield Avenue, Dover, Kent, CT16 — £250,000 • 3 bed • 1 bath • 1120 ft²
3 bedroom terraced house for sale in Clarendon Place, Dover, Kent, CT17 — £160,000 • 3 bed • 1 bath • 732 ft²
1 bedroom terraced house for sale in Clarendon Street, Dover, Kent, CT17 — £110,000 • 1 bed • 1 bath • 754 ft²
3 bedroom terraced house for sale in Clarendon Place, Dover, Kent, CT17 — £160,000 • 3 bed • 1 bath • 757 ft²
3 bedroom terraced house for sale in Heathfield Avenue, Dover, Kent, CT16 — £210,000 • 3 bed • 1 bath • 969 ft²


























































