Substantial five‑bed Edwardian on a secluded 0.65‑acre plot with pool and major renovation potential..
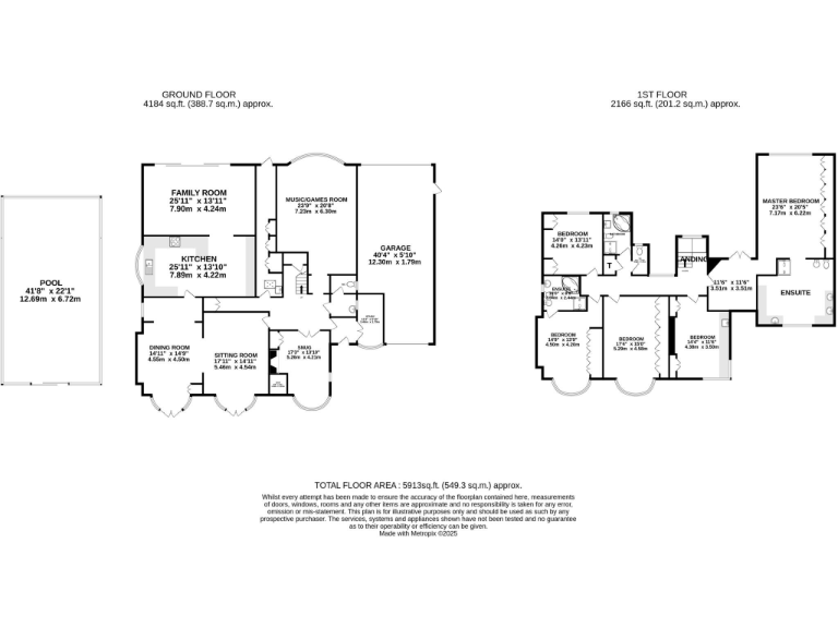
Edwardian detached house approx. 5,913 sq ft across two floors
Secluded 0.65-acre plot with mature trees and landscaped gardens
Five bedrooms; principal suite with large ensuite
Multiple reception rooms, large kitchen, music/games room
Outdoor swimming pool and long private driveway with privacy
Integral garage and separate study/utility spaces
Scope to renovate or redevelop (subject to planning permission)
Practical drawbacks: slow broadband, secondary glazing, solid walls likely uninsulated
An imposing Edwardian detached house on Loom Lane, Radlett, offering almost 5,913 sq ft of principal accommodation on a secluded 0.65-acre plot. Set back behind a long private driveway and mature landscaping, the property delivers grand reception rooms, a large kitchen and a separate music/games room — ideal for family living and entertaining.
The first floor houses five well-proportioned bedrooms including a principal suite with a substantial ensuite; two further bathrooms support family use. Ancillary space includes a generous garage and study. Outside, a landscaped rear garden with an outdoor swimming pool and mature trees provides privacy and significant outdoor amenity.
The house presents clear scope to renovate or redevelop (subject to planning permission), offering potential to modernise services, improve energy efficiency and reconfigure living space to contemporary standards. Notable practical points: the property has secondary glazing, solid brick walls likely without cavity insulation, mains gas central heating and slow broadband speeds in the area.
This is best for a family or buyer seeking a large, characterful home on a premier Radlett road, or an investor/developer looking for a substantial site with redevelopment potential. Buyers should allow for modernisation costs and confirm tenure and any planning constraints before committing.
5 bedroom detached house for sale in Loom Lane, Radlett, Hertfordshire, WD7 — £2,500,000 • 5 bed • 3 bath • 3753 ft²
5 bedroom detached house for sale in Loom Lane, Radlett, Hertfordshire, WD7 — £2,250,000 • 5 bed • 5 bath • 5500 ft²
5 bedroom bungalow for sale in Loom Lane, Radlett, Hertfordshire, WD7 — £3,999,000 • 5 bed • 3 bath • 3400 ft²
Plot for sale in Loom Lane, Radlett, WD7 — £2,250,000 • 5 bed • 5 bath • 5563 ft²
6 bedroom detached house for sale in Newlands Avenue, Radlett, Hertfordshire, WD7 — £4,000,000 • 6 bed • 2 bath • 4000 ft²
5 bedroom semi-detached house for sale in Loom Place, Radlett, Hertfordshire, WD7 — £2,325,000 • 5 bed • 4 bath • 3200 ft²






















































































































