Modern warehouse unit with three-phase power and EV charging.
Brand‑new freehold industrial unit, 9,328 sq ft
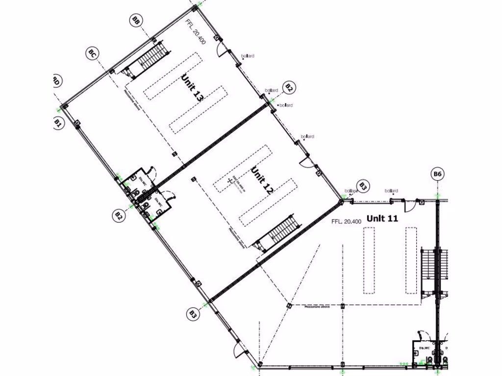
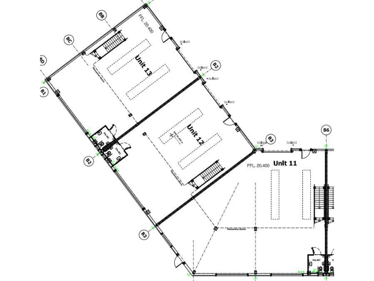
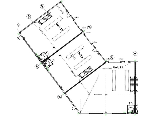
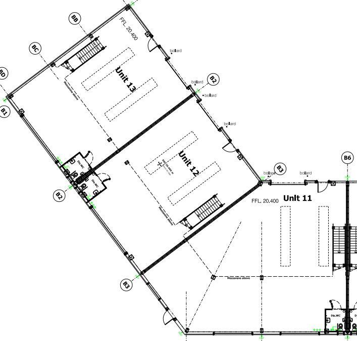
A rare freehold opportunity at Cosgrove Industrial Estate: a brand‑new, 9,328 sq ft light industrial unit finished to a modern specification. The building benefits from three‑phase power, roller shutter access, concrete mezzanine, allocated parking and EV chargers — ready for an occupier seeking spacious warehousing, workshop or trade counter space in a low‑density rural business park.
Positioned on Beckingham Business Park in Tolleshunt Major, the unit enjoys far‑reaching farmland and estuary‑fringe views and sits close to local employers and the A12 (via Witham), offering straightforward access to East Coast ports and London‑area connections. On‑site amenities include external loading areas, an accessible WC and a café for staff convenience.
Buyers should note a few practical points: VAT will be payable on the purchase price; business rates and the EPC will be assessed on completion; services (water, drainage, electricity) have not been tested and buyers must verify capacity with utility providers. Some external works on the development remain outstanding, and the images supplied may not show this specific unit.
This unit is best suited to owner‑occupiers or investors targeting modern industrial accommodation for local SMEs. The freehold tenure, new‑build specification and granted planning for Class E(g)(ii), E(g)(iii) and B2 uses create flexibility for a range of light industrial and general business activities.
Light industrial facility for sale in Cosgrove Industrial Estate, Beckingham Business Park, Tolleshunt Major, Maldon, Essex, CM9 — £389,470 • 1 bed • 1 bath • 19385 ft²
Light industrial facility for sale in Cosgrove Industrial Estate, Beckingham Business Park, Beckingham Street, Tolleshunt Major, Maldon, Essex, CM9 — £231,210 • 1 bed • 1 bath • 19385 ft²
Light industrial facility for sale in Unit 23 , West Station Industrial Estate, Spital Road, Maldon, Essex, CM9 — £415,000 • 1 bed • 1 bath • 3126 ft²
Light industrial facility for sale in Unit 11A-11B, West Station Yard, Spital Road, Maldon, Essex, CM9 — £550,000 • 1 bed • 1 bath • 4525 ft²
Warehouse for sale in Unit 6 West Station Yard, Spital Road, Maldon, Essex, CM9 — £450,000 • 1 bed • 1 bath • 2930 ft²
Warehouse for sale in 7B & 7C Perry Road, Freebournes Industrial Estate, Witham, Essex, CM8 — £2,600,000 • 1 bed • 1 bath • 14850 ft²






































