Ready-made single-floor living with private garden and two parking spaces.
- Gated cul-de-sac of four detached bungalows
- High specification: underfloor heating and air‑source heat pump
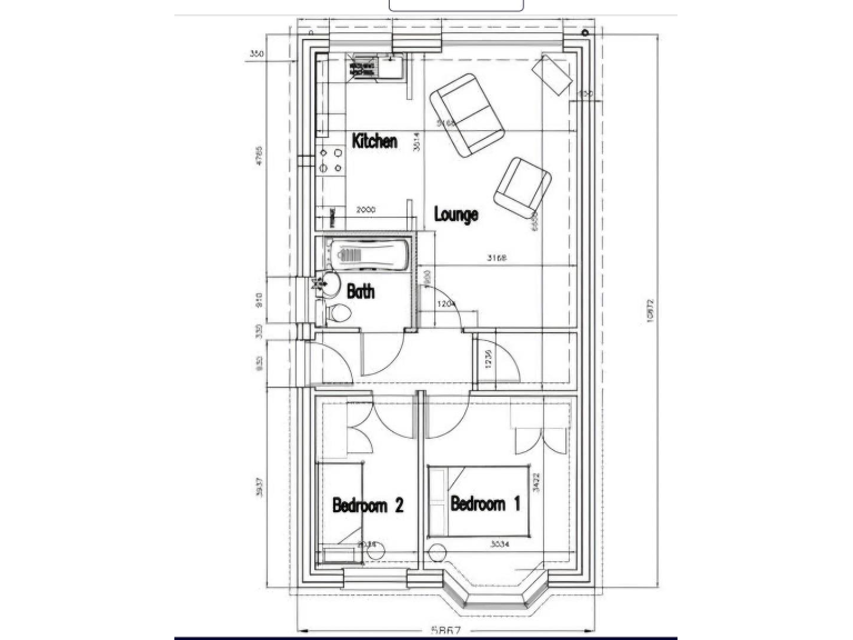
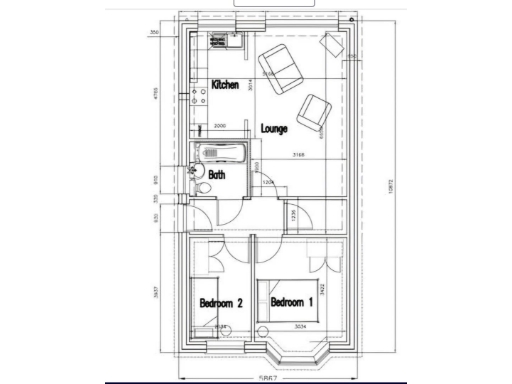
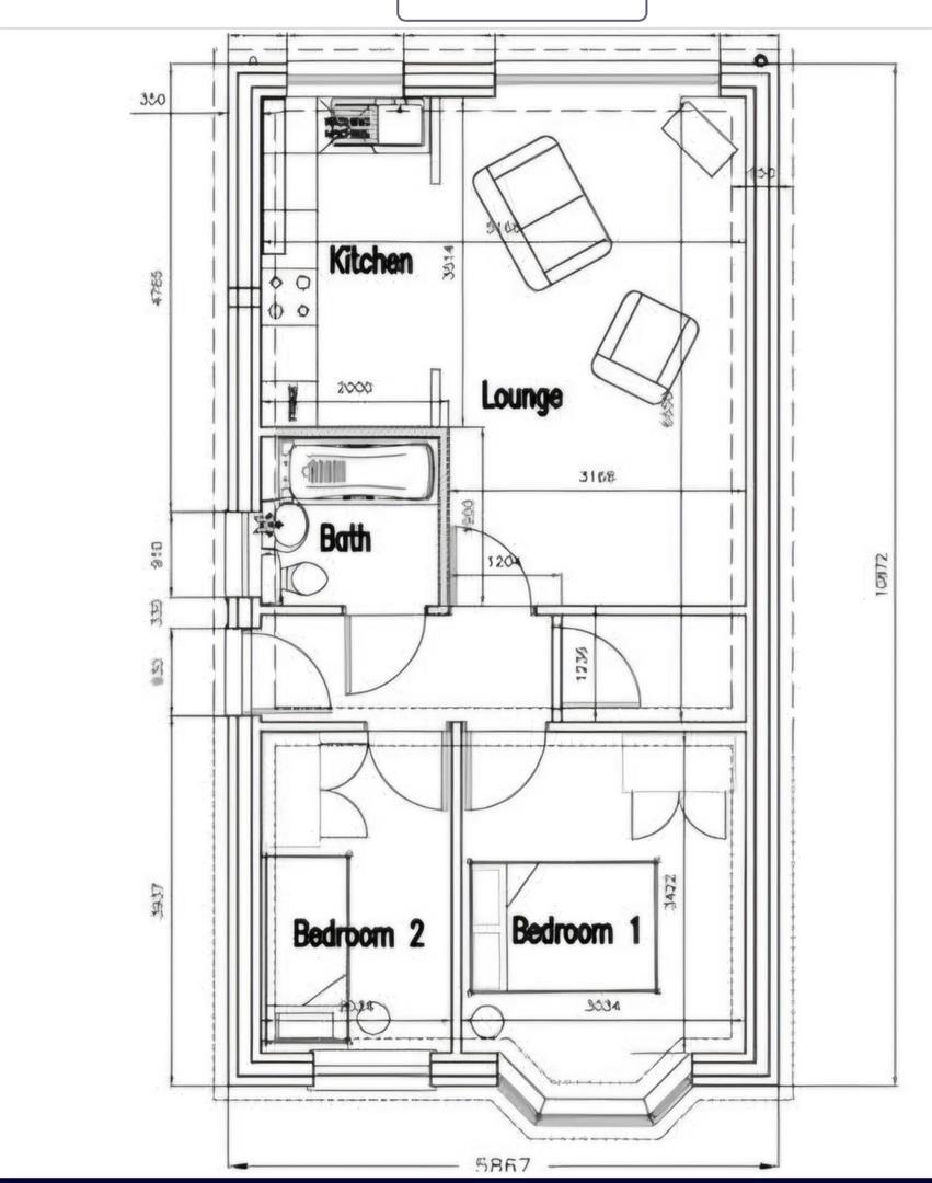
- Open-plan lounge/kitchen with French doors to rear garden
- Enclosed private garden; small-to-average plot size
- Allocated parking for two vehicles to the rear
- Compact internal footprint; better suited to downsizers/couples
- Freehold new build due for completion around Christmas 2025
- Services and appliances untested; purchaser to verify workings
A compact, single-storey home finished to a high specification, ideal for downsizers or couples seeking low-maintenance living. Set within a gated cul-de-sac of four detached bungalows, this new-build offers underfloor heating and an air‑source heat pump for energy-efficient comfort. The open-plan living space opens via French doors onto an enclosed rear garden with patio and lawn.
Practical conveniences include allocated off‑street parking for two cars, part-boarded loft storage, and integrated kitchen appliances with quartz worktops. The property is freehold and scheduled for completion around Christmas 2025, with part-exchange considered for a smoother move.
Buyers should note the overall footprint is compact — rooms and garden are small-to-average — so the home suits those seeking simpler, single-floor accommodation rather than larger family space. Services and appliances have not been independently tested, so purchasers should carry out their own checks on heating and electrical systems prior to completion.
Positioned in a quiet, low-crime suburb with good mobile and broadband connectivity, the bungalow offers easy access to local amenities and well-rated primary schools. Its modern specification and gated setting deliver a secure, turn-key option for downsizers prioritising accessibility and low upkeep.
2 bedroom detached bungalow for sale in Main Road, Brereton, Rugeley, WS15 — £290,000 • 2 bed • 1 bath • 1023 ft²
2 bedroom detached bungalow for sale in Main Road, Brereton, Rugeley, WS15 — £300,000 • 2 bed • 1 bath • 1023 ft²
2 bedroom detached bungalow for sale in Main Road, Brereton, Rugeley, WS15 — £285,000 • 2 bed • 1 bath • 342 ft²
2 bedroom detached bungalow for sale in Ashtree Court, Cemetery Road, Cannock, WS11 — £300,000 • 2 bed • 1 bath • 520 ft²
2 bedroom semi-detached bungalow for sale in Cornhill Gardens, Cannock, WS11 4NS, WS11 — £255,000 • 2 bed • 1 bath • 539 ft²
2 bedroom semi-detached bungalow for sale in Plot 90, The Thornbury, Morecroft Way, Handsacre, WS15 — £302,995 • 2 bed • 1 bath • 635 ft²


























































