Low-maintenance home with parking, garden and energy-efficient features.
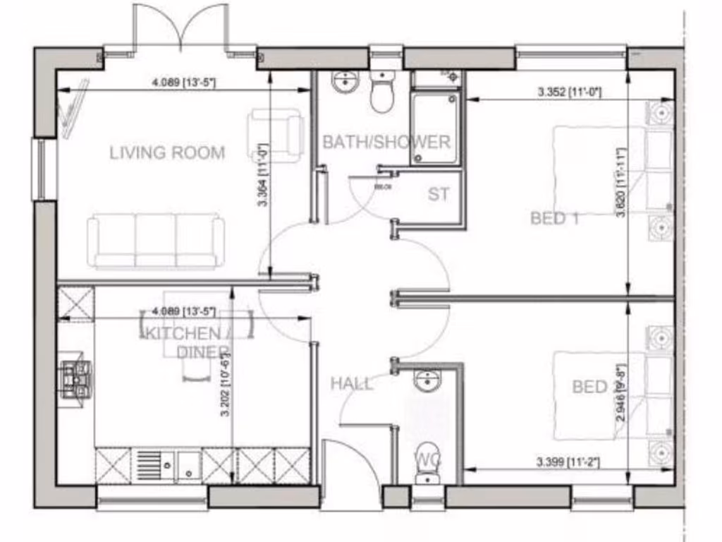
New build two-bedroom semi-detached bungalow, built 2025
Two block‑paved off‑street parking spaces and EV charger point
Porcelain patio, turf rear garden; modest front landscaping
Shaker-style fitted kitchen with integrated appliances included
Modern shower room with Porcelanosa tiling; karndean flooring throughout
Small overall footprint (approx. 539 sq ft); limited internal space
Located in a deprived area with average crime; affects resale potential
Stamp Duty paid by developer; freehold tenure
This newly built two-bedroom semi-detached bungalow (completion Summer 2025) offers low‑maintenance, single‑storey living ideal for downsizers or buyers seeking a compact, modern home. The layout includes a separate lounge and kitchen‑diner, shaker-style kitchen with integrated appliances, a modern shower room with Porcelanosa tiling, and karndean tile-effect flooring throughout for easy upkeep.
Practical benefits include two block‑paved off‑street parking spaces, an electric vehicle charging point, a porcelain patio and turf rear garden, and modest front landscaping. The developer will pay the purchaser’s Stamp Duty, and the property is sold freehold with no identified flood risk.
Buyers should note the overall property footprint is small (approximately 539 sq ft) and the plot and front amenity spaces are modest. The development sits in a deprived area classification with average local crime and an industrious, working‑class community profile; this may affect long‑term resale expectations. Broadband speeds are reported as fast and schools nearby are rated Good.
Overall this home suits someone seeking a compact, energy‑efficient, easy‑to-run property close to Cannock Chase and local amenities. It presents immediate move‑in convenience with limited maintenance and some scope for personalising interiors over time.
2 bedroom semi-detached bungalow for sale in 52A Lichfield Road, Shelfield. WS4 1PY, WS4 — £299,950 • 2 bed • 1 bath
2 bedroom semi-detached bungalow for sale in Cornhill Gardens, Cannock, WS11 4NS, WS11 — £257,000 • 2 bed • 1 bath • 518 ft²
2 bedroom semi-detached bungalow for sale in 52 Lichfield Road, Shelfield. WS4 1PY, WS4 — £299,950 • 2 bed • 1 bath
2 bedroom semi-detached bungalow for sale in Plot 90, Morecroft Way, Handsacre, WS15 — £302,995 • 2 bed • 1 bath • 635 ft²
2 bedroom bungalow for sale in 98a Main Road Brereton, WS15 1DY, WS15 — £320,000 • 2 bed • 1 bath • 358 ft²
2 bedroom bungalow for sale in 98b Main Road Brereton, WS15 1DY, WS15 — £335,000 • 2 bed • 1 bath • 416 ft²


























































