Modern gated home with private garden and energy-efficient heating, completion Christmas 2025.
Exclusive gated development of four detached bungalows
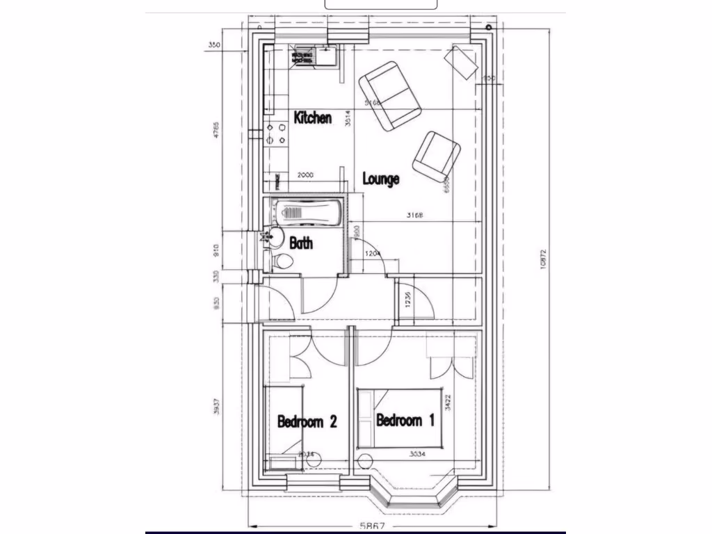
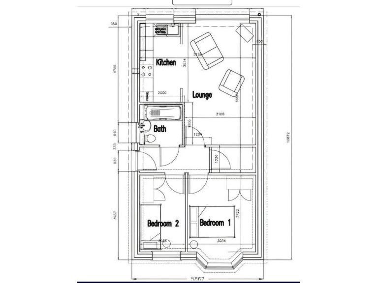
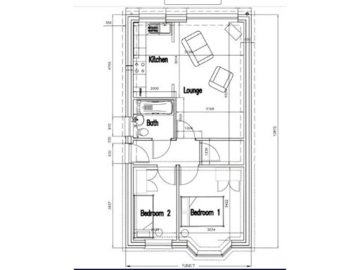
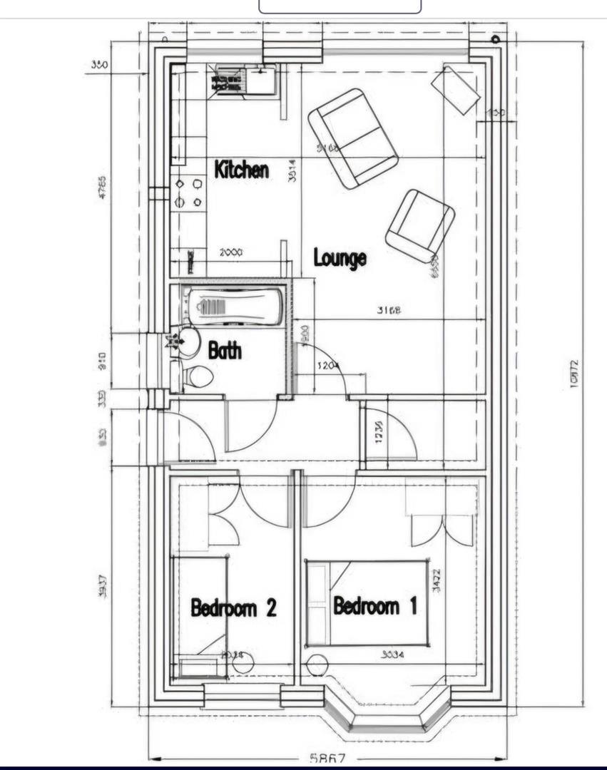
Completion is scheduled for Christmas 2025 on this exclusive gated courtyard of four detached bungalows. Each will be finished to a high specification with air source heat pump and underfloor heating, double glazing and quartz worktops. The homes are freehold and designed for low-carbon running and comfortable year-round living.
The layout is compact and efficient: entrance hall, open-plan lounge and fitted kitchen, two bedrooms and a single shower room. The footprint is modest (about 1,023 sq ft) and the rear garden and plot are small to average — a practical outside space rather than a large lawn. Parking is allocated for two vehicles to the front/rear of each plot.
This property suits buyers downsizing from larger homes, or investors seeking a modern, low-maintenance unit in a low-crime suburb with good broadband and mobile signal. Note the accommodation is compact with modest bedroom sizes and one shower room only; prospective purchasers should check room proportions and confirm appliance and system commissioning prior to exchange.
2 bedroom bungalow for sale in 98c Main Road, Brereton, WS15 1DY, WS15 — £310,000 • 2 bed • 1 bath • 400 ft²
2 bedroom bungalow for sale in 98 Main Road , WS15 1DY, WS15 — £299,950 • 2 bed • 1 bath • 408 ft²
2 bedroom detached bungalow for sale in Ashtree Court, Cemetery Road, Cannock, WS11 — £300,000 • 2 bed • 1 bath • 520 ft²
2 bedroom bungalow for sale in 98a Main Road Brereton, WS15 1DY, WS15 — £299,950 • 2 bed • 1 bath • 358 ft²
2 bedroom bungalow for sale in 98b Main Road Brereton, WS15 1DY, WS15 — £305,000 • 2 bed • 1 bath • 416 ft²
2 bedroom semi-detached bungalow for sale in Cornhill Gardens, Cannock, WS11 4NS, WS11 — £255,000 • 2 bed • 1 bath • 539 ft²






















































