CM6 2BX - Land for sale in Church End, Broxted, CM6

View on Property Piper

Land for sale in Church End, Broxted, CM6

Summary - PORTREATH CHURCH END BROXTED DUNMOW CM6 2BX

1 bed 1 bath Land

**Standout Features:**

- **Sizeable Land**: 0.37 acres (STLS) with full planning consent.
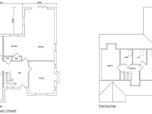
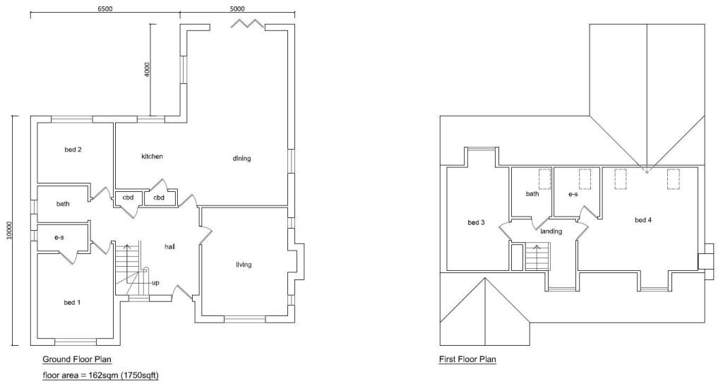
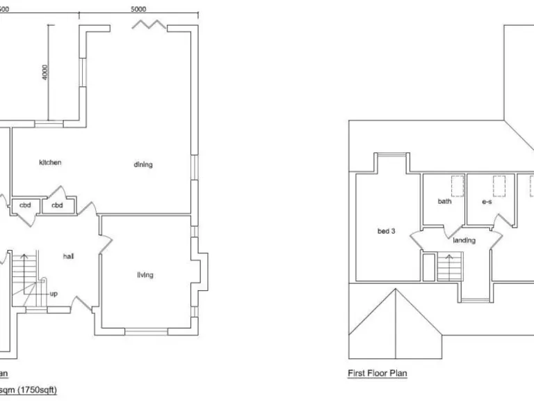
- **Planning Approved**: For a single, four-bedroom property (1750 sq. ft) with carport and amenity space.
- **Rural Location**: Quiet, picturesque setting near the village of Broxted.
- **Accessibility**: Close proximity to Stansted Airport, A120, and M11 for convenient transport links.
- **Surroundings**: Open grassland, vegetation, and established hedges providing peace and privacy.
- **Current Condition**: Overgrown, offering a blank canvas for development.

This unique development opportunity encompasses a generous 0.37-acre plot, complete with full planning consent for a four-bedroom home, carport, and amenity space. Perfectly positioned in the charming semi-rural location of Broxted, this site offers both tranquillity and accessibility, just 3 miles from Stansted Airport and connected to major transport routes, ensuring convenience for commuting or leisure.

While the land is currently overgrown with vegetation, it provides an excellent foundation for creative design, allowing new owners to cultivate their dream residence amidst stunning countryside views. The immediate area features low crime rates, and excellent educational institutions, making it ideal for families seeking a harmonious lifestyle. With a competitive price of £300,000, this opportunity may not last long—secure your future in this idyllic setting today!

Property Details

Brochure Descriptions

Image Descriptions

Textual Property Features

Detected Visual Features

Nearby Schools

Nearest Bars And Restaurants

,,,,}

Nearest General Shops

,,}

Nearest Grocery shops

,,}

Nearest Supermarkets

,,}

Nearest Religious buildings

,,}

Nearest Medical buildings

,,,}

Nearest Airports

}

Nearest Leisure Facilities

,,,,}

Nearest Tourist attractions

,,}

Nearest Train stations

,,,,}

Nearest Bus stations and stops

,,,,}

Nearest Hotels

,,}

Tags

Similar Properties

Meta

High Res Images

Compatible Images

Low res Images

Thumbnails

Raw Images