**Standout Features:**
- Large Grade II listed detached property
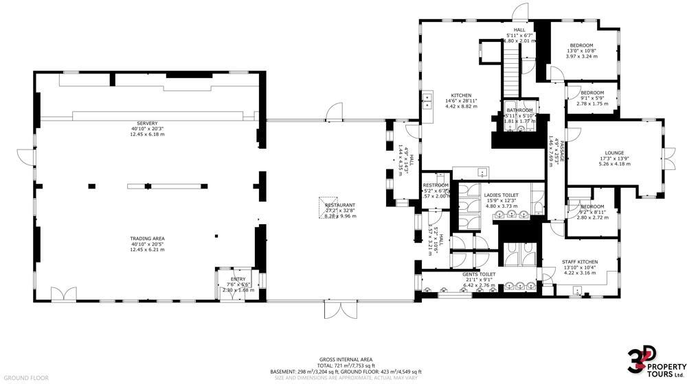
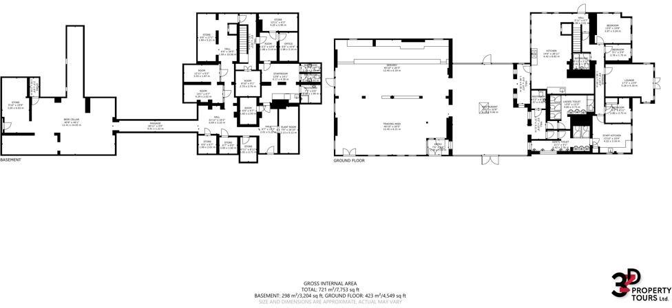
- Ground floor space approximately 6,400 sq ft
- Situated on a 0.38-acre plot in a busy leisure park
- Strong foot traffic from nearby amenities (cinemas, restaurants, sports clubs)
- Flexible rental options with subdivision potential
- Two-bedroom private accommodation included
- Ample parking for around 8 vehicles
**Potential Concerns:**
- Renovation or extension may be challenging due to listed status
- Located in a high-crime area
- Slow broadband speeds
Nestled within the vibrant Freemans Leisure Park, The Counting House is a grand Grade II listed pub offering an expansive 6,400 sq ft of space, providing an abundance of opportunities for both traditional pub operations and alternative uses, pending necessary consents. The impressive brick structure, distinguished by a charming clock tower, invites high footfall generated by nearby attractions, including popular eateries and entertainment venues. With a substantial plot size of approximately 0.38 acres, this property not only offers a spacious trading area for up to 110 covers but also includes comfortable private accommodations with two bedrooms.
While the property is ideally situated just a mile from Leicester city center, enhancing its appeal to families and commercial investors, its listed status may present limitations on renovations or extensions. On the upside, rental offers will be considered on parts of the site, creating potential for income generation. Including off-street parking and a sizable outdoor seating area, this venue stands ready for new ownership—seize the opportunity today in a location teeming with potential!
Leisure facility for sale in 1-3 Braunstone Gate, Leicester, LE3 5LH, LE3 — £375,000 • 1 bed • 1 bath • 3064 ft²
Bar / nightclub for sale in LE18, Wigston, LE18 — £700,000 • 1 bed • 1 bath • 3814 ft²
Commercial property for sale in Friar Lane, City Centre, LE1 — £450,000 • 1 bed • 1 bath • 4391 ft²
Light industrial facility for sale in 15 Bath Lane And 150a St. Nicholas Circle, Leicester, Leicestershire, LE3 — £600,000 • 1 bed • 1 bath • 6889 ft²
Leisure facility for sale in The Old Crown, 49 North Street, Rothley, Leicestershire, LE7 7NN, LE7 — £650,000 • 1 bed • 1 bath • 2518 ft²
Restaurant for sale in Terracotta Restaurant, 25 Highcross Street, Leicester, LE1 4PF, LE1 — POA • 1 bed • 1 bath • 9124 ft²


















































































