**Standout Features:**
- Prime corner location on Friar Lane in Leicester's city centre
- Previously operated as a successful restaurant, ideal for bars and eateries
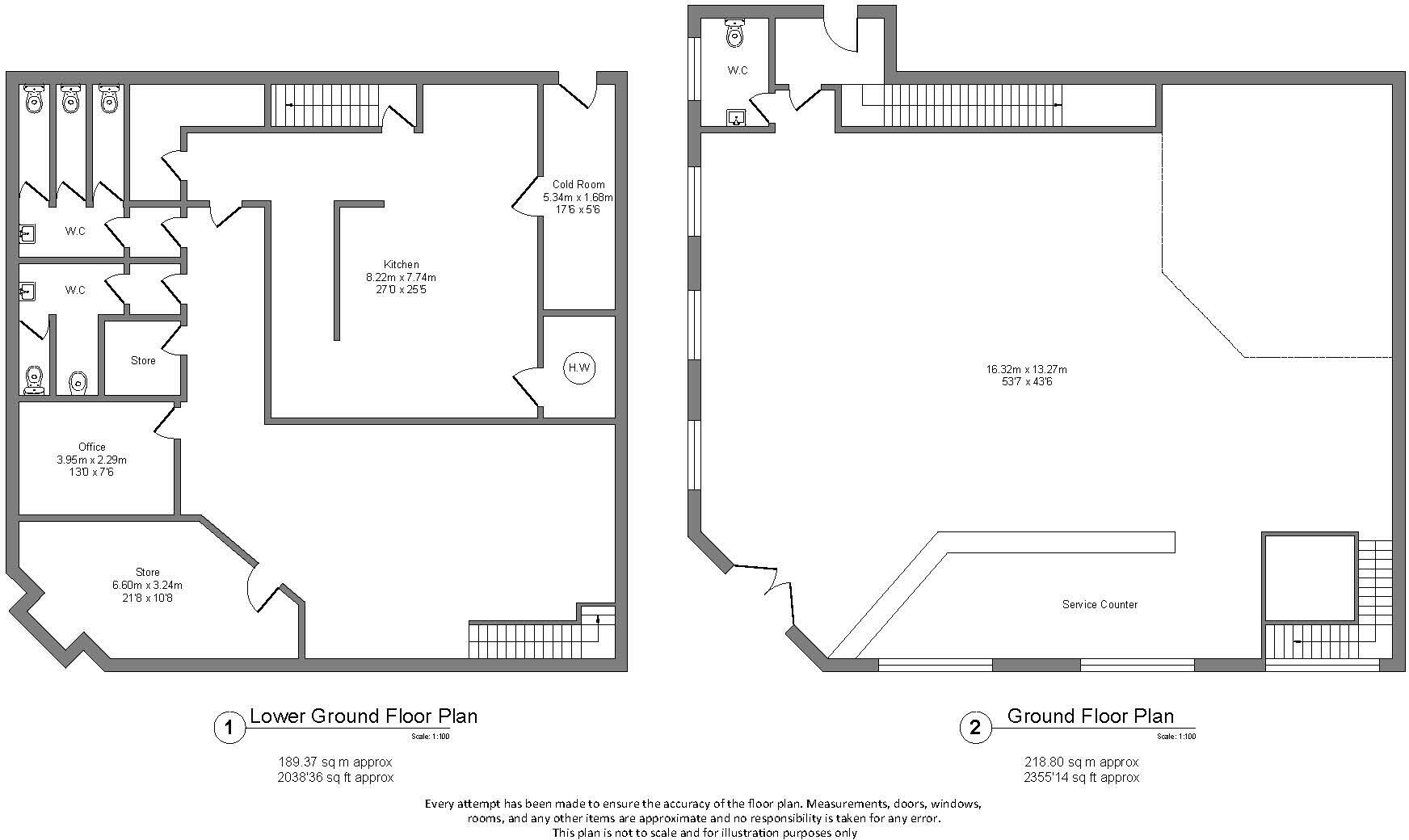
- Expansive open-plan layout with additional office space, W/Cs, storage, and kitchen
- Long-term leasehold with 992 years remaining
- High visibility and foot traffic, catering to a multicultural student neighborhood
**Potential Concerns:**
- Area classified with very high crime rates
- Current maintenance and service charges information available on request
Seize this exceptional opportunity to own a prominent commercial property in the vibrant heart of Leicester. This expansive 4,391 sq ft leasehold, formerly a successful restaurant, boasts a versatile open-plan layout perfect for a new restaurant, bar, or retail establishment. Enhanced by high visibility and heavy foot traffic, this corner-facing building offers endless possibilities for business ambition.
The smartly designed interior includes functional offices, W/C facilities, and an efficient kitchen area, making it ideal for operational success. With a remarkable 992 years remaining on the lease, this property promises long-term stability. Its prime position in a bustling, multicultural area enriches the potential for steady patronage.
While the area's very high crime rate is worth noting, the potential for vibrant business growth is clear. Act fast to explore this rare opportunity in Leicester's commercial landscape—properties of this caliber don’t stay on the market long!
Commercial property for sale in Friar Lane, Leicester, Leicestershire, LE1 — £300,000 • 1 bed • 1 bath
High street retail property for sale in Loseby Lane, Leicester, LE1 — £195,000 • 1 bed • 1 bath • 709 ft²
High street retail property for sale in 3 Halford Street, Leicester, LE1 1JA, LE1 — £350,000 • 1 bed • 1 bath • 2703 ft²
5 bedroom flat for sale in Granby Street, Leicester, LE1 — £160,000 • 5 bed • 2 bath • 1034 ft²
Leisure facility for sale in 1-3 Braunstone Gate, Leicester, LE3 5LH, LE3 — £375,000 • 1 bed • 1 bath • 3064 ft²
Commercial property for sale in Newport Place, Northampton Street, Leicester, LE1 — £200,000 • 1 bed • 1 bath • 691 ft²


























