Minutes from beach, marina and town centre — ideal lock-up-and-leave.
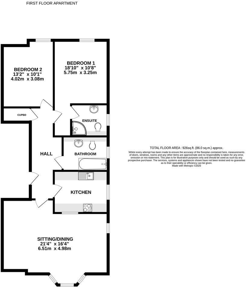
First-floor 2 bed, 2 bath apartment
A bright, first‑floor two‑bedroom apartment set in a small, well‑kept block just minutes from Falmouth harbour and Gyllyngvase Beach. The property offers two double bedrooms—principal with en‑suite—a generous dual‑aspect sitting/dining room with a bow window, and a well‑appointed kitchen with integrated appliances. Lovely communal gardens include a south‑facing terrace for sunny afternoons.
Practical strengths include private allocated parking plus visitor bays, a long 980‑year lease (from 2007), and low nominal ground rent. The building benefits from mains gas central heating and hardwood sash‑style double glazing; the EPC is currently C (75). This apartment works well as a main home, holiday lock‑up‑and‑leave, or a buy‑to‑let in a high‑demand harbour town.
Known considerations are straightforward: an annual service charge of about £1,000 covers communal upkeep and insurance, and decorative modernisation could boost rent or resale value. Crime statistics in the immediate area are above average, which some buyers will want to weigh against the excellent town and transport links, including the nearby railway station to Truro and London.
Vacant and chain‑free, the flat is ready for immediate occupation or letting with no specific restrictions (pets allowed by permission). For buyers seeking coastal convenience, secure parking and easy town access, this is a low‑maintenance, long‑lease option in one of Cornwall’s most popular harbourside locations.
2 bedroom flat for sale in Port Pendennis, Falmouth, Cornwall, TR11 — £499,950 • 2 bed • 2 bath • 886 ft²
2 bedroom flat for sale in Maritime House, Discovery Quay, Falmouth, Cornwall, TR11 — £525,000 • 2 bed • 2 bath • 1178 ft²
2 bedroom flat for sale in Admirals Quay, The Packet Quays, TR11 — £270,000 • 2 bed • 2 bath • 829 ft²
2 bedroom apartment for sale in Smugglers Row, Falmouth, TR11 — £400,000 • 2 bed • 2 bath • 904 ft²
1 bedroom flat for sale in Pendennis Road, Falmouth, Cornwall, TR11 — £178,500 • 1 bed • 1 bath • 352 ft²
2 bedroom flat for sale in Gyllyngdune Manor, Emslie Road, Falmouth, Cornwall, TR11 — £750,000 • 2 bed • 3 bath • 1635 ft²


























































