Practical two-bed flat with garden, fast broadband and long lease.
Two bedrooms and modern bathroom in a straightforward layout
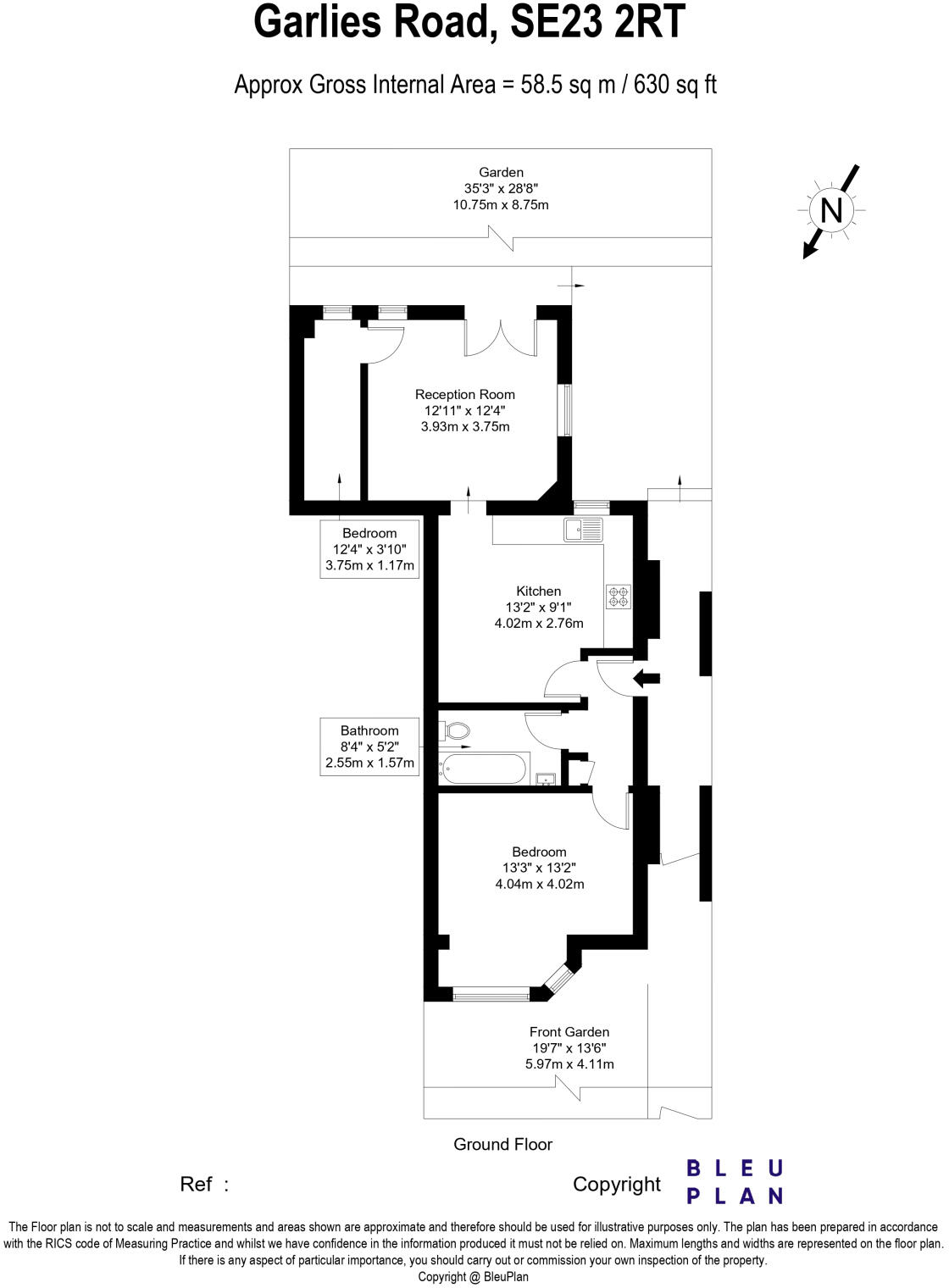
A well-connected two-bedroom flat in SE23 offering practical living and outdoor space. At around 630 sq ft, the layout is straightforward: reception room, fitted kitchen, two bedrooms and a modern bathroom. The property includes a private garden and fast fibre broadband (FTTP), useful for working from home or streaming.
Built 1967–1975 using brick and block, the home benefits from mains gas central heating, double glazing (install date unknown) and a very long lease (943 years). There is no recent flooding risk and council tax is described as affordable. Local transport links, shops, cafes and several good primary and secondary schools are within easy reach.
Notable positives are the private garden, fast broadband and long lease — attractive to first-time buyers or investors seeking a low-hassle purchase. Downsides: the walls are cavity construction with no added insulation (assumed), and some updating may be desired depending on buyer taste. The property is leasehold, and access easements apply.
Overall this flat suits buyers prioritising connectivity, outdoor space and a pragmatic, easy-to-manage home in a lively London neighbourhood. Viewings will suit those wanting a move-in-able flat with potential to personalise rather than a full renovation project.
2 bedroom apartment for sale in Stanstead Road, London, SE23 — £450,000 • 2 bed • 1 bath • 663 ft²
2 bedroom flat for sale in London Road, Forest Hill, SE23 — £350,000 • 2 bed • 1 bath • 651 ft²
2 bedroom flat for sale in Devonshire Road, Forest Hill, London, SE23 — £550,000 • 2 bed • 2 bath • 769 ft²
2 bedroom flat for sale in Beadnell Road, Honor Oak, SE23 — £450,000 • 2 bed • 1 bath • 568 ft²
2 bedroom flat for sale in Wastdale Road, London, SE23 1, SE23 — £375,000 • 2 bed • 1 bath • 484 ft²
2 bedroom flat for sale in Hurstbourne Road, London, SE23 — £550,000 • 2 bed • 1 bath • 810 ft²






























































