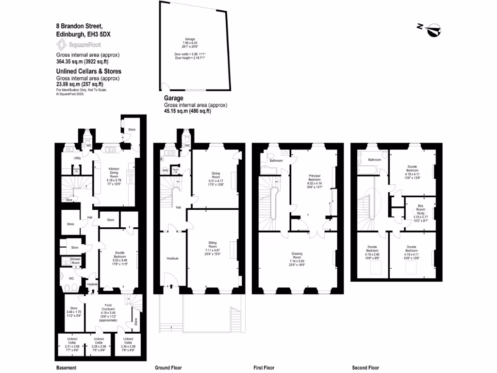
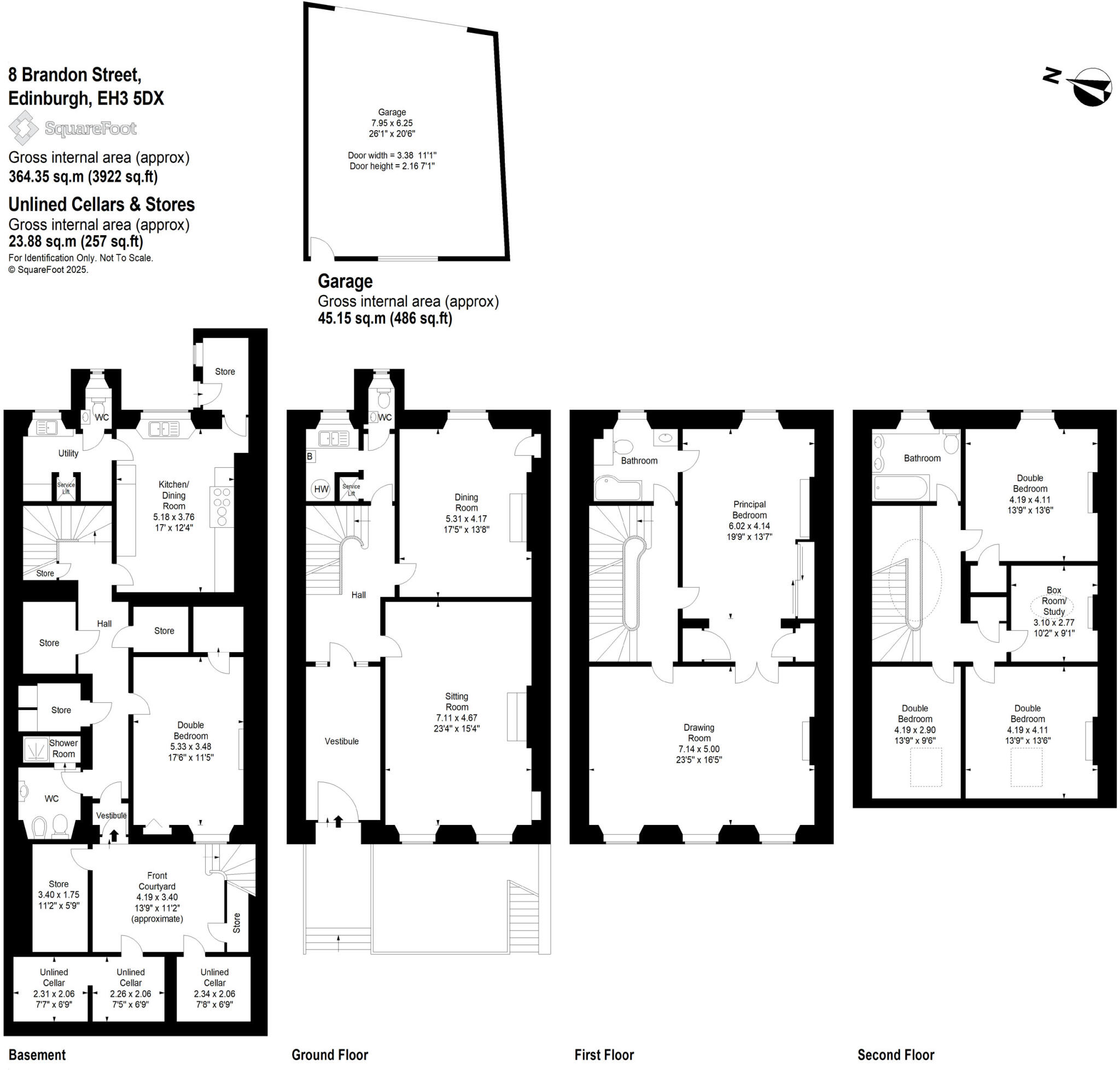
Rare four‑storey Georgian home with garage, garden and basement potential.
Six-bedroom Grade B‑listed Georgian townhouse across four levels
Double garage accessed from Canon Lane; potential development opportunity
Enclosed private rear garden and direct garden access from basement
Magnificent drawing room, ornate cornicing, marble fireplaces, panelling
Basement with separate access — scope for self-contained flat or rental
Requires substantial renovation; modernisation needed throughout
Listed status and conservation area restrict alterations; consent required
Very expensive council tax; EPC rated C
8 Brandon Street is an imposing four-storey, Grade B‑listed Georgian townhouse in Edinburgh’s New Town, offering generous rooms, ornate period detailing and a private enclosed garden. The house has exceptional footprint and original features — cornicing, marble fireplaces, panelling and high ceilings — that will appeal to buyers who value classic character. A magnificent drawing room links to the principal suite, creating flexible entertaining or family configurations.
The lower levels include a substantial dining kitchen with AGA, basement bedroom and bathroom and four front cellars. The basement’s direct garden access and separate entrance present obvious potential for a self-contained flat for guests or rental income, subject to consents. A rare practical asset is the double garage accessed from Canon Lane, which also provides development options if planning and listed‑building permissions allow.
This house requires modernisation throughout and is offered as a renovation project. Its Grade B listed status and conservation-area location mean alterations will be controlled and may be time-consuming and costly. Council tax is very expensive; the property currently has an EPC rating of C. Despite investment needed, the site, scale and flexible layout deliver a compelling canvas for a distinguished family home or a high-end rental conversion in a prime central setting.
2 bedroom apartment for sale in Brandon Street, Edinburgh, Midlothian, EH3 — £325,000 • 2 bed • 1 bath • 857 ft²
8 bedroom terraced house for sale in 60 Northumberland Street, New Town, Edinburgh, EH3 — £2,600,000 • 8 bed • 5 bath • 4314 ft²
5 bedroom town house for sale in Great King Street, Edinburgh, EH3 — £1,800,000 • 5 bed • 4 bath • 3650 ft²
8 bedroom terraced house for sale in Lynedoch Place, West End, Edinburgh, EH3 — £1,400,000 • 8 bed • 5 bath • 3992 ft²
5 bedroom terraced house for sale in Melville Street, New Town, Edinburgh, EH3 — £2,350,000 • 5 bed • 5 bath • 5855 ft²
5 bedroom terraced house for sale in Heriot Row, New Town, Edinburgh, EH3 — £1,750,000 • 5 bed • 5 bath • 4410 ft²






































































































































