Large period property with gardens and strong refurbishment potential near Stockbridge and city centre.
A-listed Georgian townhouse with original period features
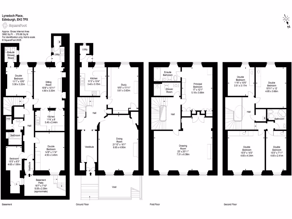
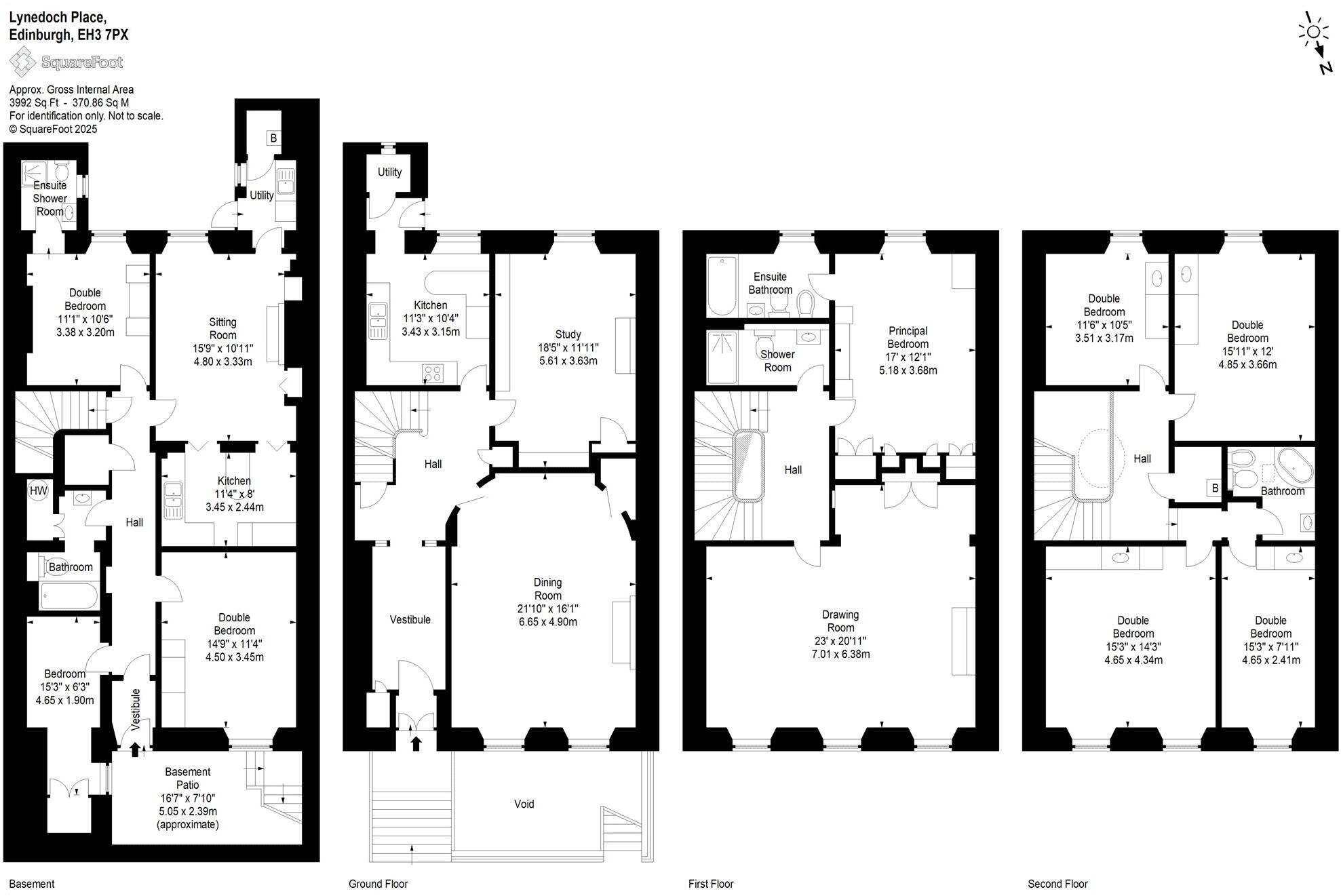
A rare A-listed, four-storey Georgian townhouse offering nearly 4,000 sq ft of flexible living space across multiple levels. The house retains high ceilings, ornate cornicing, sash-and-case windows, marble fireplaces and a domed cupola, and includes eight bedrooms, four reception rooms and two ensuite bathrooms. Front and south-facing rear gardens provide private outdoor space in the heart of the West End.
The property is in need of full modernisation and presents clear scope for a sympathetic refurbishment or conversion (single-family grand home or multi-let/investment). The listed status is material — any alterations will require listed-building consent and may restrict internal and external works. Buyers should budget for comprehensive renovation and listed-works costs.
Practical details: freehold tenure, EPC rating E and very expensive council tax (Band H). Excellent mobile signal and fast broadband support modern working needs. Located on Lynedoch Place, within easy walking distance of the West End, Stockbridge and central amenities, this townhouse will suit a purchaser seeking period character with significant upgrade potential, or an investor targeting high-yield reconfiguration subject to consents.
5 bedroom town house for sale in Drumsheugh Gardens, EH3 — £2,450,000 • 5 bed • 6 bath • 6555 ft²
5 bedroom town house for sale in Great King Street, Edinburgh, EH3 — £1,800,000 • 5 bed • 4 bath • 3650 ft²
7 bedroom terraced house for sale in Manor Place, Edinburgh, EH3 — £2,500,000 • 7 bed • 6 bath • 4608 ft²
6 bedroom house for sale in East Claremont Street, New Town, Edinburgh, EH7 — £1,125,000 • 6 bed • 1 bath • 3384 ft²
7 bedroom terraced house for sale in Manor Place, West End, Edinburgh, EH3 — £2,550,000 • 7 bed • 5 bath • 4307 ft²
6 bedroom terraced house for sale in Ainslie Place, New Town, Edinburgh, EH3 — £1,595,000 • 6 bed • 3 bath • 4519 ft²






















































































































































