Rare rural site with secured consent and major cost savings for builders.
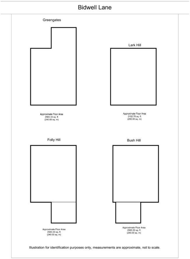
- Class Q consent for approx. 1,296–1,615 sq ft ground floors plus c.862 sq ft first floors
- Mains electric and water already connected, easing utility setup
- No local authority CIL payment; saves over £79,000 on development
- Very large freehold plot with potential for small paddocks/orchards by negotiation
- Existing cladding and steel frame alterations still required; structural work needed
- Broadband very slow locally and crime above average — marketing/resale considerations
An unusual opportunity to complete four barn conversions on a very large freehold plot at the edge of a picturesque Rutland village. Class Q consent has been obtained for substantial internal floorspace — roughly 1,296–1,615 sq ft on the ground floor plus about 862 sq ft on the first floor — removing a significant planning hurdle and making the site attractive to builders or small developers. Mains electric and water are already on site, and there is no local authority CIL liability, saving over £79,000 across the scheme.
The barns suit a buyer wanting to deliver high-spec contemporary homes in a rural setting; nearby completed conversions show the market appetite locally. The site benefits from good road links to the A1 and rail services from Grantham (London in under an hour), plus proximity to Oakham and Stamford for amenities. The landowner may be able to offer adjoining land by negotiation, useful for small paddocks or orchards.
Buyers should note some important outstanding works and constraints. Existing barn cladding and steel frame alterations remain required to create the four dwellings; these structural and envelope works will add cost and programme time. Broadband speeds are very slow locally, and local crime statistics are above average — both factors to consider for marketing or resale. The vendor indicates staged payment options may be possible during development.
This site will suit an investor or experienced developer who values rare conversion opportunities in established farming communities and is prepared to manage the remaining build and infrastructure works. It is less suited to buyers seeking turnkey homes, or those who require fast, high-speed broadband without additional investment.
Residential development for sale in Bidwell Lane, Clipsham, Oakham, LE15 — £150,000 • 1 bed • 1 bath • 11157 ft²
Land for sale in Melton Road, Scalford, LE14 — £450,000 • 1 bed • 1 bath • 2494 ft²
Plot for sale in Barn At School House Farm, Lenton Road, Ingoldsby, Grantham, Lincolnshire, NG33 — £300,000 • 1 bed • 1 bath • 2476 ft²
4 bedroom detached house for sale in Bradley Lane, Clipsham, Oakham, Rutland, LE15 — £500,000 • 4 bed • 4 bath • 4790 ft²
Land for sale in Barrow, Rutland, LE15 — £650,000 • 1 bed • 1 bath • 3400 ft²
Barn conversion for sale in Morton North Drove, Bourne, Lincolnshire, PE10 — £175,000 • 1 bed • 1 bath • 5426 ft²


























