LE15 7SF - 4 bedroom detached house for sale in Bradley Lane, Clipsham…

View on Property Piper

4 bedroom detached house for sale in Bradley Lane, Clipsham, Oakham, Rutland, LE15

Summary - Bradley Barn Clipsham LE15 7SF

4 bed 4 bath Detached

**Standout Features:**
- Large 3.96-acre plot ideal for a rural retreat.
- Full planning permission secured for conversion of a barn into a 4-bedroom, 4-bathroom home.
- Architect-designed plans focus on sustainable, carbon-neutral living.
- Set in the picturesque conservation village of Clipsham, near Oakham and Stamford.
- Potential for extensive renovations with a generous total of 4,790 sq ft.

**Overview:**
Unleash your vision in this rare opportunity to create a stunning carbon-neutral home within a sprawling 3.96-acre plot, just on the outskirts of Clipsham village. This exceptional barn conversion project comes with full planning permission already secured, allowing for a spacious, architecturally designed living space that prioritizes natural light and modern eco-friendly features like solar panels and energy-efficient materials.

Envision yourself in an expansive countryside setting with breathtaking views, where your new home can embrace the tranquility of rural life while remaining accessible to nearby market towns, Oakham (9 miles) and Stamford (10 miles). Although the property requires renovation, its vast interior offers unparalleled flexibility for customization, accommodating a luxurious layout with four en-suite bedrooms and multiple reception areas.

While the area boasts average crime rates and slow broadband speeds, the charm of the community, coupled with convenient access to excellent local schools and picturesque landscapes, makes it an inviting choice for family living or investment potential. With attractive outdoor spaces suitable for gardens or paddocks, this unique property is an extraordinary canvas awaiting your personal touch. Act swiftly—opportunities like this are fleeting, especially within such desirable rural settings.

Property Details

Image Descriptions

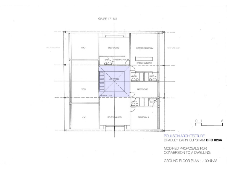
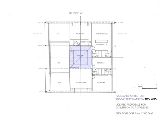
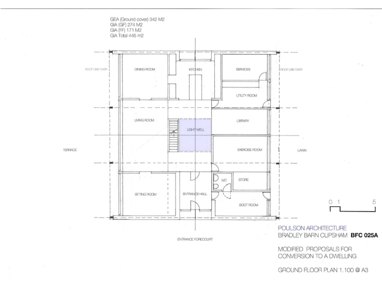
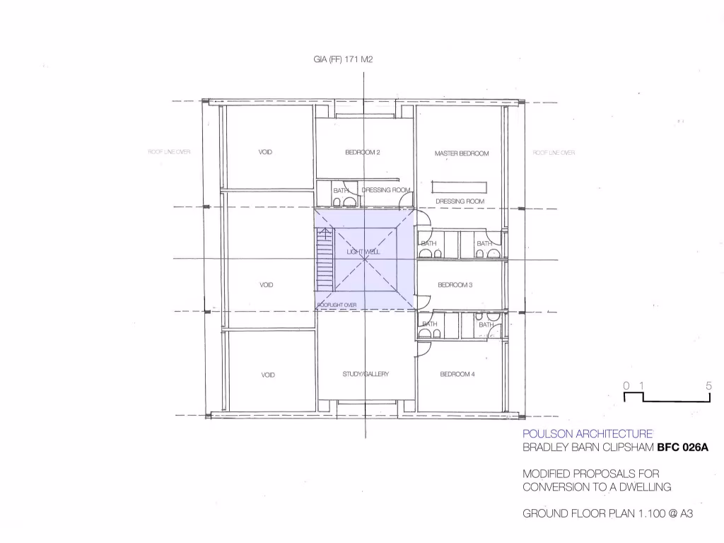
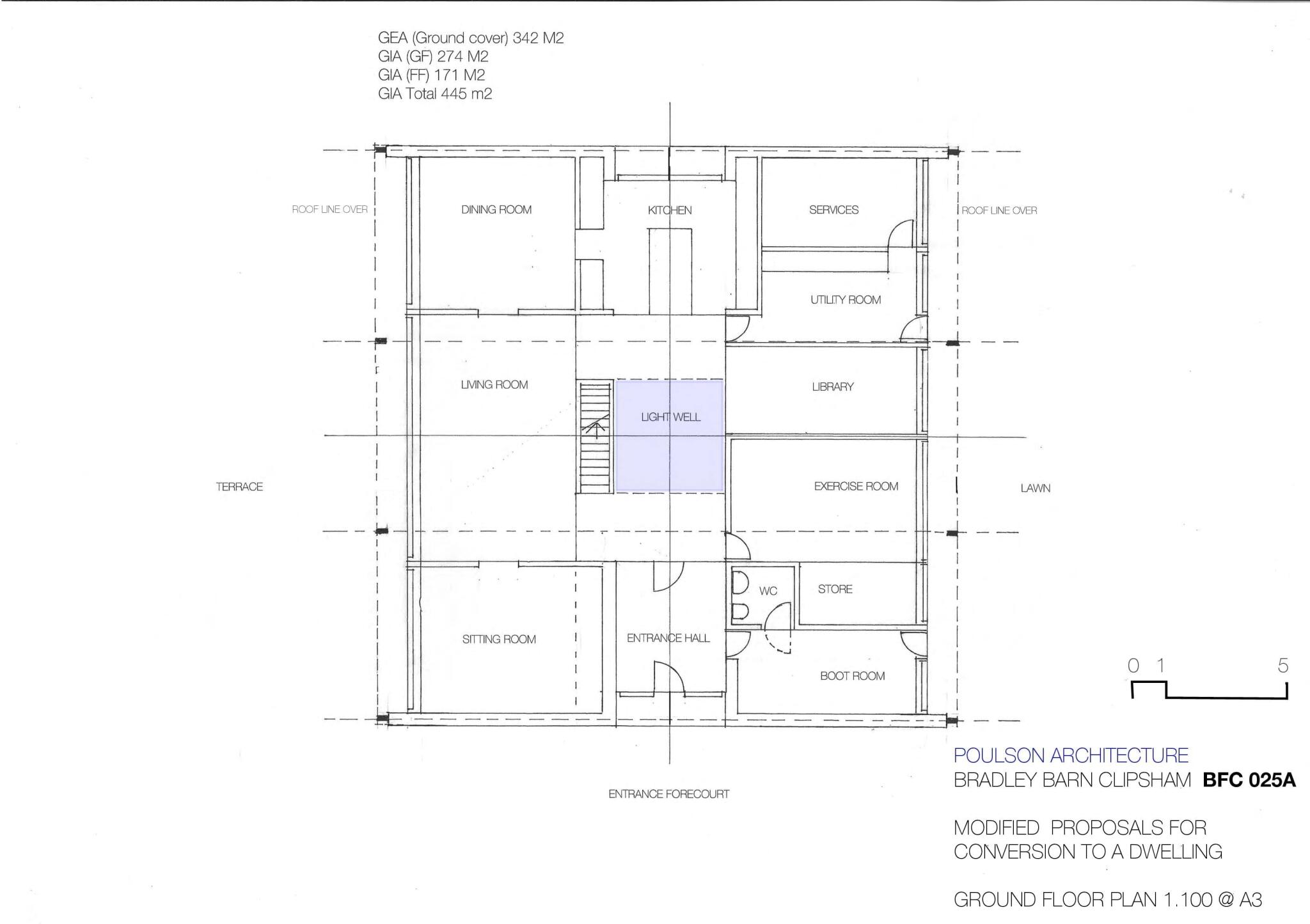
Floorplan Description

Rooms

Textual Property Features

Detected Visual Features

Nearby Schools

Nearest Bars And Restaurants

,,,,}

Nearest General Shops

,,}

Nearest Grocery shops

,,}

Nearest Supermarkets

,,}

Nearest Religious buildings

,,}

Nearest Medical buildings

,,,}

Nearest Leisure Facilities

,,,,}

Nearest Tourist attractions

,,}

Nearest Train stations

,,,,}

Nearest Bus stations and stops

,,,,}

Nearest Hotels

,,}

Tags

Local Market Stats

Similar Properties

Meta

High Res Images

Compatible Images

Low res Images

Thumbnails

Raw Images

High Res Floorplan Images

Compatible Floorplan Images

Low res Floorplan Images

FloorplanImages Thumbnail

Raw Floorplan Images