Class Q consent for two high-quality barn conversions on a large, private rural plot..
Class Q consent granted for two barn-to-home conversions (planning 24/00166/GDOCOU)
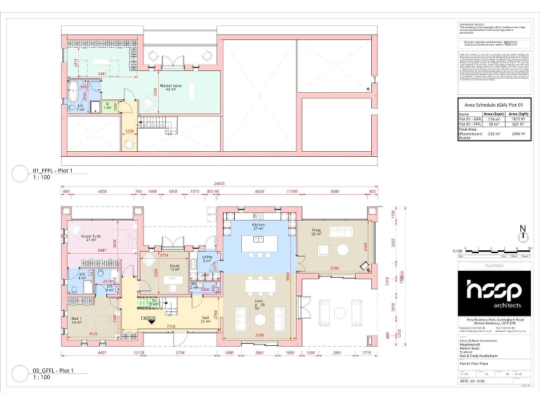
Each barn ~232m2; total approx. 2,494 sq ft across both conversions
Huge private plot set back c.185m with gated vehicular access
Countryside views, fast broadband, low crime, very affluent area
Building regulations approval required; Class Q is not full detailed planning
Barns unused for ~5 years — conversion works and surveys needed
Access width/turning not covered by Class Q; may need alteration for construction
Freehold sale; price £450,000
Meadowcroft offers a rare Class Q conversion opportunity on Melton Road, Scalford: consent granted to convert two substantial barns into two detached homes (Planning 24/00166/GDOCOU, decision notice 03 June 2024). Each barn footprint is roughly 232m2, set back c.185m from the road with existing gated vehicular access and extensive, highly private grounds. The site sits in a very affluent, low-crime rural hamlet with fast broadband and good primary schools nearby — attractive for discerning buyers or for a premium resale.
Much of the planning groundwork is complete: opinion of right to convert under Class Q has been issued and architect’s drawings and floorplans are available. The barns present strong scope to create spacious, contemporary living with large windows, open-plan spaces and patios that capitalise on panoramic countryside views. The huge plot gives flexibility for landscaping, parking and private amenity space; the conversion scheme has been prepared by a local architect familiar with Melton Borough Council requirements.
Important practical points: Class Q consent is an opinion of right to convert and not a full detailed planning permission. Building regulations approval is still required, and any material changes to the approved drawings would need further consent. The barns have been unused for about five years and will require full conversion works; survey and professional reports should be obtained to confirm structural condition, services connections and access dimensions for construction vehicles and turning.
This parcel suits a developer, small specialist builder or investor seeking a country conversion with planning headway already done. Offers are invited on the freehold; purchasers should factor in construction costs, statutory approvals and any site-specific works to drainage, services and access before exchange.
Residential development for sale in Development of Barns, Clipsham, Oakham, LE15 — £640,000 • 1 bed • 1 bath • 10676 ft²
Land for sale in Thornton Lane, Thornton, Markfield, Leicestershire, LE67 — £350,000 • 1 bed • 1 bath
Residential development for sale in Bidwell Lane, Clipsham, Oakham, LE15 — £150,000 • 1 bed • 1 bath • 11157 ft²
Plot for sale in Barn At School House Farm, Lenton Road, Ingoldsby, Grantham, Lincolnshire, NG33 — £300,000 • 1 bed • 1 bath • 2476 ft²
5 bedroom detached house for sale in Scalford Road, Eastwell, LE14 — £995,000 • 5 bed • 4 bath • 3000 ft²
2 bedroom barn conversion for sale in Burroughs Road, Ratby, Leicester, LE6 — £550,000 • 2 bed • 1 bath • 1111 ft²






































































































































