Quiet expansive plot with planning consent and excellent riding access.
Full planning granted 2023 for new 3,400 sq ft dwelling (2023/1297/FUL)
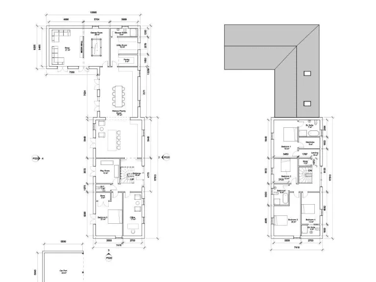
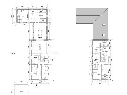
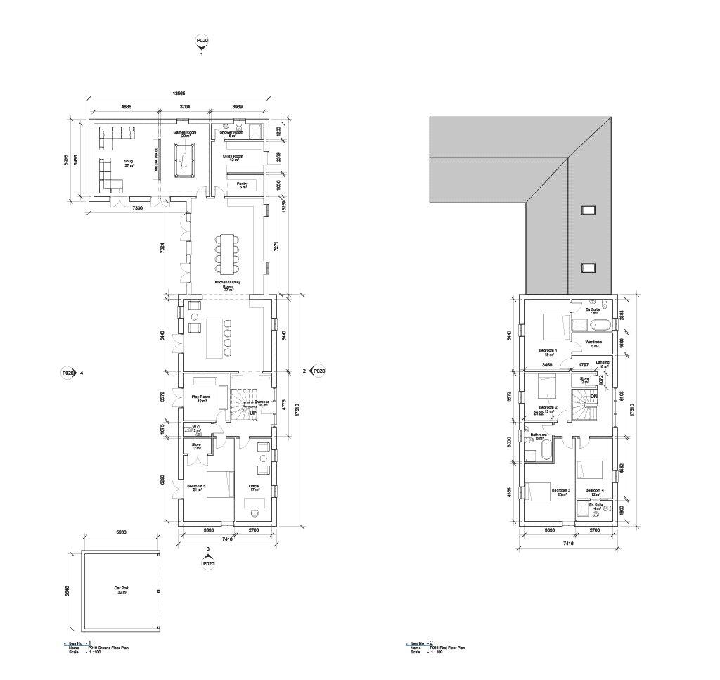
Set within approximately 2.5 acres (with a further 7.5 acres available by separate negotiation), this secluded Rutland plot benefits from full planning consent (2023/1297/FUL) for demolition of the existing agricultural building and erection of a large two-storey limestone dwelling of about 3,400 sq ft. Proposed accommodation includes open-plan living, games room, office and five bedrooms; alternatively, Class Q consent on the existing barn offers conversion potential. The setting is peaceful, edge-of-village and well regarded for hacking and equestrian use, with wide open views and mature hedgerow screening.
Practical considerations: services are not connected and will be the buyer’s responsibility to provide. The owner intends to apply a 25% overage on any additional residential dwellings for 25 years (not affecting the planning already granted). Tenure is not stated and prospective purchasers should verify boundaries, rights of way and all statutory consents prior to offer. Access is informal but off‑street parking and a proposed car port are shown on the plans.
This is a strong opportunity for a purchaser seeking a bespoke family home or an equestrian base in a very affluent Rutland location. Fast broadband is available and the plot sits in a low-crime, village setting with good schooling nearby. The larger 10‑acre potential by separate negotiation enhances appeal for riding, paddocks or wider amenity, subject to separate purchase and legal checks.
Residential development for sale in Bidwell Lane, Clipsham, Oakham, LE15 — £150,000 • 1 bed • 1 bath • 11157 ft²
4 bedroom detached house for sale in *** BUILDING PLOT WITH OUTLINE PLANNING PERMISSION *** Main Street, Thistleton, LE15 — £250,000 • 4 bed • 4 bath
4 bedroom detached house for sale in *** BUILDING PLOT WITH OUTLINE PLANNING PERMISSION *** Main Street, Thistleton, LE15 — £250,000 • 4 bed • 3 bath
Property for sale in Development Plot, Formally "The Lilacs", LE15 — £490,000 • 1 bed • 1 bath • 1655 ft²
4 bedroom detached house for sale in Bradley Lane, Clipsham, Oakham, Rutland, LE15 — £500,000 • 4 bed • 4 bath • 4790 ft²
Residential development for sale in Development of Barns, Clipsham, Oakham, LE15 — £640,000 • 1 bed • 1 bath • 10676 ft²














































