Create a bespoke contemporary country home in a conservation village setting.
1. 1.3 acre freehold plot with full planning permission (appeal allowed).
2. Approved barn-style dwelling approx. 246.8 sqm (large footprint).
3. Conversion of existing stone building approved for garage.
4. Landscaped rear garden and private orchard included in proposals.
5. Additional 11.7 acres available separately for more land or privacy.
6. Electricity present but currently disconnected; buyer to reconnect.
7. No mains drainage on site – purchaser must arrange sewage solution.
8. Public footpath (SM153/1) borders southern boundary; check route.
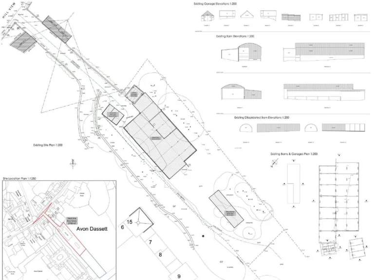
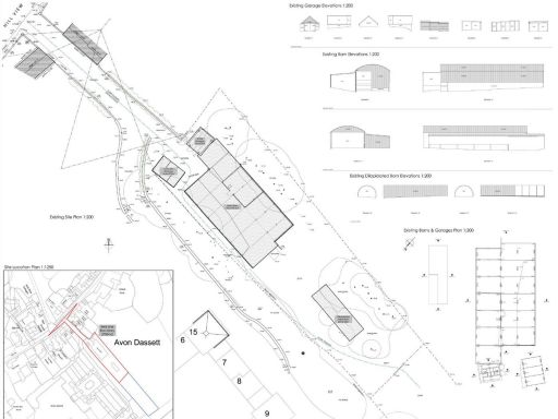
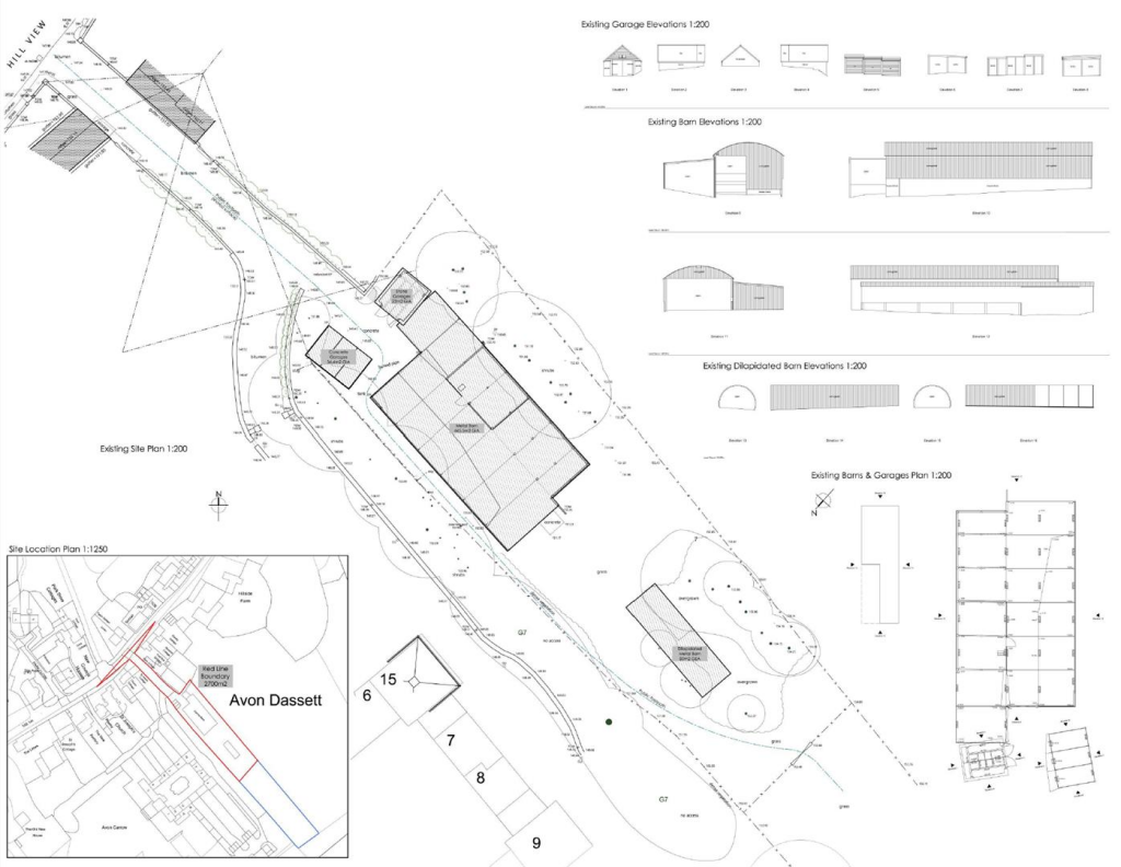
This is a rare self-build opportunity in Avon Dassett: a 1.3 acre freehold plot with full planning permission (Appeal Ref APP/J3720/W/24/3351111, Application Ref 23/03397/FUL) for a barn-style house of approximately 246.8 sqm and conversion of a traditional stone building to a garage. The approved design delivers generous open-plan living, high-level glazing and an arranged private rear garden with orchard, offering a contemporary country home in an idyllic conservation village setting.
The site suits buyers seeking a bespoke new-build in a tranquil, affluent neighbourhood with good road and rail connections nearby. Additional agricultural land (up to 11.7 acres) may be purchased separately, providing scope for greater privacy, grazing, or future landscaping. The plot’s size and approved footprint give room for substantial accommodation and landscaped grounds as shown in the proposals.
Buyers should note some important practical points: electricity to the plot is currently disconnected, there is no mains drainage on site, and purchasers must verify service connections with utility providers. The public footpath SM153/1 runs along the southern boundary; prospective buyers should confirm exact routes and any implications. The red line boundary shown in marketing material is indicative only and should not be relied upon for legal purposes.
Overall, this offering is strongest for someone who wants control over a high-quality, contemporary rural build and can manage the final utility connections and site works. With an allowed appeal and detailed plans in place, the plot reduces planning risk and speeds a route to a finished, sizable country home in a sought-after village location.
Plot for sale in Hall Lane, Harbury, Leamington Spa, CV33 — £450,000 • 4 bed • 3 bath • 2755 ft²
4 bedroom country house for sale in Old School Lane, Lighthorne, Warwick, CV35 — £1,200,000 • 4 bed • 2 bath • 1656 ft²
5 bedroom barn conversion for sale in The Drying Barn, Idlicote Estate Barns,, CV36 — £650,000 • 5 bed • 4 bath • 5000 ft²
3 bedroom detached house for sale in Main Street, Lower Tysoe, Warwick, CV35 0BN, CV35 — £595,000 • 3 bed • 3 bath • 1937 ft²
Equestrian facility for sale in Radway, Warwick, Warwickshire, CV35 — £2,000,000 • 5 bed • 3 bath • 4126 ft²
3 bedroom detached house for sale in Plot 3, Idlicote Road Halford, Shipston-On-Stour, CV36 5DJ, CV36 — £725,000 • 3 bed • 3 bath • 1784 ft²


























































