**Standout Features:**
- Unique architecturally designed new build positioned in Lower Tysoe
- Under construction with planning permission (REF-19/03363/FUL)
- Energy-efficient, built to Passivhaus standards with advanced energy systems
- Expansive countryside views and large garden
- Customization potential with many high-spec materials included
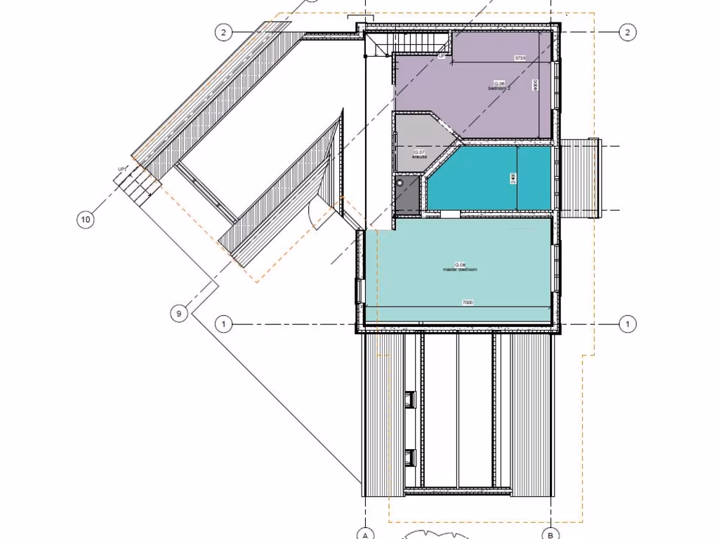
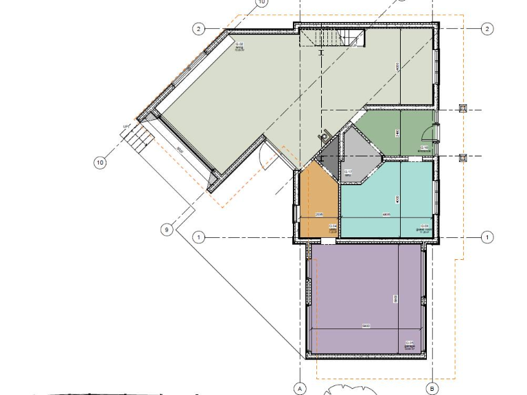
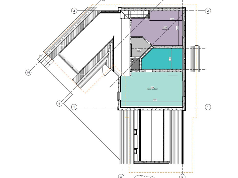
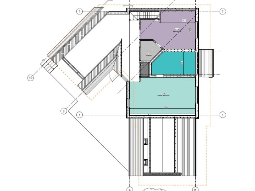
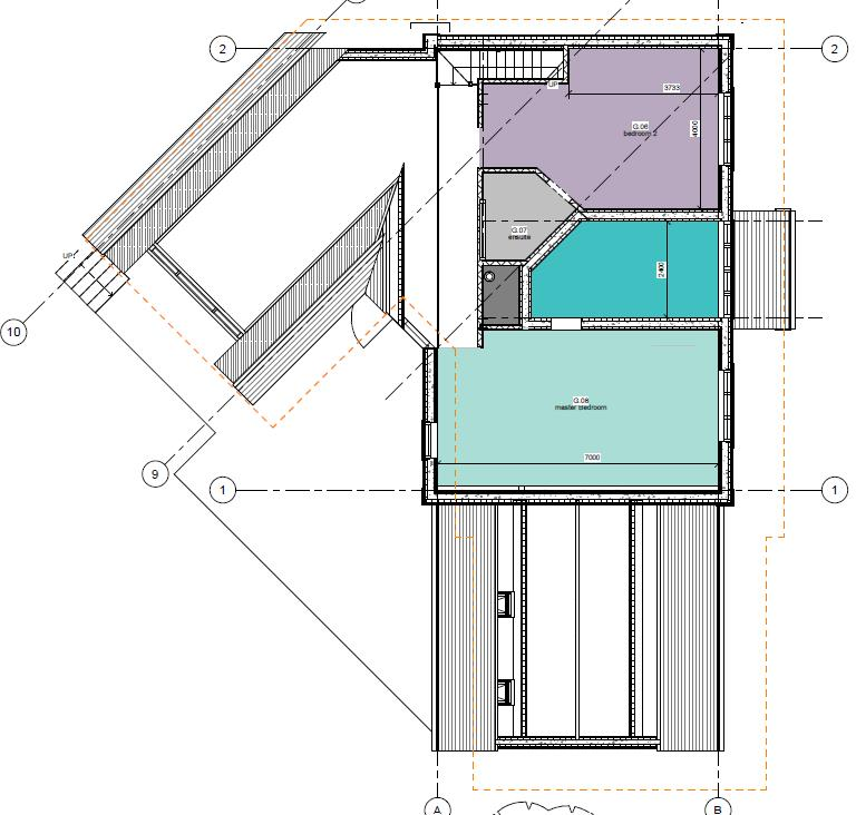
- 3 bedrooms, 3 bathrooms, attached double garage
- 12-week local connection restriction applies
- Cash buyers only
Discover an exceptional opportunity to create your dream home in the peaceful hamlet of Lower Tysoe, near the breathtaking Cotswolds. This architecturally stunning new build, currently at the first fix stage, allows you to tailor your living space to your personal style. With energy-efficient features like integrated solar panels, a state-of-the-art air-to-water heating system, and heat recovery ventilation, you’ll enjoy low-energy living without sacrificing comfort.
Set on a spacious plot, this property offers breathtaking countryside views and an expansive garden, ideal for outdoor entertaining and family activities. With ample room for customization, you can choose between a sleek contemporary design or a cozy, characterful home. While the house does require completion and some renovation, many essential high-spec materials are included in the sale, making this an incredible value for cash buyers looking to invest in their future.
Experience the charm of village life with local amenities nearby and excellent transport links to major towns. Act quickly — opportunities to create a bespoke home like this are rare!
3 bedroom detached house for sale in Ashorne, CV35 — £500,000 • 3 bed • 2 bath • 948 ft²
5 bedroom detached house for sale in Mayfield Farm, Bear Lane, Henley-In-Arden B95 5JJ, B95 — £1,575,000 • 5 bed • 3 bath • 2651 ft²
4 bedroom detached house for sale in Williams Orchard, Duck Lane, Welford On Avon, CV37 — £1,295,000 • 4 bed • 3 bath • 2350 ft²
Plot for sale in Land at Carrow Barn, Avon Dassett, Southam, CV47 — £450,000 • 1 bed • 1 bath • 2656 ft²
5 bedroom detached house for sale in Oldacre Gardens, Mill Lane, Newbold on Stour, Stratford upon Avon, CV37 — £1,295,000 • 5 bed • 5 bath • 3478 ft²
6 bedroom house for sale in Stratford Road, Wootton Wawen, Henley-In-Arden, B95 — £1,500,000 • 6 bed • 5 bath • 3702 ft²






























































































































