**Standout Features:**
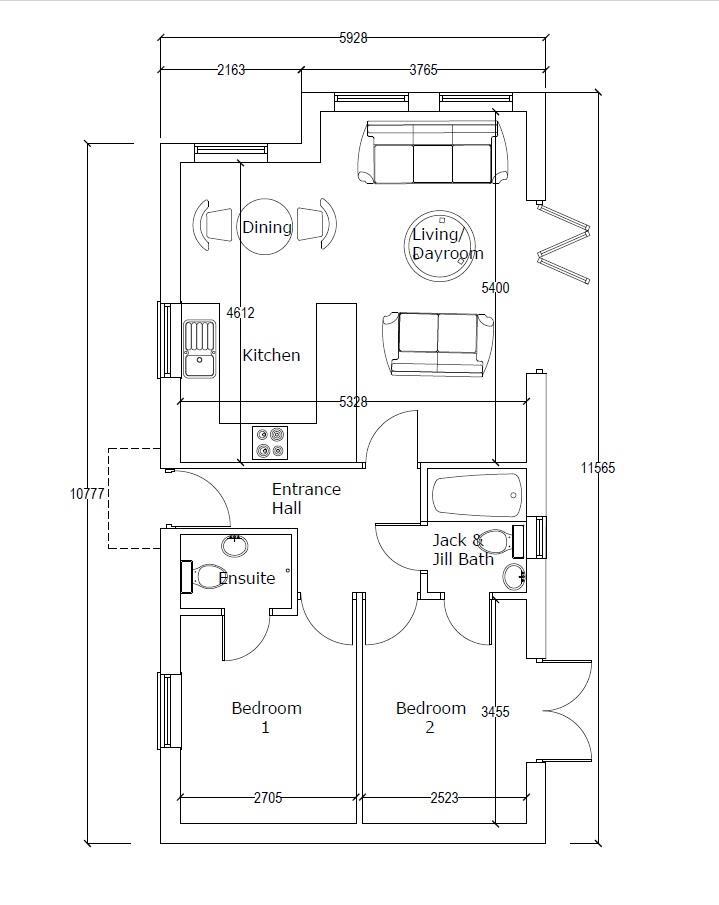
- Freehold building plot with full planning approval for a single-storey, 2-bedroom bungalow.
- Located in the serene Greenacre Park village, ideal for a self-build for downsizers.
- Includes a decent-sized garden and designated garage parking.
- Quiet, low-crime area with excellent mobile service and average broadband speeds.
- Within walking distance to local amenities, schools, and community facilities.
**Summary:**
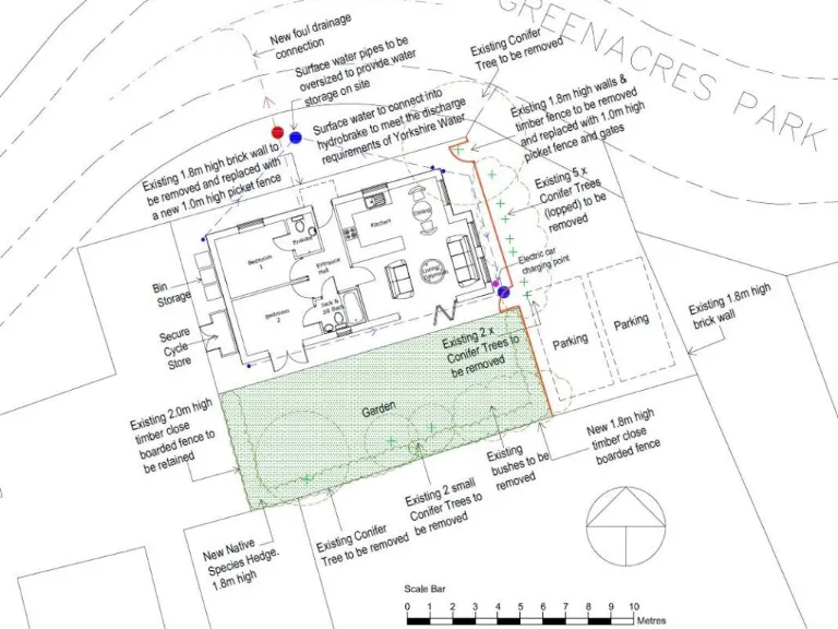
Discover a rare opportunity to create your dream home on this building plot in the tranquil village of Greenacre Park. With full planning approval granted for a stylish two-bedroom bungalow, this parcel of land offers potential for a modern one-story design in a peaceful rural setting. The plot includes a decent garden area, perfect for outdoor relaxation or gardening enthusiasts, and designated garage parking adds convenience.
The surrounding village atmosphere and access to local amenities, including well-rated schools and various community facilities, make this an attractive proposition for those looking to downsize or embrace a quieter lifestyle. The flat topography and existing boundary hedges enhance privacy and make construction straightforward. Don't miss your chance to invest in this exclusive opportunity—building plots in this desirable village are rarely available.
Plot for sale in Land West Of Wheatcroft, Hull Road, Easington, HU12 — £100,000 • 1 bed • 1 bath
Plot for sale in Meadow Croft, Roos, Hull, East Riding of Yorkshire, HU12 0AX, HU12 — £120,000 • 1 bed • 1 bath • 2325 ft²
Plot for sale in Station Road, Patrington, HU12 0NE, HU12 — £150,000 • 1 bed • 1 bath
Plot for sale in Bishop Close, High Street, Patrington Hull, HU12 — £130,000 • 1 bed • 1 bath
2 bedroom detached bungalow for sale in North Leys Road, Hollym, HU19 — £100,000 • 2 bed • 1 bath • 598 ft²
Plot for sale in Land at Middle Farm, Bilton, HU11 — £500,000 • 1 bed • 1 bath


































