**Standout Features:**
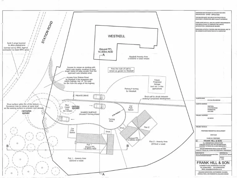
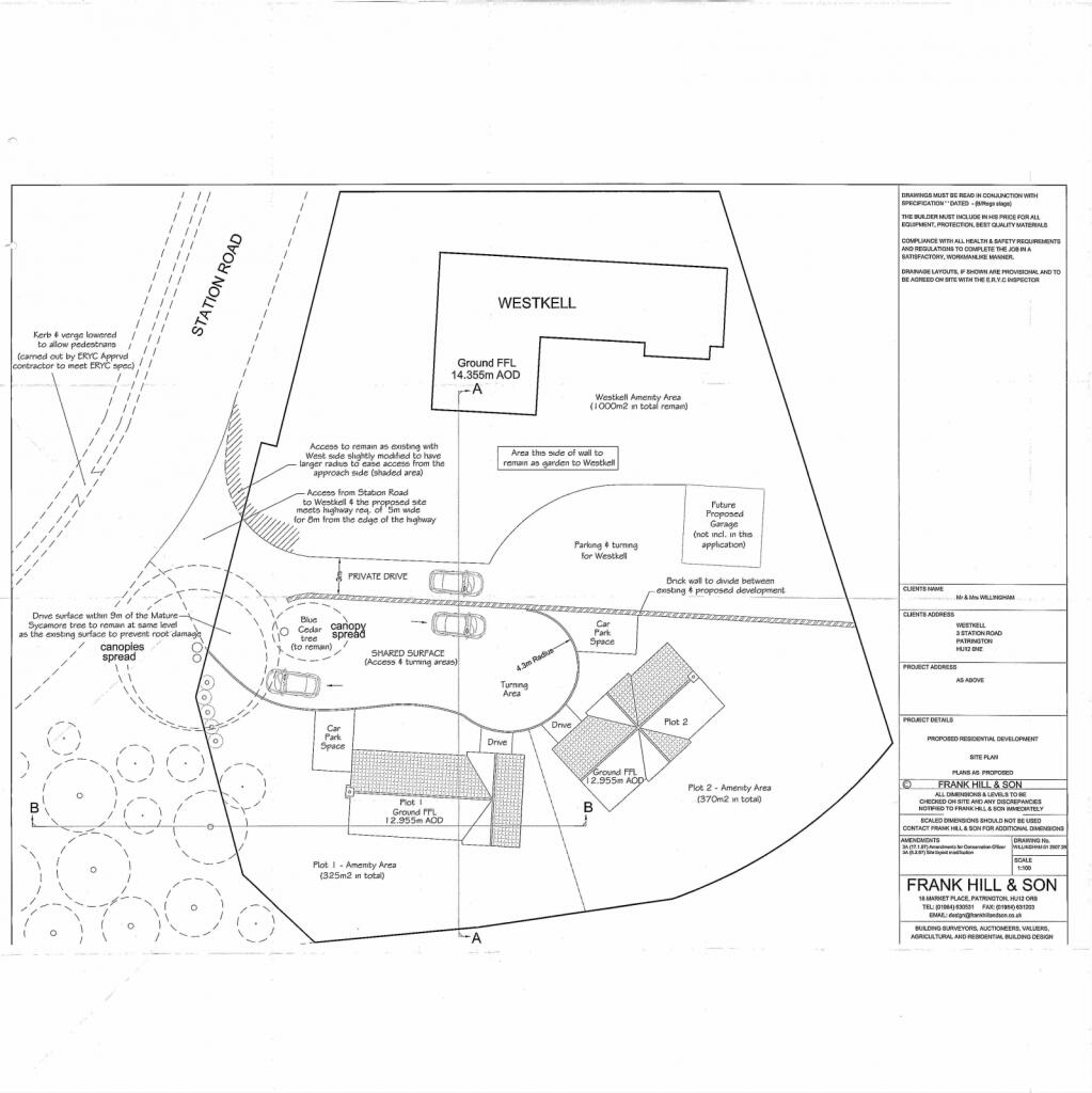
- Development plot with full planning consent for a detached 3-bedroom home plus study and integral garage.
- Attractive village location in Patrington, overlooking the serene countryside.
- Services (water, electricity, gas, drainage) are already connected.
- Off-street parking and a shared driveway.
- Close proximity to local amenities: primary school, shops, pubs, and healthcare services.
**Summary:**
Dreaming of building your own home? This spacious development plot in the picturesque village of Patrington offers a unique opportunity to create your ideal living space. Boasting full planning permission to construct an attractive detached property featuring three bedrooms, a study, and an integral garage, this well-located site provides striking potential for modern family living within a traditional setting. With services already connected and an inviting garden area poised to capture sun, you can easily envision a comfortable retreat.
Nestled within a community rich in history, this elevated plot is mere moments away from essential amenities, including a primary school and local shops—perfect for families and professionals alike. The peaceful surroundings and low crime rate further enhance the appeal, making it an ideal investment in your future. Don't miss this chance to secure your spot in a sought-after rural location where the charm of the Holderness countryside meets modern convenience. Act quickly; opportunity like this doesn't stay on the market for long!
Plot for sale in Bishop Close, High Street, Patrington Hull, HU12 — £130,000 • 1 bed • 1 bath
Plot for sale in Land West Of Wheatcroft, Hull Road, Easington, HU12 — £100,000 • 1 bed • 1 bath
Plot for sale in Land North East of Hansa House, Main Street, Roos, HU12 — £65,000 • 1 bed • 1 bath
Plot for sale in Meadow Croft, Roos, Hull, East Riding of Yorkshire, HU12 0AX, HU12 — £120,000 • 1 bed • 1 bath • 2325 ft²
Plot for sale in Station Road, Stallingborough, Grimsby, Lincolnshire, DN41 — £95,000 • 1 bed • 1 bath
4 bedroom detached house for sale in Holmpton, East Yorkshire, HU19 — £300,000 • 4 bed • 3 bath


















