Large private plot in Roos with planning permission and services ready for connection.
Full planning permission for three-bedroom detached home (ref 21/00342/PLF)
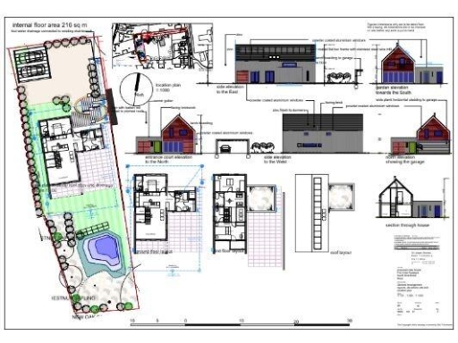
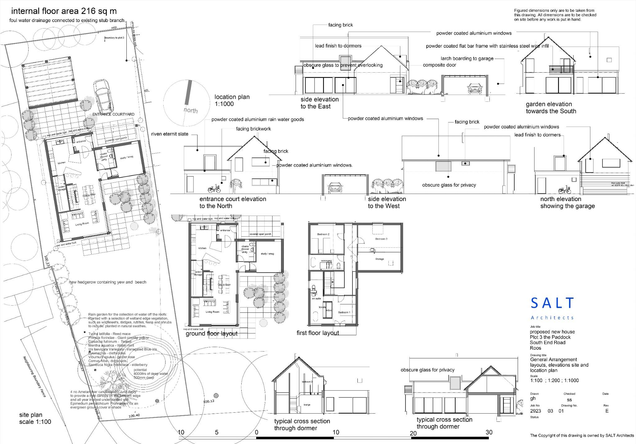
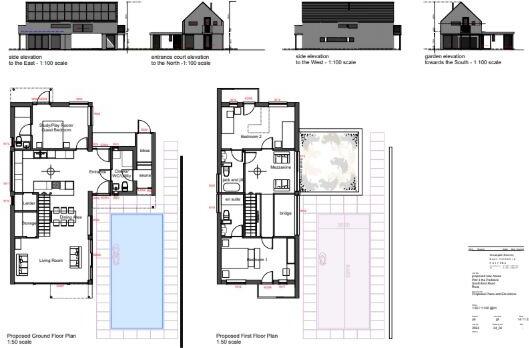
An unusually large private building plot in the sought-after village of Roos, offered with full planning permission for a three-bedroom detached home (East Riding ref 21/00342/PLF). The paddock sits off a quiet private lane, screened by mature hedges and trees, giving a strong sense of seclusion while remaining within easy reach of village amenities: pub, shop, butcher and primary school. Hedon and Hull are a short drive for wider services.
Services are largely in place: an on-site electrical connection box, a stopped-off water supply and Openreach ducting and cabling laid. The purchaser will need to appoint utility providers and arrange final meter connections and internal service ties. Planning drawings are available on the council portal and the approved scheme envisages a contemporary two-storey dwelling with integrated garage and garden.
This plot suits self-builders or developers seeking a ready-to-build site in a rural setting. Positive practical points include freehold tenure, very low flood risk and excellent mobile signal. Notable considerations: the wider area shows pockets of deprivation, broadband speeds are only average, and final connections for electricity, water and telecoms remain the buyer’s responsibility. The guide price is £110,000.
Plot for sale in Land North East of Hansa House, Main Street, Roos, HU12 — £65,000 • 1 bed • 1 bath
Plot for sale in Station Road, Patrington, HU12 0NE, HU12 — £150,000 • 1 bed • 1 bath
4 bedroom detached house for sale in Meadow Croft, Roos, Hull, HU12 0AX, HU12 — £420,000 • 4 bed • 2 bath • 1855 ft²
Plot for sale in Land West Of Wheatcroft, Hull Road, Easington, HU12 — £100,000 • 1 bed • 1 bath
Plot for sale in Bishop Close, High Street, Patrington Hull, HU12 — £130,000 • 1 bed • 1 bath
4 bedroom detached house for sale in Dove Close, Roos, Hull, HU12 0LL, HU12 — £400,000 • 4 bed • 2 bath • 1800 ft²






























































