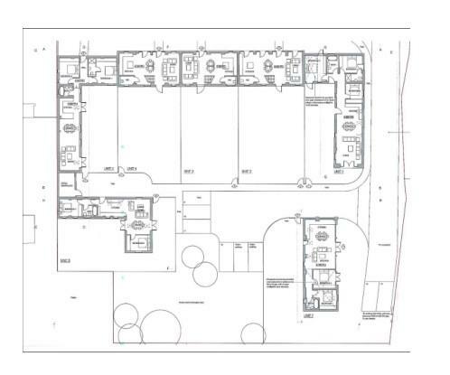
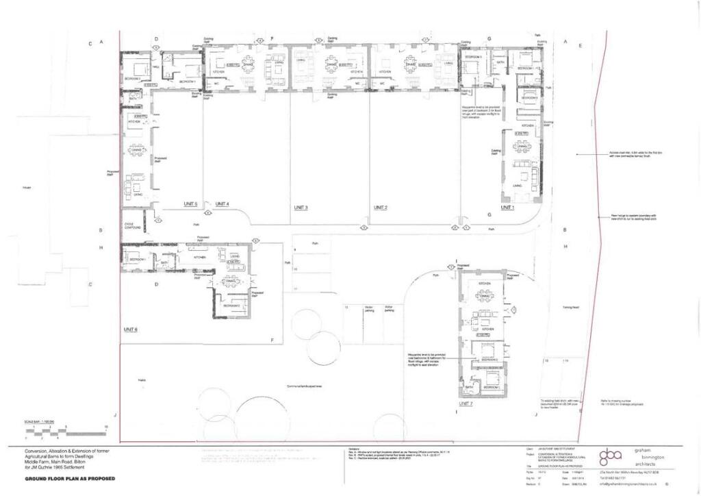
**Standout Features:**
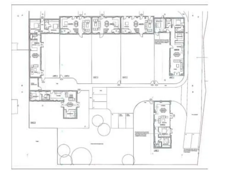
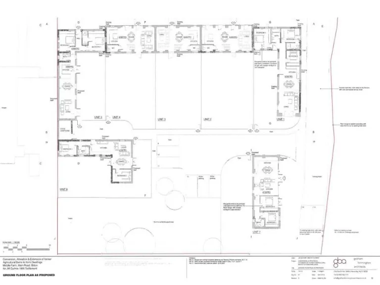
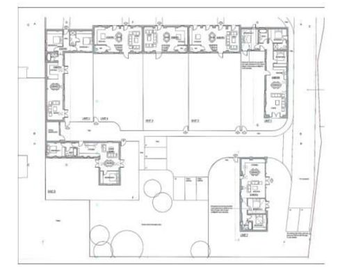
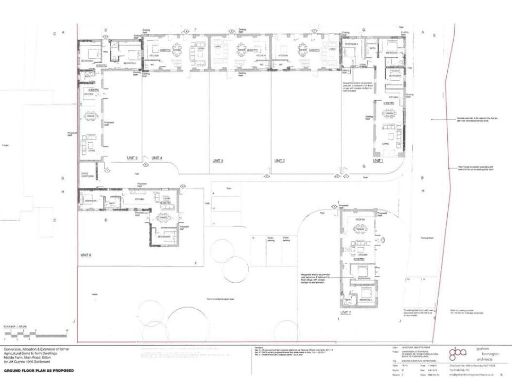
- Planning permission granted for 7 dwellings: 3 three-bedroom and 4 two-bedroom
- Access via Main Road, Bilton, just 3.8 miles from Hull city centre
- Spacious layout with wind and water-proof structures, some recently reroofed
- Afiliated with highly rated local schools
- Excellent mobile signal and fast broadband speeds
- Located in a sought-after, affluent village setting next to scenic fields
**Potential Concerns:**
- Existing buildings may require renovation and maintenance
- Part of the structures appears to be unkempt
**Summary:**
Discover a rare development opportunity in the picturesque village of Bilton. This property is primed for transformation, with approved plans for seven charming dwellings that blend modern lifestyles with rural tranquility. The existing agricultural buildings boast high ceilings and substantial space, providing an ideal canvas for creative renovations. Set just 3.8 miles from the vibrant Hull city centre and surrounded by open fields, residents will enjoy both convenience and serenity. Local amenities and highly rated schools add to the family-friendly appeal. While some sections may need restoration, the potential for a profitable investment is immense. Don’t miss this chance to bring your vision to life in a highly sought-after location—such opportunities are rare and fleeting!
Land for sale in Vale Farm House, Kirmington Vale, Barnetby, Lincolnshire, DN38 6AF, DN38 — £450,000 • 1 bed • 1 bath
Land for sale in Riverside Close, Driffield, East Riding Of Yorkshire, YO25 — POA • 1 bed • 1 bath • 28750 ft²
6 bedroom barn conversion for sale in The Barn, Castlethorpe, Brigg, Lincolnshire, DN20 9LG, DN20 — £275,000 • 6 bed • 1 bath
Commercial development for sale in Vale Farm House, Kirmington Vale, Barnetby, Lincolnshire, DN38 6AF, DN38 — £450,000 • 1 bed • 1 bath
5 bedroom detached house for sale in Main Road, Bilton, Hull, East Riding of Yorkshire. HU11 4DX, HU11 — £850,000 • 5 bed • 5 bath • 5264 ft²
3 bedroom semi-detached house for sale in Galfrid Road, Bilton, Hull, HU11 — £215,000 • 3 bed • 1 bath • 637 ft²


































































































