Bright, family-focused new build with flexible living and garage parking.
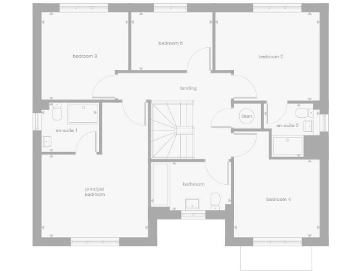
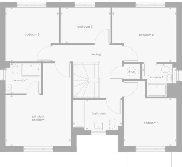
Five bedrooms with two en-suite bedrooms and a separate family bathroom
Open-plan kitchen/family/dining area with French doors to garden
Separate bay-windowed lounge for quieter living
Dedicated laundry room and useful storage throughout
Single garage and driveway parking; solar panels indicated
Approx 1,201 sq ft — compact layout for a five-bedroom house
10-year NHBC new-build warranty; energy-efficient design
Annual service charge £196.74; area has pockets of deprivation
This recently built five-bedroom detached home sits in a comfortable suburban development and is designed for family living. The open-plan kitchen, family and dining area opens via French doors to the garden, creating a bright, flexible hub for everyday life and entertaining. A separate bay-windowed lounge gives a quieter sitting space.
The house includes two en-suite bedrooms (principal and bedroom 2), a separate family bathroom, and a dedicated laundry room, helping busy households stay organised. Practical details include a single garage, driveway parking, fast broadband availability and energy-efficient features, plus a 10-year NHBC new-build warranty for peace of mind.
At about 1,201 sq ft this is a relatively compact five-bedroom layout with flexible rooms suitable for a home office or nursery. Buyers should note an annual service charge of £196.74 and that the wider area is classed as having pockets of deprivation, which may be relevant for resale or investment considerations.
Overall, this home will suit families who prioritise adaptable living space, modern finishes and the reassurance of a new-build warranty. The property offers immediate move-in readiness with potential to personalise finishes and landscaping to taste.
5 bedroom detached house for sale in Off Turnhouse Road,
Edinburgh,
EH12 0AD, EH12 — £617,000 • 5 bed • 1 bath • 1201 ft²
4 bedroom detached house for sale in Off B6392,
Bonnyrigg,
Midlothian,
EH19 3FA, EH19 — £425,000 • 4 bed • 1 bath • 859 ft²
5 bedroom detached house for sale in Off Millerhill Road,
Danderhall,
Midlothian,
EH22 1SB, EH22 — £534,000 • 5 bed • 1 bath • 1140 ft²
5 bedroom detached house for sale in Off B6392,
Bonnyrigg,
Midlothian,
EH19 3FA, EH19 — £575,000 • 5 bed • 1 bath • 1393 ft²
5 bedroom detached house for sale in Off Whitecraig Road,
Whitecraig,
East Lothian
EH21 8PG, EH21 — £457,000 • 5 bed • 1 bath • 1202 ft²
5 bedroom detached house for sale in Off B6392,
Bonnyrigg,
Midlothian,
EH19 3FA, EH19 — £545,000 • 5 bed • 1 bath • 1340 ft²


































































