Contemporary layout, efficient new build with garage and garden.
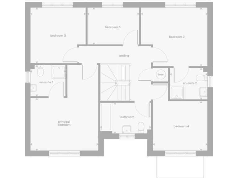
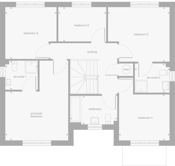
- Five bedrooms, two en-suites and principal dressing room
- Open-plan kitchen/family/dining room with French doors to garden
- Separate lounge with traditional bay window
- Single garage, driveway parking and garden
- Energy-efficient new build with 10-year NHBC warranty
- Compact overall footprint (≈1,202 sq ft); some bedrooms are small
- Council Tax band G; annual service charge £114.85
- Local area classed as very deprived; average broadband speeds
A newly built five-bedroom detached house arranged over two floors, designed for family living with modern fixtures and an energy-efficient specification. The heart of the home is an open-plan kitchen, family and dining area with French doors to the garden, plus a separate lounge with a traditional bay window. Two bedrooms have en-suite facilities and the principal bedroom includes a dedicated dressing room. The property benefits from a single garage, driveway parking and a 10-year NHBC warranty for buyer peace of mind.
Practical running costs should be considered: this home sits in Council Tax band G and the development has an annual service charge of £114.85. Broadband speeds are average and the immediate area is classified as very deprived, which may influence resale profiles and local amenities. Flooding risk is low and mobile signal is excellent.
Rooms are efficiently laid out within a modest overall footprint (about 1,202 sqft), so several bedrooms are compact. The house is essentially move-in ready as a new build, but purchasers seeking larger rooms, expansive gardens or rural seclusion may find the plot and room sizes limited. The property suits buyers prioritising modern design, energy efficiency and family-oriented layouts within a suburban development rather than large private grounds.
4 bedroom semi-detached house for sale in Off Whitecraig Road,
Whitecraig,
East Lothian
EH21 8PG, EH21 — £335,000 • 4 bed • 1 bath • 661 ft²
4 bedroom detached house for sale in Off Whitecraig Road,
Whitecraig,
East Lothian
EH21 8PG, EH21 — £339,000 • 4 bed • 1 bath • 730 ft²
4 bedroom detached house for sale in Off Whitecraig Road,
Whitecraig,
East Lothian
EH21 8PG, EH21 — £388,000 • 4 bed • 1 bath • 965 ft²
4 bedroom detached house for sale in Off Whitecraig Road,
Whitecraig,
East Lothian
EH21 8PG, EH21 — £424,000 • 4 bed • 1 bath • 1063 ft²
4 bedroom detached house for sale in Off Whitecraig Road,
Whitecraig,
East Lothian
EH21 8PG, EH21 — £390,000 • 4 bed • 1 bath • 1120 ft²
4 bedroom detached house for sale in Off Whitecraig Road,
Whitecraig,
East Lothian
EH21 8PG, EH21 — £404,000 • 4 bed • 1 bath • 1120 ft²






































































































































































































































































































