Spacious four-bed historic home with garage, workshop and low-maintenance outside space.
Grade II listed former mill warehouse with original beams and stonework
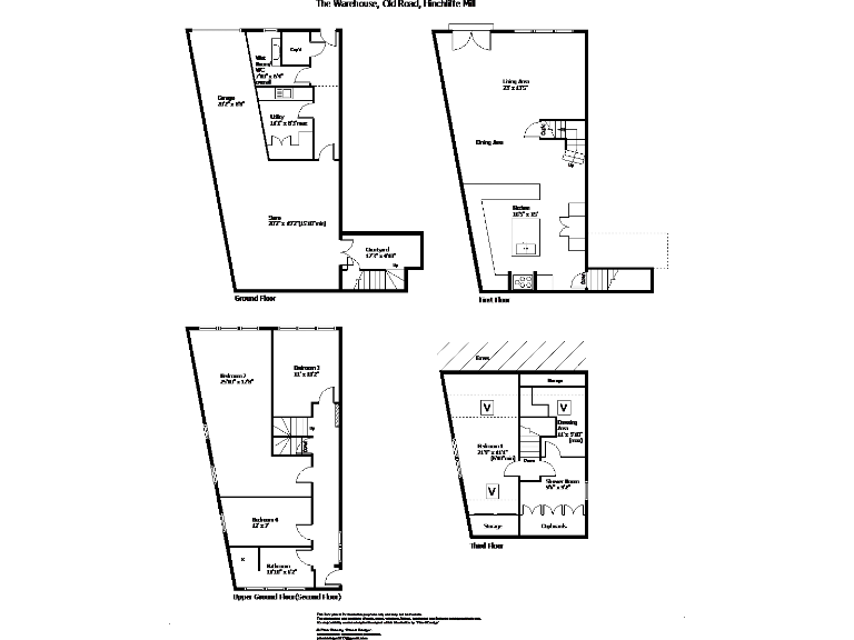
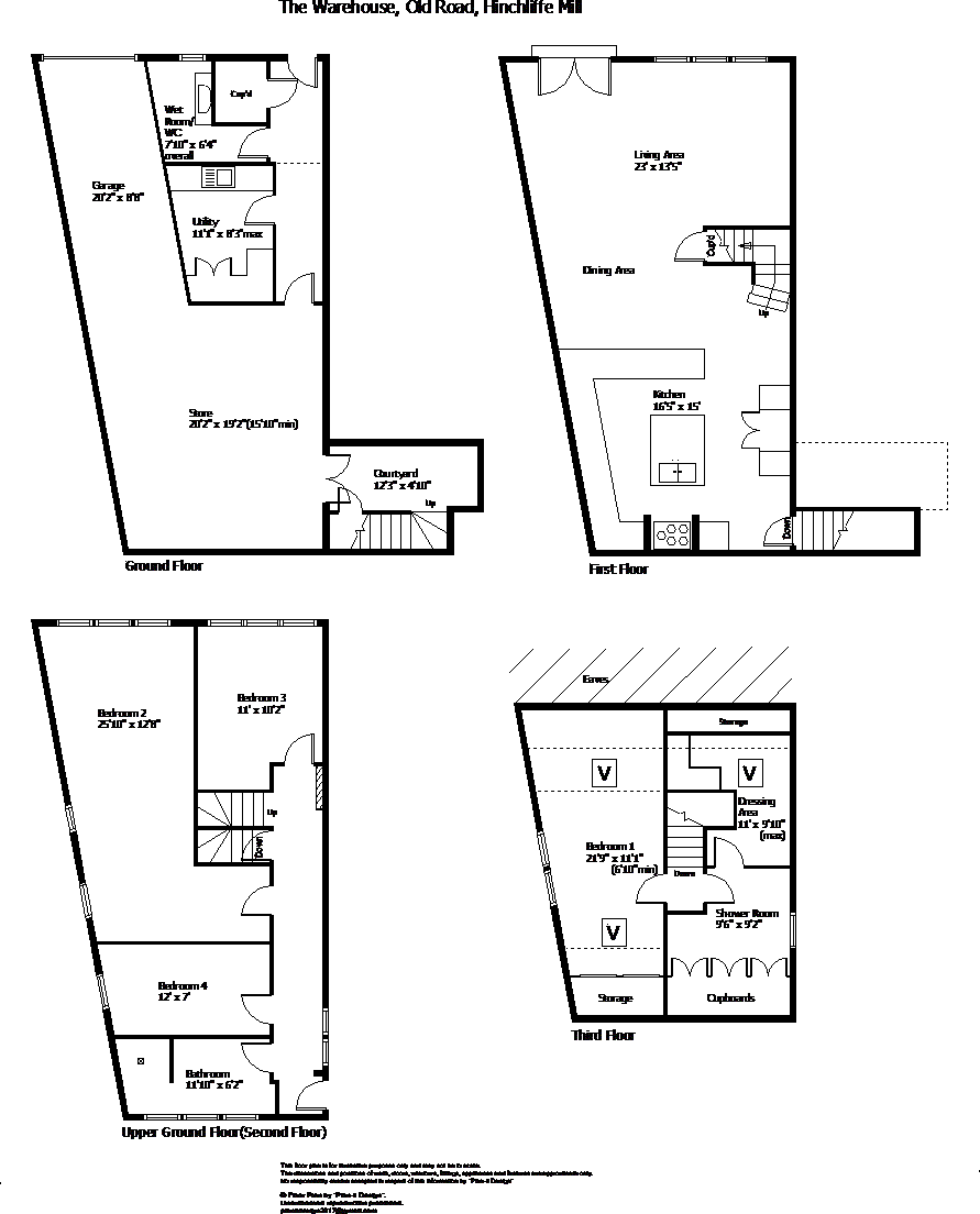
This converted Grade II listed former mill warehouse offers spacious, characterful living over three floors. Recent extensive renovation has created a large open-plan kitchen/living space with exposed beams, mullioned windows and high ceilings, paired with high-quality modern fittings throughout. The principal bedroom occupies the attic with an adjoining dressing room and shower room, while three further double bedrooms and a modern house bathroom sit on the upper ground floor.
Practical features include an integral double garage with remote roller door, a large workshop/store beneath the living accommodation, utility/boot room, underfloor heating throughout the living areas and wooden-framed double glazing. The property is essentially lock-up-and-leave with a small paved front seating area rather than formal gardens — suited to buyers wanting space and low-maintenance outdoor upkeep.
Buyers should note the property’s Grade II listed status and EPC exemption. Listing safeguards original features but will restrict alterations and may complicate future extension or significant alterations. The small plot provides limited external amenity and the council tax band is above average.
Located in a popular semi-rural village about a mile from Holmfirth town centre, the house sits amid attractive countryside with good broadband and mobile signal. The combination of generous internal space, workshop/garage facilities and historic character will appeal to families or buyers seeking a distinctive rural-edge home with modern comforts.
5 bedroom terraced house for sale in Cocking Steps Mill, Cocking Steps Lane, Netherton, Huddersfield, HD4 — £475,000 • 5 bed • 2 bath • 1378 ft²
5 bedroom barn conversion for sale in Woodhouse Lane, Holmbridge, Holmfirth, HD9 — £950,000 • 5 bed • 3 bath • 3447 ft²
3 bedroom detached house for sale in Holme Court, New Mill, Holmfirth, HD9 7NP, HD9 — £465,000 • 3 bed • 2 bath • 1496 ft²
1 bedroom apartment for sale in Stoney Lane, Longwood, HD3 — £120,000 • 1 bed • 1 bath • 743 ft²
4 bedroom detached house for sale in Heys Road, Holmfirth, HD9 — £595,000 • 4 bed • 1 bath • 1958 ft²
3 bedroom detached house for sale in The Old Warehouse, Forge Lane, Liversedge, WF15 — £375,000 • 3 bed • 2 bath • 2726 ft²














































































































































































