Chain-free two-bedroom terraced home with driveway and long rear garden — ideal for commuters and families..
Chain-free freehold 2-bed terraced house with off-street driveway
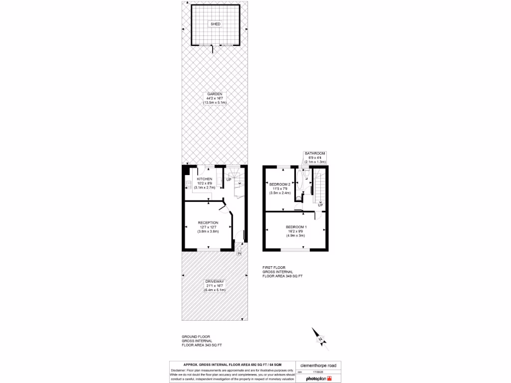
Long private rear garden approx 44'2" — extension potential (subject to consent)
Close to Becontree (District line) — good commuter links to central London
Gas central heating and double glazing; EPC rating D
Approx 692 sq ft — practical two-bedroom layout, reception and fitted kitchen
Built 1930–49; cavity walls assumed uninsulated — energy upgrade needed
Located in a very deprived area — may affect long-term resale values
Single bathroom; cosmetic refurbishment likely required
This two-bedroom terraced house on Clementhorpe Road is a straightforward, chain-free freehold suited to commuters and growing families. The property offers a generous off-street driveway and a long private rear garden (approx 44'2"), rare for this price band and helpful for children, pets or future extension (subject to planning).
Internally the layout is practical: a 12'7" reception room, separate fitted kitchen and a first-floor bathroom. The home has gas central heating, double glazing and a usable floor area of about 692 sq ft, so it is liveable now but presents clear scope to modernise and add value.
Buyers should note material considerations: the house dates from the 1930s–40s and cavity walls are assumed to have no insulation, the EPC rating is D, and the property will likely benefit from energy improvements and cosmetic updating. The wider area has very high deprivation indices, which may affect long-term resale premiums despite good transport links.
Location is a strong selling point: close to Becontree (District line) and several good-rated local schools, making the home practical for commuters with children. Council tax band C, low local crime and fast broadband add everyday convenience.
2 bedroom terraced house for sale in Langley Crescent, Dagenham, RM9 — £400,000 • 2 bed • 1 bath • 745 ft²
2 bedroom terraced house for sale in Arden Crescent, Dagenham, RM9 — £365,000 • 2 bed • 1 bath • 700 ft²
3 bedroom terraced house for sale in Romsey Road, Dagenham, RM9 — £390,000 • 3 bed • 1 bath • 960 ft²
2 bedroom terraced house for sale in Rosedale Road, Dagenham , RM9 — £400,000 • 2 bed • 1 bath • 920 ft²
2 bedroom terraced house for sale in Langley Crescent, Dagenham, RM9 — £390,000 • 2 bed • 1 bath • 727 ft²
2 bedroom terraced house for sale in Sheppey Road, Dagenham, RM9 — £350,000 • 2 bed • 1 bath • 770 ft²






















































